Segeltjalk 23.23 ES-TRIN zertifiziert Verkauft
Vision Doeve Maklers
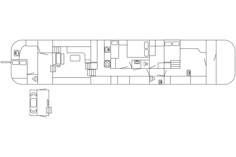
Diese Ostsee-Tjalk, ein traditionelles Frachtschiff, das einst die Gewässer von den Niederlanden bis zur Ostsee befuhr, wurde komplett umgebaut. Sie ist nun ein segelndes Wohnschiff, das die Wasserstraßen Europas befährt und sowohl für Binnengewässer als auch für Küstengewässer geeignet ist. Eines der auffälligsten Merkmale ist das geschlossene Steuerhaus, das ein komfortables Segeln bei jedem Wetter ermöglicht. Mit modernen Fernbedienungen für die verschiedenen Winden ist das Schiff einfach zu bedienen. Der Innenraum dieses Tjalk ist geräumig und kann vom neuen Besitzer an seine eigenen Wünsche angepasst werden. Der Salon bietet einen Blick auf die Umgebung. Im Heck befindet sich eine Kabine für 2 Personen mit Toilette. Weiter vorne befindet sich die einfache Kombüse und 1 Kabine mit einem Doppelbett und einem Etagenbett. Das Badezimmer verfügt über ein Waschbecken und eine Duschkabine. Es gibt einen separaten Toilettenraum mit Waschbecken. Die Gästekabine verfügt über ein Doppelbett mit einem geräumigen Stauraum/Werkstatt davor. Das Schiff bietet beispiellos viel Platz für das Leben auf dem Wasser.
Mehr Information
Allgemeine Information
| Werft: | Werft Draaisma, NL-Franeker |
| Rumpfform: | Flachboden |
| Rumpf Material: | Eisen/Stahl |
| Deck Material: | Eisen/Stahl |
| Aufbau Material: | Stahl |
| Bauausführung: | vernietet neuer Stahl geschweißt Schanzkleid rundum Scheuerleiste rundum Breite Gangborden Luvklotz 3 wasserdichte Schott(en) mit wasserdichte Tür(en) 1 wasserdichte Schott(en) |
| Kiel: | Kimmkielen |
| Steueranlage: | hydraulisch Steuerrad & Joystick Hartholz ruder Heck ruder |
| Fenster: | Hartholz Fensterrahmen Hartholz Aussentüren Aluminium Fensterrahmen |
| Verdrängung (zirka): | 75 Tonnen |
| Ballast (zirka): | Beton gegossen 25 Tonnen |
| Durchfahrtshöhe (zirka): | 21,00 m 3,45 m Mast(en) gesenkt 3,20 m Mast(en) entfernt |
| Eigner: | Holländischer Eigner |
| Registrierung: | Holländische Registrierung Z-Registrierung Die Kosten für die Änderung im Schiffsregister und/eventuell Löschung trägt der Käufer. |
| Farbe / Farbe-System: | Blauer Rumpf blaues Schanzkleid Weisser Aufbau siehe die Fotos |
| Zertifikate: | Gemeinschaft Binnenschifffahrtszertifikat für Binnenschiffe (SUK / ES-TRIN)) Zone 2 Niederlande Zone 3 Zone 4 gültig bis: 10-2030 |
| Geeignet für / als: | geeignet zum Bewohnen Erholungs-Schiff Binnengewässer Küstenschifffahrt |
| Weitere Information: | klassische Linien Steuerhaus Rumpfform ist geeignet zum Trockenfallen. Vorpiek mit Kettenkasten Angegebene Breite ausgenommen sind die Seitenschwertern. Sehr gut für Fahrten auf den Küstengewässern. Sehr gut für Fahrten auf den europäischen Kanälen und Flüssen. Sehr gut für Fahrten auf den französischen Kanälen und Flüssen. |
Technische Information
| Maschinenleistung: | 120 Ps 88 kW |
| Maschinen Marke: | DAF |
| Maschinentyp: | DS575 |
| Zylinderzahl: | 6 |
| Betriebsstunden (Zirka): | unbekannt |
| Kraftstoff: | Diesel |
| Kraftstofftank (zirka): | 1x 400 Liter 1x 1000 Liter 1x 250 Liter |
| Kühlung System: | Zweikreiskühlung nasser Auspuff |
| Antrieb: | 3 Flügel Propeller Fettgeschmierte Schraubenwelle Fett Gerät |
| Getriebe: | Velvet hydraulisch |
| Geschwindigkeit (zirka): | 5 Knoten Kreuzgeschwindigkeit bei 1400 RPM |
| Heizung: | Ferroli Zentralheizung auf Diesel |
| Bugstrahlruder: | elektrische Bugstrahlruder 10 kW 400 Volt |
| Elektrisches System: | 12 / 24 / 230 / 400 Volt 230 Volt Landstromanschluss |
| Batterien: | 2x 100 Ah Startbatterie(n) 1x 72 Ah Startbatterie(n) Generator 2x 100 Ah Lichtbatterie(n) |
| Batterie Ladegerät: | Samlex SEC-2440E Batterie Ladegerät 24/40 Studer HP-Compact 4024 Kombi Umformer/Ladegerät 24/400/100 Mastervolt Mass Batterie Ladegerät 24/100-3 phase |
| Generator: | Deutz Diesel Generator 20 kVA 230/400 Volt 2525 Betriebsstunden (zirka.) |
| Umformer: | Studer HP-Compact 4024 Kombi Umformer/Ladegerät 24/400/100 |
| Frischwassertank (zirka): | 1x 3000 Liter Stahl Tank(s) zementiert Tank(s) |
| Wasserdruckanlage: | Hydrofoor |
| Warmwasser System: | Warmwasserspeicher/Boiler durch die Zentralheizung 80 Liter |
| Schmutzwassertank (zirka): | 1x 300 Liter Kunststoff Tank(s) |
| Diesel Wasserabscheider: | Vorhanden |
| Lenz-Bilgepumpe: | Vorhanden |
| Deck Waschpumpe: | Vorhanden |
| Gasnetz: | Ja, Flasche(n) in Flasche Kasten an Deck Gas-Zertifikat |
| Weitere Information: | Druckluftflasche |
Unterkunft
| Innenausstattung: | unterschiedliche Materialien Eiche Fussboden siehe die Fotos |
| Isolation: | Glaswolle Steinwolle |
| Kabinen: | 3 Kabinen |
| Koje: | Hinten: 1x 2-pers Mitte Schifsf: 1x 2-pers & 2x 1-pers Mitte Schifsf: 1x 2-pers |
| Grundriss Plan (nicht maßstabgetreu): | Siehe Anhang |
| Badezimmer: | Vorne: Duschkabine Wasserhahn mit Thermostat Waschbecken mit h&k fliessendes Wasser Fliesen Badezimmer Hinter: Waschbecken mit h&k fliessendes Wasser |
| Toilette: | Vorne: elektrische Toilette Waschbecken kaltem Wasser Fliesen Toilette Hinter: elektrische Toilette |
| Kombüse / Küche: | seitwärts |
| Herd: | 4-Flammen Herd auf Gas in Kombination mit dem Backofen |
| Backofen: | Gas Backofen Grill |
| Mikrowelle: | vorhanden |
| Kühlschrank: | 230 Volt Kombination mit Tiefkühlschrank & 230 Volt Kühlschrank |
| Tiefkühlschrank: | Tiefkühlschrank & klein Tiefkühlfach |
| Spüle: | Nirosta Anrichte Resopal Anrichte |
| Waschbecken: | Nirosta Waschbecken |
| Wasserhahn: | warmes & kaltes fließendes Wasser |
| Unterhaltung: | Radio/CD Spieler flatscreen Fernseher |
| Stehhöhe (Zirka): | Steuerhaus (zirka) 1,84 m Salon (zirka) 1,90 m Kombüse / Küche (zirka) 1,91 m Korridor (zirka) 1,88 m Kabin (zirka) 1,89 m Badezimmer (zirka) 1,87 m Toilette (zirka) 1,75 m Kabin (zirka) 1,91 m Vorne (zirka) 1,95 m Achterkajüte / Hinterkajüte (zirka) 1,88 m Toilette (zirka) 1,82 m |
| Weitere Information: | Waschmaschine Waschtrockner Inventar Das Schiff wird mit allem an Bord übertragen, mit Ausnahme persönlicher Gegenstände und Kunstwerke. |
Navigationsausrüstung
| Navigationsausrüstung: | Garmin 172C Kartenplotter / GPS Kompass Sailor RT144 UKW True Heading Carbon Pro Automatic Identification System (AIS) Silva Seadata Echolot Ruderstandanzeiger Navigationsbeleuchtung Horn |
Rigg und Segel
| Rigg Typ: | Gaffel Takelung |
| Mast: | Lärche |
| Legbar: | Ja mit Ankerwinde |
| Baum: | Lärche |
| Gaffel: | Stahl |
| Klüverbaum / Bugspriet: | Holz Klüverbaum |
| Schwertern: | Bankirai Seitenschwertern hydraulisch zu bedienen Hubkiel |
| Winschen: | 3x elektrische Fallwinsch 2x Schotwinsch |
| Material der Segel: | Dacron |
| Segel: | Klüver Baum Fock Grosssegel |
| Weitere Information: | Focke Baum |
Ausrüstung
| Anker Ausrüstung: | manuelle Ankerwinde mit Elektromotor Klip Anker Anker Kette in Ankerklüse |
| Badeleiter: | Vorhanden Aluminium |
| Seereling / Korb: | Seereling auf Schanzkleid |
| Beiboot: | Vorhanden Rettungsboot |
| Sicherheit: | Rettungsringe Rettungswesten Rettungsringe nach den Zertifizierungsanforderungen |




