Dreimast-Charterklipper 24 Nächte oder 75 Tage Gäste Verkauft
Vision Doeve Maklers
Der Dreimastklipper „Oostvogel“ wurde im Jahr 1898 als Schleppklipper für die Güterschifffahrt zwischen Rotterdam und Antwerpen gebaut. In den 1960er Jahren wurde das Schiff außer Dienst gestellt und als Hausboot genutzt. Im Jahr 1992 wurde die „Oostvogel“ restauriert und in ein erfolgreiches Passagiersegelschiff umgewandelt. Aufgrund der Umstände ist das Schiff in einem etwas schlechten Wartungszustand, aber unserer Meinung nach ist es mehr als wert, es erneut zu verwenden. Der Käufer muss die Takelage-Inspektion erneut durchführen lassen, wenn er wieder professionell chartern und segeln möchte. Bei der Festlegung des Angebotspreises wurde berücksichtigt, dass der Käufer noch einen erheblichen Betrag in die Takelage investieren muss. Ausgestattet mit einem jungen CCRII Doosan-Motor, Flüstergenerator, Zentralheizung, hydraulischem Bugstrahlruder, Stahlmasten, geräumigem Salon, geräumiger Bar, Toiletten und Duschen, 9 Gästekabinen mit insgesamt 24 Kojen, geräumiger Achterkabine für den Eigner/die Besatzung und so weiter. Aus unserer Sicht ein interessantes Schiff zum Chartern, das auch als Segelhausboot genutzt werden kann und in das es wert ist, in zu investieren.
Mehr Information
Allgemeine Information
| Werft: | Werft A. Kalkman & Zn, NL-Capelle aan den IJssel |
| Jahre von Renovierung: | 1994 |
| Rumpfform: | Flachboden |
| Rumpf Material: | Eisen/Stahl |
| Deck Material: | Eisen/Stahl Teak im Cockpit (niet/not/nicht/ne pas 100%) |
| Aufbau Material: | Stahl |
| Bauausführung: | vernietet neuer Stahl geschweißt Klipper Bug Schanzkleid rundum Scheuerleiste rundum geschlossenen Pollers Schränken 4 wasserdichte Schott(en) öffnen Cockpit deckhouse Achter Roof |
| Steueranlage: | mechanisch Steuerrad Außensteuerstand |
| Fenster: | Hartholz Fensterrahmen Hartholz Aussentüren |
| Verdrängung (zirka): | maximal zulässige Verdrängung 213,978 m³ Verdrängung im leeren Zustand 166,151 m³ Verdrängung 47,827 m³ |
| Ballast (zirka): | 35 Tonnen Beton gegossen |
| Durchfahrtshöhe (zirka): | 27,00 m |
| Eigner: | Holländischer Eigner |
| Registrierung: | Holländische Registrierung B-Registrierung Die Kosten für die Änderung im Schiffsregister und/eventuell Löschung trägt der Käufer. |
| Farbe / Farbe-System: | Grünes Rumpf Grünes Schanzkleid Weisser Aufbau etwas rückständige Erhaltung siehe die Fotos letzte Rumpfbehandlung unter Wasser 11-2018 |
| Zertifikate: | Gemeinschaft Binnenschifffahrtszertifikat für Binnenschiffe (SUK / ES-TRIN)) zone 2, 3 & 4 NL Waal, Lek & NL Rhein gültig bis: 05-2024 |
| Geeignet für / als: | Binnenschifffahrt geeignet für grössere Wasserstrassen geeignet zum Chartern & Pfannkuchen Restaurant & Restaurant geeignet zum Bewohnen & Erholungs-Schiff |
| Allgemeine Information: | im Zustand wie das Schiff ist Alle Transaktionen müssen dem Kunden oder Eigentümer des Schiffes zur Genehmigung vorgelegt werden. Bis zur Erteilung dieser Genehmigung sind alle abgegebenen Angebote völlig freibleibend. |
| Weitere Information: | Angegebene Breite ausgenommen sind die Seitenschwertern. Die angegebene Länge ist zwischen Bug und Heck. Die relevante Mehrwertsteuer ist auf den Verkaufspreis fällig, wenn das Schiff von einem privat Person oder durch einem Unternehmen in den Niederlanden gekauft wird (sofern es sich um einen niederländischen Verkäufer handelt). Verkauf auf 0% Mehrwertsteuer an ein Unternehmen ist unter bestimmten Bedingungen möglich, sofern der Käufer den geltenden Mehrwertsteuer-Richtlinien entspricht. 75 Tagesgäste 24 Hotelgäste Die Techniken, die an Bord verwendet werden, sind von kommerzieller Schifffahrts Qualität. schöne Sprung Rumpfform ist geeignet zum Trockenfallen. geräumiges Achterdeck geräumiges Vordeck straffer Rumpf |
Technische Information
| Maschinenleistung: | 285 Ps 210 kW |
| Maschinen Marke: | Doosan |
| U / Min.: | 2100 RPM |
| Maschinentyp: | LO86TIH (CCR II) |
| Baujahr Maschine: | 2016 in Betrieb |
| Betriebsstunden (Zirka): | 500 an dem Stunden-Zähler |
| Kraftstoff: | Diesel |
| Kraftstofftank (zirka): | 2500 Liter 1 Stahl Tank(s) |
| Kühlung System: | geschlossen Kastenkühlung trockener Auspuff isoliert Auspuff |
| Antrieb: | 3 Flügel Propeller Fettgeschmierte Schraubenwelle |
| Getriebe: | Capitol HYC-EC-7700 hydraulisch Reduzierung/Übersetzung 4,545:1 |
| Heizung: | ACV Zentralheizung auf Diesel |
| Motor-Instrumente: | Vorhanden Alarm-System |
| Bugstrahlruder: | hydraulische Bugstrahlruder 45 Ps |
| Elektrisches System: | 24 / 230 / 400 Volt 400 Volt Landstromanschluss |
| Batterien: | 4x 230 Ah Lichtbatterie(n) 2x 50 Ah Startbatterie(n) 1x 74 Ah Startbatterie(n) Generator |
| Batterie Ladegerät: | Victron Skylla-TG Batterie Ladegerät 24/50 |
| Batterie Trenndiode: | Victron Argofet Laderegler |
| Fehlerstromschutzschalter: | Vorhanden |
| Generator: | BW Flüsterset 17,5 kVA 230/400 Volt 1500 U / Min. |
| Umformer: | Victron Atlas Umformer 24/2000 |
| Frischwassertank (zirka): | 12000 Liter 2 Stahl Tank(s) |
| Wasserdruckanlage: | Speck Hydrofoor |
| Warmwasser System: | ACV Warmwasserspeicher/Boiler (230 Volt) |
| Schmutzwassertank (zirka): | 4000 Liter 1 Stahl Tank(s) |
| Diesel Wasserabscheider: | Vorhanden |
| Lenz-Bilgepumpe: | Vorhanden 400 Volt auch Deck Waschpumpe mit Sammelrohr |
| Gasnetz: | Ja, Flasche(n) in Flasche Kasten an Deck |
| Weitere Information: | Hauptmaschine mit PTO für den hydraulischen System(en) |
Unterkunft
| Innenausstattung: | Gäste Unterkunft: Mahagoni Interieur hart Holz Fussboden Achterkajüte / Hinterkajüte: Mahagoni Interieur Decke mit Latten (Klassik) siehe die Fotos |
| Isolation: | vorhanden |
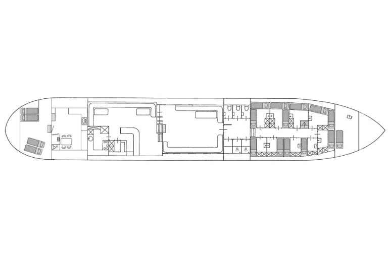
| Kabinen: | 9 Gäste-kabine(n) 2 Crew-Kabine(n) |
| Koje: | 3 Gästekabine(n): 4x 1-pers 6 Gästekabine(n): 2x 1-pers Vor: 2x 1-pers Hinten: 1x 2-pers & 2x 1-pers |
| Grundriss Plan (nicht maßstabgetreu): | Siehe Anhang |
| Badezimmer: | Gasten Kabinen mit Waschbecken h&k fliessendes Wasser 2x Duschkabine h&k fliessendes Wasser 2x Waschbecken mit h&k fliessendes Wasser Vorne: Waschbecken Kält fliessendes Wasser Hinter: Dusche h&k fliessendes Wasser Waschbecken mit h&k fliessendes Wasser in einem Raum zusammen mit der Toilette |
| Toilette: | Gäste Unterkunft: 3x Toilette Waschbecken kaltem Wasser Hinter: 1x Toilette |
| Kombüse / Küche: | 2x |
| Herd: | 5-Flammen Herd auf Gas Nirosta in Kombination mit dem Backofen |
| Backofen: | elektrische Backofen |
| Mikrowelle: | 1 Mikrowelle / Backofen |
| Kühlschrank: | 3x Kühlschrank 1x Flaschen Kühlschrank 1x Bier Kühlschrank |
| Tiefkühlschrank: | 1x Tiefkühlschrank |
| Waschbecken: | Nirosta Waschbecken |
| Wasserhahn: | warmes & kaltes fließendes Wasser |
| Geschirrspüler: | vorhanden |
| Unterhaltung: | Sprechanlage/Musiksystem |
| Stehhöhe (Zirka): | Salon (zirka) 2,20 m Badezimmer / Toilette vor (zirka) 2,10 m Korridor (zirka) 2,30 m Gästekabine (zirka) 2,05 / 2,35 m Bar (zirka) 2,25 / 2,10 m Kombüse / Küche (zirka) 2,25 m Achterkajüte / Hinterkajüte (zirka) 2,10 / 1,85 m Badezimmer / Toilette hinten (zirka) 2,00 m Achterkajüte / Hinterkajüte (zirka) 1,80 m Vorschiff (zirka) 1,70 m |
| Weitere Information: | AEG Waschmaschine Bierzapf geeignet zum Chartern geeignet zum Wohnen etwas rückständige Erhaltung Siehe Fotos |
Navigationsausrüstung
| Navigationsausrüstung: | Comnav A3 Ankerlicht Sailor RT2048 UKW Navigationsbeleuchtung Kompass Es ist nicht bekannt, ob die genannten Geräte funktionieren. |
Rigg und Segel
| Rigg Typ: | Schooner Takelung Gaffel Takelung |
| Mast: | 3x Stahl |
| Legbar: | Nein |
| Baum: | 3x Holz Baum |
| Gaffel: | 3x Holz Gaffel |
| Klüverbaum / Bugspriet: | Holz Klüverbaum (2022) |
| Schwertern: | Hartholz Seitenschwertern 2x elektrisch zu bedienen Hubkiel |
| Material der Segel: | Dacron |
| Segel: | Grosssegel Schooner Segel Besan Baum Fock Klüver |
| Weitere Information: | Focke Baum Nagelbank |
Ausrüstung
| Anker Ausrüstung: | elektrische Ankerwinde 2x Klip Anker 2x Anker Kette in Ankerklüse Verholspill |
| Seereling / Korb: | Seereling auf Schanzkleid |
| Sicherheit: | Feuerlöscher Rettungsblöcke Rettungswesten Brandmeldeanlage Feuerlöschdecke nach den Zertifizierungsanforderungen |
| Weitere Information: | Aluminium Laufsteg Survey-Rapport des Unterwasserschiffs vorhanden (11-2018) Sonnendeck |




