Fahrendes Wohnschiff 19.81 Nicht mehr verfügbar
Vision Doeve Maklers
Ehemaliger Binnenfahrt Deckkahn, umgebaut in ein geräumiges Studio auf dem Wasser, das sich ideal für die Navigation auf europäischen Wasserstraßen eignet. Im Jahr 2009 wurde sie mit einem leistungsstarken neuen Iveco-Motor ausgestattet, der auch die Flussfahrt einfach und zuverlässig macht. Aufgrund der Abmessungen handelt es sich um ein Schiff, das nicht ES-TRIN-zertifiziert sein muss. Die Durchfahrtshöhe beträgt ca. 2,85 M und bei demontiertem Steuerhaus ca. 2,00 M. Das Steuerhaus ist mit einem Sofa und einem Steuerstand ausgestattet. Die Treppe führt hinunter zum Wohnzimmer und dem geräumigen Badezimmer, der geräumigen Küche und einem sehr geräumigen Salon. Der Maschinenraum befindet sich in der Achterkabine und das Bugstrahlruder befindet sich in der Vorderkabine und es gibt dort viel Stauraum.
Mehr Information
Allgemeine Information
| Werft: | Werft Vooruit, NL-Koog aan de Zaan |
| Werft Umbau: | Alain van de Schoor, B-Monsin |
| Jahre von Renovierung: | 2008/2011 |
| Rumpfform: | Flachboden |
| Rumpf Material: | Stahl |
| Deck Material: | Stahl |
| Aufbau Material: | Stahl Hartholz Oberteil Steuerhaus |
| Bauausführung: | vernietet neuer Stahl geschweißt Scheuerleiste Schanzkleid Breite Gangborden 2x Schott |
| Steueranlage: | hydraulisch Steuerrad |
| Fenster: | Aluminium Fensterrahmen & Fensterrahmen aus Gummi Hartholz Aussentüren |
| Durchfahrtshöhe (zirka): | 2,85 m 2,00 m alles Herunter |
| Eigner: | Belgischer Eigner |
| Registrierung: | Belgische Registrierung |
| Farbe / Farbe-System: | Schwarzer Rumpf Bordeaux Rotes Schanzkleid Weisser Aufbau etwas rückständige Erhaltung siehe die Fotos letzte Rumpfbehandlung unter Wasser 02-2022 |
| Zertifikate: | kein Zertifikat Anforderung |
| Geeignet für / als: | Erholungs-Schiff geeignet zum Bewohnen Binnengewässer |
| Allgemeine Information: | im Zustand wie das Schiff ist Es gilt die Altersklausel. |
| Weitere Information: | Vorpiek mit Kettenkasten Rumpfform ist geeignet zum Trockenfallen. Schlepp Poller Sehr gut für Fahrten auf den europäischen Kanälen und Flüssen. Sehr gut für Fahrten auf den französischen Kanälen und Flüssen. |
Technische Information
| Maschinenleistung: | 150 Ps 110 kW |
| Maschinen Marke: | Iveco FPT |
| U / Min.: | 2800 RPM |
| Maschinentyp: | N67MNAM15 |
| Zylinderzahl: | 6 |
| Baujahr Maschine: | 2009 |
| Betriebsstunden (Zirka): | 1600 an dem Stunden-Zähler |
| Kraftstoff: | Diesel |
| Kraftstofftank (zirka): | 2x 1000 Liter Stahl Tank(s) |
| Kühlung System: | Zweikreiskühlung nasser Auspuff |
| Antrieb: | 4 Flügel Propeller Fettgeschmierte Schraubenwelle |
| Getriebe: | Twin Disc Technodrive TM170 Reduzierung/Übersetzung 3:1 |
| Heizung: | Lincar pelletherd |
| Motor-Instrumente: | Vorhanden |
| Bugstrahlruder: | Vetus elektrische Bugstrahlruder 12 Volt 125 KGF |
| Elektrisches System: | 12 / 230 Volt 230 Volt Landstromanschluss |
| Batterien: | 2x 180 Ah Bugstrahlruder batterie(n) 4x 180 Ah Lichtbatterie(n) 2x 180 Ah Startbatterie(n) |
| Batterie Ladegerät: | Vetus Batterie Ladegerät 12/60 |
| Batterie Trenndiode: | Vetus Batterie Trenndiode |
| Fehlerstromschutzschalter: | Vorhanden |
| Umformer: | Vetus Umformer 12/2000 |
| Frischwassertank (zirka): | 1x 1000 Liter Nirosta Tank(s) |
| Wasserdruckanlage: | Hydrofoor |
| Warmwasser System: | Warmwasserspeicher/Boiler (230 Volt und Kühlwasser) |
| Schmutzwassertank (zirka): | 120 Liter Kunststoff Tank(s) |
| Diesel Wasserabscheider: | Vorhanden |
| Lenz-Bilgepumpe: | 2x elektrische Pumpe |
| Gasnetz: | Ja, Flasche(n) in Flasche Kasten an Deck |
Unterkunft
| Innenausstattung: | Sperrholz & MDF Decke niet/not/nicht/ne pas 100% etwas rückständige Erhaltung siehe die Fotos |
| Isolation: | geschäumte Isolation (PU Schaum) |
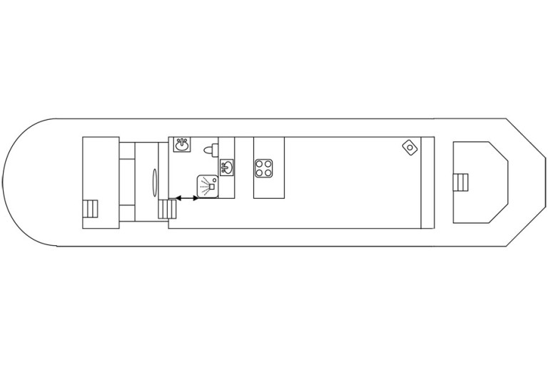
| Grundriss Plan (nicht maßstabgetreu): | Siehe Anhang |
| Badezimmer: | Duschkabine h&k fliessendes Wasser Waschbecken mit Mix Hahn und h&k fliessendes Wasser in einem Raum zusammen mit der Toilette |
| Toilette: | elektrische Toilette |
| Kombüse / Küche: | U-Form Kombüse |
| Herd: | 4-Flammen Herd auf Gas Nirosta |
| Backofen: | Bosch Mikrowelle / Backofen |
| Kühlschrank: | Vorhanden 230 Volt |
| Tiefkühlschrank: | klein Tiefkühlfach |
| Geschirrspüler: | Bosch Geschirrspüler |
| Stehhöhe (Zirka): | Salon (zirka) 2,08 m Kombüse / Küche (zirka) 2,05 m Badezimmer / Toilette (zirka) 2,07 m Steuerhaus (zirka) 1,86 m |
Navigationsausrüstung
| Navigationsausrüstung: | AdvanSea FX-400 UKW mit DSC Inter-Power PA303 Wechselsprechanlage Horn Navigationsbeleuchtung Ruderstandanzeiger Scheinwerfer |
Rigg und Segel
| Mast: | Laterne Mast Holz |
| Legbar: | Ja manuell |
Ausrüstung
| Anker Ausrüstung: | elektrische Ankerwinde Pool Anker Anker Kette in Ankerklüse Verholspill |
| Seereling / Korb: | Seereling auf Schanzkleid |
| Beiboot: | Vorhanden Kunststoff |
| Davits: | Vorhanden |
| Sicherheit: | Rettungsring Tresor |
| Weitere Information: | Ferrari 308 hydraulische Kran 790 kg @ 1,15 m, 290 kg @ 2,79 m Sonnendeck |




