Klipperkraak 20.77 mit SUK Zertifikat Verkauft
Vision Doeve Maklers
Klipperkraak mit einzigartigem Charakter und reicher Geschichte. Mit einem Clipper-Bogen kombiniert sie die Eleganz eines Clippers mit den Eigenschaften einer Kraak, wie dem nach innen gerichteten Bogen, dem ziemlich geraden Schnitt und der kleinen Mulde. Bis Jahr 1927 befuhr die Klipperkraak die Binnengewässer, darunter auch die Bäche von Zeeland, bis sie ihre Segel gegen einen Motor und eine Hebevorrichtung austauschte. Jahrzehntelang behauptete sie sich als Frachtschiff, bis sie in den 1960er Jahren in Amsterdam ein Hausboot wurde. In den 1980er Jahren wurde sie wieder unter Segel gesetzt und in ihrem früheren Glanz wiederhergestellt. Das Interieur ist einfach und jemand mit zwei rechten Händen kann daraus etwas sehr Schönes machen. Das schlagende Herz ist ein einzigartiger „Blue Deutz“. Sie ist ein Segeldenkmal, ein lebendiges Stück maritimer Geschichte, das jeden Museumshafen bereichern würde. Keine Exportbeschränkungen.
Mehr Information
Allgemeine Information
| Werft: | Werft H. Boot & zonen, NL-Vrijenban (Delft) |
| Rumpfform: | Flachboden |
| Rumpf Material: | Eisen |
| Deck Material: | Eisen |
| Aufbau Material: | Eisen Holz luken über das Raum |
| Bauausführung: | vernietet neuer Stahl geschweißt Schanzkleid rundum Scheuerleiste Achter Roof 2 wasserdichte Schott(en) Klipper Bug |
| Steueranlage: | mechanisch Steuerrad |
| Verdrängung (zirka): | maximal zulässige Verdrängung 52,903 m³ Verdrängung im leeren Zustand 34,479 m³ Verdrängung 18,424 m³ |
| Durchfahrtshöhe (zirka): | 2,50 m alles Herunter 17,50 m |
| Eigner: | Holländischer Eigner |
| Farbe / Farbe-System: | Schwarzer Rumpf Grünes Schanzkleid Weisser Aufbau etwas rückständige Erhaltung siehe die Fotos letzte Rumpfbehandlung unter Wasser 06-2022 |
| Zertifikate: | Gemeinschaft Binnenschifffahrtszertifikat für Binnenschiffe (SUK / ES-TRIN)) zone 2, 3 & 4 NL gültig bis: 02-2030 |
| Geeignet für / als: | Binnengewässer |
| Allgemeine Information: | im Zustand wie das Schiff ist (As is Where is) Es gilt die Altersklausel. Das Schiff ist wie ein historisches Schiff erkannt |
| Weitere Information: | klassische Segelyacht klassische Linien Angegebene Breite ausgenommen sind die Seitenschwertern. Die angegebene Länge ist zwischen Bug und Heck. Rumpfform ist geeignet zum Trockenfallen. Sehr gut für Fahrten auf den europäischen Kanälen und Flüssen. Sehr gut für Fahrten auf den französischen Kanälen und Flüssen. |
Technische Information
| Maschinenleistung: | 35 Ps 25 kW |
| Maschinen Marke: | Deutz |
| U / Min.: | 500 RPM |
| Maschinentyp: | Blauwe Deutz Luft gestartet |
| Zylinderzahl: | 1 |
| Baujahr Maschine: | 1926 |
| Überholung Maschine: | 1986 Überholt |
| Betriebsstunden (Zirka): | unbekannt |
| Kraftstoff: | Diesel |
| Kraftstofftank (zirka): | 1x 300 Liter 1x 50 Liter Stahl Tank(s) |
| Kühlung System: | Einkreiskühlung |
| Antrieb: | 3 Flügel Propeller Fettgeschmierte Schraubenwelle |
| Getriebe: | mechanisch |
| Geschwindigkeit (zirka): | 8 Kilometer/Stunde Kreuzgeschwindigkeit |
| Heizung: | Reflex Herd auf Diesel Nirosta |
| Elektrisches System: | 24 Volt einfach elektrisches System |
| Batterien: | 1 Sätz 2x 100 Ah |
| Sonnenkollektor: | 2x Sonnenkollektor |
| Frischwassertank (zirka): | 1x 750 Liter Stahl Tank(s) zementiert Tank(s) |
| Wasserdruckanlage: | handpomp |
| Gasnetz: | Ja, Flasche(n) in Flasche Behälter Gas-Zertifikat |
| Weitere Information: | Luftkompressor Stork Diesel-Hilfsmotor |
Unterkunft
| Innenausstattung: | einfache Innenausstattung siehe die Fotos |
| Isolation: | Teilweise Steinwolle & Hartschaum Dämmplatten |
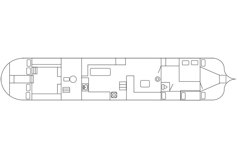
| Koje: | Vor: 2x 1-pers Steuerbord: 3x 1-pers Backbord: 1x 2-pers Hinten: 2x 2-pers |
| Grundriss Plan (nicht maßstabgetreu): | Siehe Anhang |
| Toilette: | Handpumpe Toilette |
| Herd: | 4-Flammen Herd auf Gas & 1-Flamm Herd auf Gas |
| Spüle: | Granit Anrichte |
| Waschbecken: | 1 Waschbecken |
| Wasserhahn: | Handpumpe |
| Stehhöhe (Zirka): | Achterkajüte / Hinterkajüte (zirka) 1,82 m Achterkajüte / Hinterkajüte (zirka) 1,17 m Salon (zirka) 1,82 m Kabin (zirka) 1,54 m / 1,90 m Toilette (zirka) 1,54 m Vorschiff (zirka) 1,52 m |
Navigationsausrüstung
| Navigationsausrüstung: | Em-Trak A100 Automatic Identification System (AIS) ICOM IC-M411 UKW mit DSC Raymarine RAY49E UKW mit DSC Navigationsbeleuchtung Kompass |
Rigg und Segel
| Rigg Typ: | Gaffel Takelung |
| Mast: | Lärche (niet/not/nicht/ne pas 100%) |
| Legbar: | Ja spreader |
| Baum: | Lärche |
| Gaffel: | Kiefer |
| Klüverbaum / Bugspriet: | Lärche Klüverbaum |
| Schwertern: | Azobé Seitenschwertern |
| Winschen: | segeln Winsch mit 4 Walzen |
| Material der Segel: | Dacron |
| Segel: | Grosssegel Klüver Fock cruising chute |
| Weitere Information: | Nagelbank |
Ausrüstung
| Anker Ausrüstung: | manuelle Ankerwinde Classic Anker Anker Kette Verholspill & Heckanker |
| Seereling / Korb: | Seereling auf Schanzkleid |
| Sicherheit: | Feuerlöscher Rettungsringe Rettungswesten nach den Zertifizierungsanforderungen |
| Weitere Information: | 2x Hartholz Dachfenster Survey-Rapport des Unterwasserschiffs vorhanden (06-2022) |




