Navigant navire à passagers Voile 39.00 Vendu
Dimensions (m):
39.00/25.06 x 6.54 x 2.50
N° de réf.:
200202
Place de mouillage:
Près de Rotterdam, Pays-Bas
Année de construction:
1916
Material:
acier
Avis objectif de Doeve Courtiers
Navire affrété performant qui est déployé en mer du Nord et en mer Baltique pendant les mois d'été et loué en Chambres d'Hôte en hiver. À l'origine, c'était un voilier de pêche de type Logger qui, après avoir été libéré de la navigation commerciale, a été utilisé comme navire à voile cq. navire-école avec un maximum de 23 clients hôtel ou 36 passagers à la journée. Le navire répond à toutes les exigences et le vendeur est très cohérent avec la maintenance préventive. Ainsi le moteur principal a été remplacé en 2016 par un nouveau. Au total, il y a 9 cabines d'invités, 5 avec 4 lits et 4 avec 2 lits. À nos yeux, une excellente occasion d'obtenir un beau navire avec de nombreuses possibilités d'exploitation.
Plus d'informations
Informations générales
| Chantier: | chantier naval Gebr. Pot, NL-Bolnes (Rotterdam) |
| Coque forme: | en forme |
| Matériau de la coque: | acier |
| Matériau de le pont: | acier |
| Matériau de la superstructure: | acier |
| Méthode de construction: | riveté nouvel acier est soudé bourrelet autour pavois plat-bord Largeur cloisons étanche(s) |
| Quille: | poutre quille |
| Système de barre: | pilotage manuel hydraulique roue gouverner sur colonne gouvernail en acier |
| Vitres: | simple vitre de verre châssis de fenêtre en bois châssis de fenêtre en laiton |
| Déplacement (environ): | 111 GT 55 NT |
| lest (environ): | béton |
| Tirant d'air (environ): | 26,50 m |
| Propriétaire: | Propriétaire néerlandais |
| Immatriculation: | Bateau immatriculé Pays-Bas Bateau immatriculé Z Les frais de changement de propriétaire et / éventuellement de suppression sont à la charge de l'acquéreur. |
| Couleur / système de peinture: | coque bleu pavois bleu superstructure crème dernière traitement navire sous-marin 11-2020 |
| Certificats: | Register Holland Commercial Voilier Z1,2,3,4, no ice DSI zone de navigation 17 (IIIA) DMA zone de navigation C (2009/45/EC) |
| Convient pour: | la navigation commerciale bateau de plaisance habitable marin |
| Informations générales: | bonnes caractéristiques de navigation Formation d'un nouvel équipage peut être convenu. Savoir-faire et des informations sur les zones de navigation peuvent être transmis. Changement de propriétaire en consultation, contrats d'affrètement doit être respectée. |
| Plus d'informations: | 23 clients de l'hôtel 36 invités jours Ligne classique belle forme pic avant avec puits à chaine creux 3,10 m |
Informations techniques
| Puissance du moteur: | 312 cv 230 kW |
| Moteur marque: | Weichai |
| tr / min: | 1800 RPM |
| Modèle du moteur: | WD 10C312-18 |
| Nombre de cylindres: | 6 |
| Année de construction moteur: | 2016 |
| Heures de fonctionnement (environ): | 2110 (02-2020) |
| Carburant: | diesel |
| Réservoir de carburant (environ): | 2x 1800 litre 1x 150 litre réservoir(s) au Acier |
| Refroidissement: | refroidissement intermédiaire lieu tuyau d’échappement d'échappement isolés |
| Propulsion: | 4 pale hélice tube d'étambot lubrifié par graisse arbre d'hélice 2017 |
| Inverseur: | Weichai Marine gear hydraulique réduction 3,53:1 2016 |
| Vitesse (environ): | 7,5 noeuds Vitesse de croisière au 1300 RPM 9 Vitesse max. noeuds |
| Chauffage: | ACV chauffage central (2020) sur diesel |
| Instruments moteur: | présents |
| Système électrique: | 24 / 230 / 400 Volt 400 Volt Connexion alimentation quai professional système installé |
| Batteries: | 4x 230 Ah batterie(s) de service (2020) 4x 230 Ah batterie(s) de service (2020) 2x 225 Ah batterie(s) démarrage 1x 78 Ah batterie(s) démarrage générateur 2x ± 100 Ah GMDSS |
| Chargeur de batterie: | 2x Victron Skylla chargeur de batterie 24/50 |
| Générateur: | 15 kVA Isuzu diesel 230/400 Volt Blokland fermé de refroidissement |
| Inverseur: | Mastervolt inverseur 24/2500 Mastervolt IVO 8771 inverseur |
| Réservoir d'eau (environ): | 1x 5000 litre Acier réservoir (2010) cimenté réservoir |
| Système de pressure d'eau: | Speck hydrophore |
| Système de Eau chaude: | ACV chaudière (2020) à travers le chauffage central 99 litre |
| Réservoir d'eaux usées (environ): | 1x 1200 & 1x 1000 litre 1x plastique (2016) 1x Acier |
| Diesel séparateur d’eau: | présent |
| Pompe de cale: | 2x 230 Volt 1x 400 Volt 1x avec moteur auxiliaire (aan dek / on deck / an Deck / sur le pont) |
| Douche de pont: | présents |
| D'approvisionnement en gaz: | Oui, bouteille boîtes sur le pont |
| Plus d'informations: | Éclairage LED |
Hébergements
| Intérieur: | différents matériaux ont été utilisés Formica avec impression intérieure Contreplaqué bois planchers de bois voir les photos |
| Isolation: | laine de verre laine de roche |
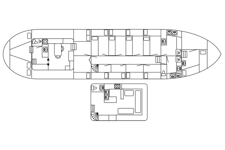
| Cabines: | 12 cabines |
| Couchette: | Cabine(s) d'hôtes: 5x 4-pers Cabine(s) d'hôtes: 4x 2-pers Cabine(s) équipage: 2x 2-pers & 1x 1-pers |
| Plan d'aménagement (Pas à l'échelle): | Voir l'annexe |
| salles de bain: | 2x salles de bains, chacune équipée de: 3x évier avec robinet de mélange avec eau courante c&f cabine de douche robinet thermostatique quartiers de l'équipage: douche robinet thermostatique dans une chambre avec les toilettes cabine propriétaire: douche lavabo avec eau courante c&f dans une chambre avec les toilettes l'avant: lavabo avec eau courante c&f |
| Toilettes: | client hébergement: tirer la chasse toilettes jours : tirer la chasse évier eau froide quartiers de l'équipage: tirer la chasse |
| Cuisine: | U-forme de cuisine & latéralement |
| Cuisinière: | 6-becs cuisinière acier inoxydable & 4-becs cuisinière (bemanning / crew / Besatzung / équipage) hotte |
| Four: | 1x four électrique 1x four à gaz |
| Micro-ondes: | 1x micro-ondes |
| Réfrigérateur: | 3x présents |
| Congélateur: | 1x congélateur 1x petite compartiment de glace |
| Dessus de comptoir: | Plan de travail en bois franc |
| Évier: | évier en acier inoxydable |
| Robinet: | chaude et eau froide |
| Lave-vaisselle: | présent |
| Divertissement: | radio/CD TV flatscreen |
| hauteur sous barrot (environ): | salon (environ) 1,99 m cuisine (environ) 1,95 m toilet (environ) 1,89 m bateaux avant (environ) 1,85 m Salle d'eau avant (environ) 2,00 m cabine invités (environ) 1,86 / 1,95 m en cours / corridor (environ) 1,90 m carré l'arrière (environ) 2,03 m d'équipage de cabine (environ) 2,30 m carré l'arrière (environ) 1,26 m |
| Plus d'informations: | pompe à bière convient pour le charter habitable assurer un entretien correct Machine à café 2x machine à laver 1x sèche-linge Inventaire complet de charte est présente. |
équipements de navigation
| Équipements de navigation: | Sailor RT144 VHF NX-500 Navtex Furuno FM-8500 VHF avec DSC Simrad GN33 GPS Navico GMDSS Jotron Tron RT20 portable VHF Furuno FR 701 radar compas Heftronic HT 1150 intercom laptop / Traceur de cartes feux de navigation pendule baromètre hygromètre |
Gréement et voiler
| Gréement type: | goélette ketch |
| Mât: | 2x mélèze |
| Bôme: | 2x Oregon Pin |
| Voile aurique: | 2x Oregon Pin |
| Bôme de foc ou de trinquette / Beaupré: | Oregon Pin Beaupré |
| Matériau de la voile: | Dacron |
| Voiler: | grand-voile schooner sail foc 3x yankee 2x hunier 1x Bree trinquette |
| Plus d'informations: | râtelier housses de voile sous-barbe Lazy Jacks |
Équipements
| Ancre équipements: | guindeau manuel avec moteur électrique 2x ancre 2x 220 m chaîne l'ancre dans écubier ancre 4x poupée Longueurs indiquées sont approximatives |
| Bimini: | taud dété |
| Échelle d'embarquement: | présents |
| Annexe: | présents 1 Mercury Moteur hors-bord 6 cv 3 kajaks |
| Bossoir: | présents |
| Sécurité: | Balise de détresse (EPIRB) 4 bouées de sauvetage 3 combinaison de survie CO2 système d'extinction automatique d\'incendie dans la salle des machines couverture anti-feu 9 extincteurs d'incendie réflecteur radar système d'alarme incendie 4x canot de sauvetage avec certificat feux de détresse |
| Plus d'informations: | Tente sur annexe échelle d'embarquement en aluminium feux de pont Plan de Sondage est disponible |




