Groninger Boltjalk 19.99 Nicht mehr verfügbar
Vision Doeve Maklers
Ehemaliges Binnenfrachtschiff, das ursprünglich für den Transport von Torf, Stroh, Mist, Schaumerde und Kartoffeln auf den flachen Kanälen der Groninger Torfkolonien und in Friesland eingesetzt wurde. Das Schiff fungierte viele Jahre lang als Hausboot ohne Antrieb, bis sie im Jahr 2004/2005 mit einem neuen Aufbau und Motor ausgestattet wurde. Anschließend wurde das Schiff vollständig verschifft und als Fahrendes Hausboot genutzt. Es ist ein komfortables Haus mit 2 Kabinen, geräumigem Wohnzimmer, Badezimmer und im Deckshaus befindet sich die Kombüse mit Esstisch und Schlafsofa unter dem Achterdeck. Das Schiff verfügt über einen Mietwohnliegeplatz in NL-Rotterdam, der nach Genehmigung durch den Hafen, von einem neuen Eigner übernommen werden kann. Aus unserer Sicht, ein ideales Hausboot für einen Studenten oder jemanden, die auf eine andere Weise in der Stadt leben möchte und auch die Möglichkeit haben möchte, mit dem Schiff zu Fahren.
Mehr Information
Allgemeine Information
| Werft: | Werft NL-Veendam |
| Jahre von Renovierung: | 2004/2007 |
| Rumpfform: | Flachboden Runde Bilgen |
| Rumpf Material: | Eisen/Stahl |
| Deck Material: | Eisen/Stahl |
| Aufbau Material: | Eisen/Stahl |
| Bauausführung: | vernietet neuer Stahl geschweißt Scheuerleiste rundum Schanzkleid rundum Achter Roof |
| Steueranlage: | Ruderpinne Stahl ruder Heck ruder |
| Durchfahrtshöhe (zirka): | 2,15 m |
| Eigner: | Holländischer Eigner |
| Farbe / Farbe-System: | Schwarzer Rumpf gelber Schanzkleid Weisser Aufbau sehr gut gepflegt letzte Rumpfbehandlung unter Wasser 07-2023 |
| Zertifikate: | kein Zertifikat Anforderung |
| Geeignet für / als: | Erholungs-Schiff Binnengewässer geeignet zum Bewohnen |
| Allgemeine Information: | Übergabe in Absprache. Es gilt die Altersklausel. |
| Weitere Information: | Angegebene Breite ausgenommen sind die Seitenschwertern. Rumpfform ist geeignet zum Trockenfallen. geräumiges Vordeck Vorpiek mit Kettenkasten Sehr gut für Fahrten auf den europäischen Kanälen und Flüssen. Sehr gut für Fahrten auf den französischen Kanälen und Flüssen. |
Technische Information
| Maschinenleistung: | 85 Ps 62 kW |
| Maschinen Marke: | DAF |
| Maschinentyp: | 475 |
| Zylinderzahl: | 6 |
| Baujahr Maschine: | 1974 |
| Betriebsstunden (Zirka): | 2505 an dem Stunden-Zähler |
| Kraftstoff: | Diesel |
| Kraftstofftank (zirka): | 1x 1000 Liter 1x 600 Liter Stahl Tank(s) |
| Kühlung System: | Zweikreiskühlung nasser Auspuff |
| Antrieb: | 3 Flügel Propeller Fettgeschmierte Schraubenwelle |
| Getriebe: | Velvet hydraulisch |
| Heizung: | Artel pelletherd & Maritiem Booster Zentralheizung auf Diesel (niet/not/nicht/ne pas 100%) |
| Elektrisches System: | 230 Volt 230 Volt Landstromanschluss |
| Batterien: | 1x 110 Ah 2x 230 Ah Victron BMV-600 Batterie-Monitor |
| Batterie Ladegerät: | Victron Skylla Batterie Ladegerät 24/25 |
| Fehlerstromschutzschalter: | Vorhanden |
| Umformer: | Victron Phoenix Umformer 24/1500 |
| Frischwassertank (zirka): | 1x 1000 Liter Kunststoff Tank(s) |
| Wasserdruckanlage: | elektrische Wasserpumpe |
| Warmwasser System: | Warmwasserspeicher/Boiler (230 Volt) |
| Lenz-Bilgepumpe: | Tauchpumpe 230 Volt |
| Gasnetz: | kein Gas an Bord |
Unterkunft
| Innenausstattung: | Sperrholz gemalt siehe die Fotos |
| Isolation: | vorhanden |
| Kabinen: | 2 Kabinen |
| Koje: | Steuerbordkabine: 1x 2-pers Backbordkabine: 1x 1-pers Hinten: 1x 2-pers |
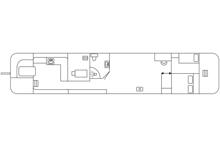
| Grundriss Plan (nicht maßstabgetreu): | Siehe Anhang |
| Badezimmer: | Duschkabine Wasserhahn mit Thermostat Waschbecken kaltes fliessendes Wasser in einem Raum zusammen mit der Toilette |
| Toilette: | elektrische Toilette |
| Kombüse / Küche: | L-Form Kombüse |
| Herd: | 2-Flammen Herd Induktions-Herd |
| Backofen: | Mikrowelle / Backofen |
| Kühlschrank: | Vorhanden 230 Volt |
| Tiefkühlschrank: | Vorhanden 230 Volt |
| Spüle: | Holz Anrichte |
| Waschbecken: | Nirosta Waschbecken |
| Wasserhahn: | Mix Hahn mit warmes & kaltes fliessendes Wasser |
| Geschirrspüler: | vorhanden |
| Stehhöhe (Zirka): | Kabinen (zirka) 1,84 m Salon (zirka) 1,84 / 1,65 m Badezimmer / Toilette (zirka) 1,74 m Korridor (zirka) 1,72 /1,78 m Achterkajüte / Hinterkajüte (zirka) 1,87 m Achterkajüte / Hinterkajüte (zirka) 1,33 m |
| Weitere Information: | Waschmaschine Waschtrockner Das Schiff wird ohne die privaten Gegenstände wie Möbel, Kleidung, Kunst und Werkzeuge übertragen werden. |
Navigationsausrüstung
| Navigationsausrüstung: | Navigationsbeleuchtung |
Rigg und Segel
| Schwertern: | Stahl 2x Seitenschwertern Winsch |
Ausrüstung
| Anker Ausrüstung: | Classic Anker |
| Deck Persenning: | über dem Laderaum Luken |
| Beiboot: | Vorhanden Kunststoff |
| Davits: | Vorhanden |
| Weitere Information: | Hartholz Dachfenster Aluminium Laufsteg Survey-Rapport des Unterwasserschiffs vorhanden (07-2023) Sonnendeck Der Liegeplatz ist nicht automatisch übertragbar. Ein potenzieller Neu Eigentümer kann jedoch beim Hafen einen Übernahmeantrag stellen, wenn er den Liegeplatz behalten möchte. Ein Einführungsgespräch ist Teil des Entscheidungsprozesses. |




