Luxe Motor 23.09, ES-TRIN-zertifiziert Verkauft
Vision Doeve Maklers
Dieses Fahrendes Wohnschiff wurde auf der renommierten Werft D. Boot „De Vooruitgang“ in Gouwsluis (Alphen aan den Rijn), Niederlande, gebaut und befindet sich seit vielen Jahren im Besitz der jetzigen Eigentümer. Das Schiff wurde stets sorgfältig gepflegt; unter anderem wurde ein moderner Motor eingebaut im Jahr 2010. Aufgrund des fortgeschrittenen Alters der Eigentümer hat das Wartungsniveau in den letzten Jahren jedoch nachgelassen. Darüber hinaus kam es im September 2025 zu einem Wassereinbruch, wobei die Feuerwehr das Schiff über Wasser halten konnte. Infolgedessen entstanden Schäden am Innenausbau sowie an verschiedenen technischen Anlagen. Das Schiff wird im aktuellen Zustand angeboten. Unserer Einschätzung nach handelt es sich um ein Projekt- bzw. Renovierungsschiff, das von einem neuen Eigentümer vollständig nach eigenen Vorstellungen umgestaltet und renoviert werden kann. Der letzte Prüfbericht des Unterwasserschiffes aus dem Jahr 2021 weist gute Ergebnisse auf. Wir suchen daher ein Liebhaber oder Fachmann, der diese Luxe Motor wieder in ihren ursprünglichen Glanz versetzen möchte.
Mehr Information
Allgemeine Information
| Werft: | Werft D. Boot, De Vooruitgang, NL-Gouwsluis (Alphen aan den Rijn) |
| Rumpfform: | Flachboden |
| Rumpf Material: | Stahl |
| Deck Material: | Stahl |
| Aufbau Material: | Stahl Hartholz Oberteil Steuerhaus |
| Bauausführung: | vernietet neuer Stahl geschweißt Scheuerleiste rundum Schanzkleid Achter Roof |
| Steueranlage: | mechanisch Steuerrad |
| Fenster: | Aluminium Fensterrahmen Fensterrahmen aus Gummi Bullaugen Hartholz Aussentüren |
| Verdrängung (zirka): | 60,176 m³ |
| Durchfahrtshöhe (zirka): | 2,80 m alles Herunter mit abgebautem Steuerhaus |
| Eigner: | Schweizer Eigner |
| Farbe / Farbe-System: | Schwarzer Rumpf Weisser Aufbau letzte Rumpfbehandlung unter Wasser 06-2021 etwas rückständige Erhaltung |
| Zertifikate: | Gemeinschaft Binnenschifffahrtszertifikat für Binnenschiffe (SUK / ES-TRIN)) Zone 2 Niederlande Zone 3 Zone 4 Waal, Lek & NL Rhein gültig bis: 06-2028 |
| Geeignet für / als: | Binnengewässer geeignet zum Bewohnen Erholungs-Schiff |
| Allgemeine Information: | im Zustand wie das Schiff ist Es gilt die Altersklausel. Verkauf aus Altersgründen. |
| Weitere Information: | schöne Sprung Rumpfform ist geeignet zum Trockenfallen. Sehr gut für Fahrten auf den europäischen Kanälen und Flüssen. Sehr gut für Fahrten auf den französischen Kanälen und Flüssen. |
Technische Information
| Maschinenleistung: | 115 Ps 85 kW |
| Maschinen Marke: | Doosan |
| U / Min.: | 2800 RPM |
| Maschinentyp: | PU066 |
| Zylinderzahl: | 6 |
| Baujahr Maschine: | 2010 |
| Betriebsstunden (Zirka): | 3100 nach Angabe |
| Kraftstoff: | Diesel |
| Kraftstofftank (zirka): | 1x 370 Liter 1x 820 Stahl Tank(s) |
| Kühlung System: | geschlossen trockener Auspuff |
| Antrieb: | 4 Flügel Propeller Fettgeschmierte Schraubenwelle |
| Getriebe: | Dong-I hydraulisch (2010) Reduzierung/Übersetzung 2,96:1 |
| Heizung: | Kabola S14 Zentralheizung auf Diesel & Herd auf Holz |
| Bugstrahlruder: | Cupa elektrische Bugstrahlruder 15 Ps 24 Volt |
| Elektrisches System: | 12 / 24 / 230 Volt 230 Volt Landstromanschluss einfach elektrisches System |
| Batterien: | Startbatterie(n) Startbatterie(n) Generator |
| Batterie Ladegerät: | Vorhanden |
| Generator: | Lister Petter Diesel Generator 5 kVA |
| Umformer: | Vorhanden |
| Sonnenkollektor: | 12x Sonnenkollektor |
| Frischwassertank (zirka): | 2x 2000 Liter Stahl Tank(s) |
| Wasserdruckanlage: | Hydrofoor |
| Warmwasser System: | Durchlauferhitzer |
| Schmutzwassertank (zirka): | nicht vorhanden, genug Platz um ein zu bauen |
| Gasnetz: | Ja, Flasche(n) in Flasche Behälter |
| Weitere Information: | Genannte Technik wird im aktuellen Zustand geliefert (As is, Where is). Ersatz-Propeller |
Unterkunft
| Innenausstattung: | unterschiedliche Materialien rückständige Erhaltung siehe die Fotos |
| Isolation: | vorhanden |
| Kabinen: | Kabinen |
| Koje: | Vorne: 1x 1-pers Steuerbordkabine: 1x 2-pers Hinten: 1x 2-pers |
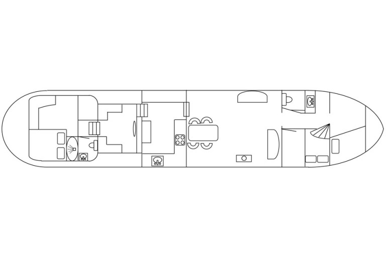
| Grundriss Plan (nicht maßstabgetreu): | Siehe Anhang |
| Badezimmer: | Vorne: Waschbecken mit h&k fliessendes Wasser in einem Raum zusammen mit der Toilette Hinter: Sitzbad Dusche h&k fliessendes Wasser Waschbecken mit h&k fliessendes Wasser in einem Raum zusammen mit der Toilette |
| Toilette: | 2x Toilette |
| Kombüse / Küche: | U-Form Kombüse |
| Herd: | 4-Flammen Herd auf Gas |
| Backofen: | Gas Backofen |
| Spüle: | Anrichte mit Fliesen |
| Waschbecken: | Waschbecken |
| Wasserhahn: | warmes & kaltes fließendes Wasser |
| Stehhöhe (Zirka): | Steuerhaus (zirka) 1,90 m Badezimmer / Toilette hinten (zirka) 1,96 m Achterkajüte / Hinterkajüte (zirka) 1,98 m Kombüse / Küche (zirka) 1,80 m Salon (zirka) 2,11 - 2,03 m Badezimmer / Toilette vor (zirka) 1,90 m Gästekabine (zirka) 2,11 m Vorkabine (zirka) 1,80 m |
| Weitere Information: | Waschmaschine |
Navigationsausrüstung
| Navigationsausrüstung: | Sailor RT2048 UKW Furuno FA-150 GPS ICOM IC-M3Euro Tragbare UKW Echolot Navigationsbeleuchtung Horn Scheibenwischer Scheinwerfer Blau Bord |
Rigg und Segel
| Mast: | Holz Mast |
| Legbar: | Ja Winde |
| Baum: | Holz Baum |
Ausrüstung
| Anker Ausrüstung: | manuelle Ankerwinde Anker Kette Klip Anker in Ankerklüse Verholspill |
| Badeleiter: | Aluminium |
| Beiboot: | Vorhanden |
| Davits: | Vorhanden |
| Sicherheit: | Rettungsringe Rettungswesten Feuerlöscher nach den Zertifizierungsanforderungen Feuerlöschdecke |
| Weitere Information: | Laufsteg Abdeckplane über Beiboot Survey-Rapport des Unterwasserschiffs vorhanden (06-2021) |




