Peniche Hollandaise 31.28 / Luxe Motor avec certificat Vendu
Avis objectif de Doeve Courtiers
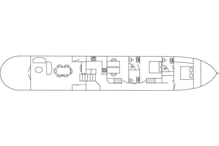
Ancien cargo fluvial qui, après avoir également navigué comme bateau de pêche aux coques sous le nom de Jannetje YE85, a été converti en 2006/2007 en un spacieux Péniche Hollandaise. Aménagé avec une spacieuse cabine propriétaire avec salle de bain en suite, atelier, cabine invités avec salle de bain en suite, cabine qui est maintenant utilisée comme bureau, cuisine en L et une timonerie très spacieuse avec poste de pilotage équipé professionnellement et portes-fenêtres donnant sur le pont arrière. La superstructure est un corps complètement large, ce qui offre beaucoup d'espace intérieur. Ses dimensions en font une péniche hollandaise idéale pour les longs trajets sur les voies navigables européennes comme la France, la Belgique, l'Allemagne et les Pays-Bas. Il est également parfaitement équipé pour l'habitation.
Plus d'informations
Informations générales
| Chantier: | chantier naval Gebr. Paans, De Hoop der drie Gebroeders, NL-Roodevaart |
| Chantier rénovation: | chantier naval Multiship, NL-Harlingen Intérieur: sous son propre contrôle terminé à l'aide de professionnels |
| Année la rénovation: | 2006/2007 |
| Coque forme: | fond plat |
| Matériau de la coque: | acier |
| Matériau de le pont: | acier |
| Matériau de la superstructure: | acier |
| Méthode de construction: | riveté nouvel acier est soudé wide body superstructure bourrelet autour Ouvert cockpit auto-videur cockpit bittes dans des armoires fermées 2 cloisons étanche(s) |
| Système de barre: | pilotage électrique hydraulique |
| Vitres: | châssis de fenêtre en aluminium portes extérieures en bois de teck |
| Déplacement (environ): | 130 Tonnes métriques estimé |
| lest (environ): | présents 20 ton gravier & acier |
| Tirant d'air (environ): | 3,15 m |
| Propriétaire: | Propriétaire néerlandais |
| Immatriculation: | Bateau immatriculé Pays-Bas Bateau immatriculé B Les frais de changement de propriétaire et / éventuellement de suppression sont à la charge de l'acquéreur. |
| Couleur / système de peinture: | coque grise pavois grise superstructure blanche Système à deux composants voir les photos |
| Certificats: | Communauté Certificat de navigation intérieure (TRIWV / ES-TRIN) zone 2 Pays-Bas zone 3 zone 4 Waal, Lek & NL Rhin valide jusqu'au: 07-2024 |
| Convient pour: | habitable plus appropriés pour les voies navigables les voies navigables |
| Plus d'informations: | La forme de la coque permet l'échouage à marée basse. pont avant spacieux spacieux le pont derrière pic avant avec puits à chaine Grand navire pour naviguer sur les canaux et les fleuves européens. Grand navire pour naviguer sur les canaux français et rivières. |
Informations techniques
| Puissance du moteur: | 296 cv 218 kW |
| Moteur marque: | Scania Vabis |
| Modèle du moteur: | D6 1140A |
| Nombre de cylindres: | 6 |
| Année de construction moteur: | 1987 installée |
| Heures de fonctionnement (environ): | 12000 |
| Carburant: | diesel |
| Réservoir de carburant (environ): | 8000 litre 2 réservoir(s) au Acier |
| Refroidissement: | fermée pipes de refroidissement |
| Propulsion: | 3 pale hélice tube d'étambot lubrifié par graisse |
| Inverseur: | Twin Disc MG 5.091 hydraulique réduction 2,95:1 |
| Chauffage: | Clima+ Open 35 chauffage central sur diesel |
| Hélice d'étrave: | hélice d'étrave électricité 20 cv |
| Système électrique: | 12 / 24 / 230 Volt 230 Volt Connexion alimentation quai Victron Digital Multicontrol |
| Batteries: | 2x 180 Ah batterie(s) démarrage 1x 56 Ah batterie(s) démarrage Hélice d'étrave 1000 Ah traction batterie jeux 12x 2 Volt Whisper Power Victron BMV-702 contrôleur de batterie |
| Chargeur de batterie: | Mastervolt MultiPlus combinaison inverseur/chargeur 24/5000/120 |
| Transformateur d'isolement: | Victron transformateur d'isolement 3600 Watt |
| Générateur: | BW Generatortechniek coffret insonorisant BW13.5/15SSK 13,5 kVA 230 Volt 1500 RPM 1850 heures de fonctionnement (environ) |
| Inverseur: | Mastervolt MultiPlus combinaison inverseur/chargeur 24/5000/120 |
| Panneaux solaires: | 16x panneau solaire |
| Réservoir d'eau (environ): | 4000 litre 1 acier inoxydable réservoir |
| Système de pressure d'eau: | pompe d'eau électrique |
| Système de Eau chaude: | ACV Smart chaudière (230 Volts) |
| Réservoir d'eaux usées (environ): | 2500 litre acier inoxydable système de nettoyage des eaux usées |
| Diesel séparateur d’eau: | présent |
| Pompe de cale: | 3x présents |
| Douche de pont: | présents |
| D'approvisionnement en gaz: | pas de gaz à bord |
Hébergements
| Intérieur: | différents matériaux ont été utilisés peint en blanc fini chêne voir les photos |
| Isolation: | laine de verre d'une feuille d'aluminium & laine de roche d'une feuille d'aluminium |
| Cabines: | 3 cabines |
| Couchette: | Propriétaires cabine: 2x 1-pers navire mi: 2x 1-pers |
| Plan d'aménagement (Pas à l'échelle): | Voir l'annexe |
| salles de bain: | l'avant: cabine de douche massage douche robinet thermostatique carrelage salles de bain évier avec robinet de mélange avec eau courante c&f Centre du bateau: cabine de douche massage douche robinet thermostatique carrelage salles de bain évier avec robinet de mélange avec eau courante c&f |
| Toilettes: | 2x toilettes dans salle de bain 1x toilettes jours évier eau froide |
| Cuisine: | L-forme de cuisine |
| Cuisinière: | 4-becs cuisinière induction hotte |
| Four: | AEG Four à micro-ondes |
| Réfrigérateur: | 1 Liebherr Réfrigérateur |
| Congélateur: | 1 Liebherr congélateur |
| Dessus de comptoir: | dessus de comptoir en Formica |
| Évier: | évier en acier inoxydable |
| Robinet: | robinet de mélange avec eau courante c&f |
| Lave-vaisselle: | AEG lave-vaisselle |
| Divertissement: | TV flatscreen |
| hauteur sous barrot (environ): | cabine propriétaire (environ) 2,10 m Salle d'eau / toilettes avant (environ) 2,07 m en cours / corridor (environ) 2,00 / 2,03 m cabine invités (environ) 2,04 m Salle d'eau / toilettes (environ) 2,04 m bureau (environ) 2,02 m cuisine (environ) 2,02 m timonerie (environ) 2,05 m |
| Plus d'informations: | AEG machine à laver / sèche-linge inventaire |
équipements de navigation
| Équipements de navigation: | Alphatron Alphatriopilot MF rivière pilote automatique Alphatron Alphatriopilot MF giration Alphatron Alphatriopilot MF l'indicateur d'angle de barre GP-32 GPS Furuno intercom Raymarine ST60 échosondeur ICOM IC-M411 VHF avec DSC ICOM IC-M401E VHF ordinateur PC Navigo Traceur de cartes signe bleu avec la lumière clignotante Horn feux de navigation projecteur de tunnel essuie-glace |
Gréement et voiler
| Mât: | Laterne mât aluminium |
| Abaissable: | oui manuellement |
Équipements
| Ancre équipements: | guindeau électrique Pool ancre 60 m chaîne l'ancre dans écubier ancre 2x poupée Longueurs indiquées sont approximatives |
| Bimini: | présents |
| Filière / Balcon: | filière autour du top filière autour du pont arrière |
| Annexe: | polyester annexe |
| Bossoir: | présents |
| Sécurité: | extincteurs d'incendie bouées de sauvetage détecteur(s) de monoxyde de carbone en fonction des exigences de certification |
| Plus d'informations: | toit fenêtre en teck réglez de le pont meubles échelle d'embarquement en aluminium Le navire a été complètement vidé (seulement la coque est vieux) et puis reconstruit, avant les boiseries se fait à l'intérieur de la coque est très bien traité. Plan de Sondage est disponible terrasse |




