Peniche Hollandaise 27.05 avec certificat Luxe Motor Plus disponible
Avis objectif de Doeve Courtiers
Cette ancienne péniche intérieure de type "Luxe Motor" a été entièrement transformée en une péniche hollandaise à voile confortable et spacieuse, avec suffisamment d'espace pour une famille ou un couple d'amis. Bien qu'il y ait un entretien en retard, ce navire offre encore beaucoup de potentiel pour ceux qui recherchent une maison authentique et de caractère sur l'eau. Le navire dispose de plusieurs chambres, d'un salon confortable, d'une cuisine et d'une salle de bain. De plus, il offre la possibilité de rénover davantage et d'adapter l'espace de vie à votre guise. Avec un peu d'amour et d'attention, cette péniche à voile peut être remise en parfait état et prête pour l'habitation ou pour de longs voyages sur l'eau. Avec son jeune moteur principal et son puissant propulseur d'étrave rotatif à 360 degrés, les manœuvres sont un jeu d'enfant.
Plus d'informations
Informations générales
| Chantier: | chantier naval Wed. J. van Duijvendijk, NL-Gouderak |
| Coque forme: | fond plat |
| Matériau de la coque: | acier |
| Matériau de le pont: | acier |
| Matériau de la superstructure: | acier timonerie du bois |
| Méthode de construction: | riveté nouvel acier est soudé bourrelet autour pavois autour la cabine d'arrière gaillard d'avant 1 cloisons étanche(s) bittes dans des armoires fermées |
| Système de barre: | hydraulique roue & pilotage électrique joystick |
| Vitres: | châssis de fenêtre en aluminium double vitre de verre portes en aluminium extérieure |
| Déplacement (environ): | 85 Tonnes métriques |
| lest (environ): | présents gravier tuiles en béton |
| Tirant d'air (environ): | 3,40 m tout vers le bas |
| Propriétaire: | Propriétaire néerlandais |
| Immatriculation: | Bateau immatriculé Pays-Bas Bateau immatriculé B Les frais de changement de propriétaire et / éventuellement de suppression sont à la charge de l'acquéreur. |
| Couleur / système de peinture: | coque noire pavois rouge / brun superstructure brunes voir les photos quelques travaux a prévoir dernière traitement navire sous-marin 05-2017 |
| Certificats: | Communauté Certificat de navigation intérieure (TRIWV / ES-TRIN) zone 2 Pays-Bas zone 3 zone 4 Waal, Lek & NL Rhin valide jusqu'au: 05-2024 |
| Convient pour: | habitable bateau de plaisance les voies navigables |
| Plus d'informations: | forme de coque est adapté pour echouer. timonerie abritée pic avant avec puits à chaine Grand navire pour naviguer sur les canaux et les fleuves européens. Grand navire pour naviguer sur les canaux français et rivières. |
Informations techniques
| Puissance du moteur: | 174 cv 128 kW |
| Moteur marque: | Cummins |
| tr / min: | 2400 RPM |
| Modèle du moteur: | 6BTA -5.9 |
| Nombre de cylindres: | 6 |
| Année de construction moteur: | 2002 |
| Carburant: | diesel |
| Réservoir de carburant (environ): | 1x 2000 litre 1x 1150 litre 1x 200 litre réservoir(s) au Acier |
| Refroidissement: | fermée Échappement refroidi par eau lieu tuyau d’échappement |
| Propulsion: | 3 pale hélice tube d'étambot lubrifié par graisse |
| Inverseur: | PRM 750D hydraulique (2002) réduction 3:1 |
| Chauffage: | Kabola B35 tap chauffage central combi chauffage sur diesel |
| Hélice d'étrave: | hélice d'étrave avec moteur diesel (Deutz SF6L912) 88 cv 360 degrés pivotants proportionnelle |
| Système électrique: | 24 / 230 Volt 230 Volt Connexion alimentation quai |
| Batteries: | 4x 225 Ah batterie(s) démarrage 4x 225 Ah batterie(s) de service 1x 140 Ah Hélice d'étrave batterie(s) |
| Chargeur de batterie: | Victron MultiPlus combinaison inverseur/chargeur 24/3000/70 Sterling Pro Charge20 chargeur de batterie 24/20 |
| Disjoncteur différentiel: | présents |
| Générateur: | Onan coffret insonorisant 16 kVA 230/400 Volt 1500 tr / min 1650 heures de fonctionnement (environ) échappement humide avec séparateur d'eau |
| Inverseur: | Victron MultiPlus combinaison inverseur/chargeur 24/3000/70 Victron Orion inverseur 24-20 |
| Réservoir d'eau (environ): | 2000 litre 1 acier inoxydable réservoir |
| Système de pressure d'eau: | pompe d'eau électrique |
| Système de Eau chaude: | à travers le chauffage central |
| Réservoir d'eaux usées (environ): | présents |
| Pompe de cale: | 2x pompe électrique |
| D'approvisionnement en gaz: | pas de gaz à bord |
Hébergements
| Intérieur: | différents matériaux ont été utilisés intérieur simple voir les photos |
| Isolation: | laine de roche |
| Cabines: | 3 cabines |
| Couchette: | l'avant: 1x 2-pers Arrière: 1x 2-pers |
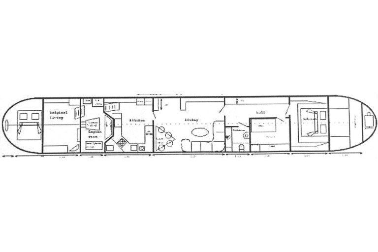
| Plan d'aménagement (Pas à l'échelle): | Voir l'annexe |
| salles de bain: | cabine de douche robinet thermostatique évier avec robinet de mélange avec eau courante c&f dans une chambre avec les toilettes en partie carrelée |
| Toilettes: | l'avant: toilettes dans salle de bain Arrière: toilettes |
| Cuisine: | U-forme de cuisine |
| Cuisinière: | 4-becs cuisinière induction hotte acier inoxydable |
| Four: | Four à micro-ondes |
| Réfrigérateur: | Réfrigérateur 230 Volt |
| Congélateur: | congélateur 230 Volt |
| Dessus de comptoir: | dessus de comptoir en plastique |
| Évier: | évier en acier inoxydable |
| Robinet: | robinet de mélange avec eau courante c&f |
| Lave-vaisselle: | présent |
| hauteur sous barrot (environ): | timonerie (environ) 1,79 m carré l'arrière (environ) 1,80 m cuisine (environ) 2,09 m salon (environ) 2,03 m en cours / corridor (environ) 2,13 m Salle d'eau / toilettes (environ) 2,07 m cabine (environ) 2,14 m cabine avant (environ) 2,14 m |
| Plus d'informations: | machine à laver sèche-linge |
équipements de navigation
| Équipements de navigation: | Shipmate RS 8000 VHF ComNav Voyager X3 Automatic Identification System (AIS) Furuno GP-31 GPS l'indicateur d'angle de barre signe bleu feux de navigation essuie-glace |
Gréement et voiler
| Mât: | Laterne mât acier bois |
| Abaissable: | oui manuellement |
| Bôme: | acier |
Équipements
| Ancre équipements: | guindeau manuel ancre chaîne l'ancre dans écubier ancre poupée |
| Échelle d'embarquement: | présents |
| Filière / Balcon: | filière de rempart |
| Annexe: | Topcraft 430 Economic polyester annexe Selva Moteur hors-bord 8 cv |
| Bossoir: | avec Bôme |
| Sécurité: | extincteurs d'incendie bouées de sauvetage gilets de sauvetage en fonction des exigences de certification |
| Plus d'informations: | Plan de Sondage est disponible (05-2017) envoyer chaise |




