Peniche Hollandaise 19.08 Luxe Motor Plus disponible
Avis objectif de Doeve Courtiers
Ancien cargo intérieur entièrement reconstruit en péniche où vous pourrez séjourner confortablement toute l'année. Le propriétaire actuel dispose d'un poste de location sur la Tamise, dans la région de Londres, dans un emplacement idéal où vous pouvez vivre à bord. Equipée d'un gaillard d'avant aménagé en cabine, la « cale » dispose d'un salon cosy et spacieux avec cuisine ouverte en U, escalier menant à la timonerie qui a 2 portes latérales, escalier menant à la cabine arrière avec baignoire/douche, couchette 2 personnes et les toilettes. Une péniche à voile à cet endroit et dans cet état n'est pas souvent disponible et c'est donc un navire fortement recommandé si quelqu'un recherche un navire pour vivre et/ou naviguer dans la région de Londres. Le navire est également idéal pour se rendre en Europe continentale et y naviguer. Il est très facile à manœuvrer et à naviguer grâce au propulseur d'étrave hydraulique.
Plus d'informations
Informations générales
| Chantier: | chantier naval NL-Smilde |
| Chantier rénovation: | sous son propre contrôle terminé à l'aide de professionnels |
| Année la rénovation: | 1993 |
| Coque forme: | fond plat |
| Matériau de la coque: | acier |
| Matériau de le pont: | acier |
| Matériau de la superstructure: | acier partie supérieure timonerie en bois toit de la timonerie composites |
| Méthode de construction: | riveté nouvel acier est soudé bourrelet autour pavois autour la cabine d'arrière plat-bord Largeur 2 cloisons étanche(s) |
| Système de barre: | hydraulique roue |
| Vitres: | châssis de fenêtre en feuillus double vitrage & simple vitre de verre portes extérieures en bois dur |
| lest (environ): | des blocs de béton 1 tonnes |
| Tirant d'air (environ): | 2,90 m 2,00 m avec la timonerie démonté |
| Propriétaire: | Propriétaire britannique |
| Immatriculation: | Bateau immatriculé Britannique SSR |
| Couleur / système de peinture: | coque noire pavois vert superstructure vert superstructure blanche en bon état voir les photos 10-2019 dernière traitement navire sous-marin |
| Certificats: | UK Boat Safety Certificate aucune exigence de certificat (ES-TRIN) |
| Convient pour: | les voies navigables bateau de plaisance habitable |
| Informations générales: | pas vu par nous |
| Plus d'informations: | Ligne classique La forme de la coque permet l'échouage à marée basse. coque droite timonerie abritée pic avant avec puits à chaine Grand navire pour naviguer sur les canaux et les fleuves européens. Grand navire pour naviguer sur les canaux français et rivières. |
Informations techniques
| Puissance du moteur: | 85 cv 62 kW |
| Moteur marque: | DAF |
| tr / min: | 2000 RPM |
| Modèle du moteur: | 475 |
| Nombre de cylindres: | 6 |
| Heures de fonctionnement (environ): | inconnus |
| Carburant: | diesel |
| Réservoir de carburant (environ): | 500 litre 2 réservoir(s) au Acier |
| Refroidissement: | refroidissement intermédiaire lieu tuyau d’échappement |
| Propulsion: | 3 pale hélice tube d'étambot lubrifié par graisse |
| Inverseur: | PRM hydraulique réduction 3:1 hydraulique PTO |
| Vitesse (environ): | 5 noeuds Vitesse de croisière au 1500 RPM 7 noeuds Vitesse max. au 2000 RPM |
| Chauffage: | 2x Refleks poêle sur diesel 1x électrique |
| Hélice d'étrave: | hélice d'étrave hydraulique proportionnelle 10 cv |
| Système électrique: | 12 / 24 / 230 Volt 230 Volt Connexion alimentation quai mainmaster control |
| Batteries: | 6x 100 Ah GEL batterie(s) de service 1x 100 Ah batterie(s) démarrage (05-2023) 1x 110 Ah batterie(s) démarrage générateur (05-2023) Victron contrôleur de batterie |
| Chargeur de batterie: | Mastervolt Mass chargeur de batterie 24/75 |
| Isolateur de batterie: | présents |
| Transformateur d'isolement: | Mastervolt transformateur d'isolement |
| Disjoncteur différentiel: | présents |
| Générateur: | Lister diesel générateur 1500 tr / min 6 kVA 230/400 Volt échappement humide avec séparateur d'eau 3300 heures de fonctionnement (environ) |
| Alternateur: | 85 ampère |
| Inverseur: | Mastervolt Mass inverseur 24/1500 |
| Panneaux solaires: | 4x 250 Watt Victron MPPT contrôleur de charge 150/35 (blue tooth) |
| Réservoir d'eau (environ): | 1500 litre 1 acier inoxydable réservoir |
| Système de pressure d'eau: | pompe d'eau électrique |
| Système de Eau chaude: | ballon d'eau chaude |
| Diesel séparateur d’eau: | 2x diesel séparateur d’eau |
| Pompe de cale: | 2x pompe électrique |
| D'approvisionnement en gaz: | Oui, bouteille boîtes sur le pont |
| Plus d'informations: | Éclairage LED hélice de rechange |
Hébergements
| Intérieur: | Contreplaqué & bois de planchers de pin sols carrelés |
| Isolation: | laine de roche |
| Couchette: | l'avant: 1x 2-pers Arrière: 1x 2-pers |
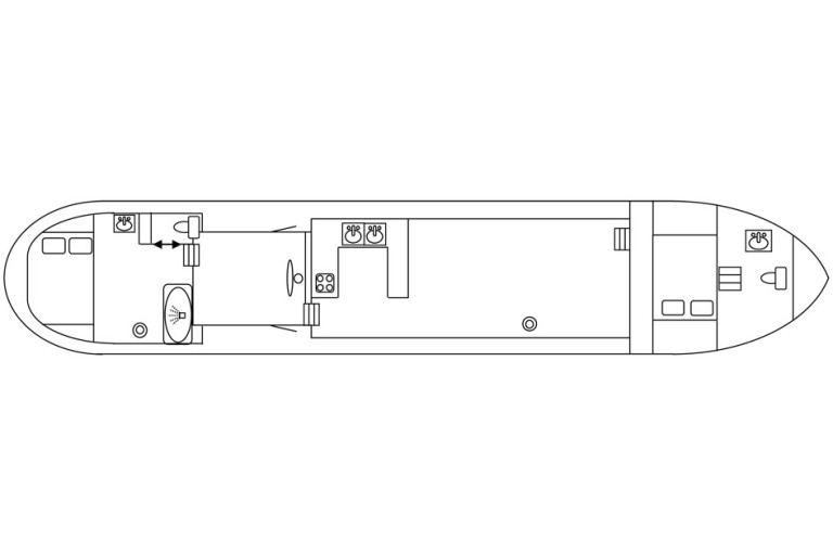
| Plan d'aménagement (Pas à l'échelle): | Voir l'annexe |
| salles de bain: | Arrière: bain avec douche évier avec robinet de mélange avec eau courante c&f l'avant: évier robinet de mélange avec eau courante c&f |
| Toilettes: | Arrière: toilettes lavabo avec eau courante c&f l'avant: toilettes |
| Cuisine: | U-forme de cuisine |
| Cuisinière: | 4-becs cuisinière Gaz acier inoxydable |
| Four: | four à gaz |
| Micro-ondes: | présent |
| Réfrigérateur: | présents 230 Volt |
| Congélateur: | petite compartiment de glace |
| Dessus de comptoir: | Plan de travail en bois franc |
| Évier: | évier en acier inoxydable |
| Robinet: | robinet de mélange avec eau courante c&f |
| Divertissement: | TV flatscreen |
| hauteur sous barrot (environ): | bateaux avant (environ) 2,00 m (in het luik / in the hatch / in der Luke / dans la trappe) salon (environ) 1,85 / 1,90 m cuisine (environ) 1,95 m timonerie (environ) 1,95 m toilettes derrière (environ) 1,85 m carré l'arrière (environ) 1,85 / 1,90 m |
| Plus d'informations: | machine à laver Le navire sera livré avec tout à bord moins d'effets personnels et d'œuvres d'art. |
équipements de navigation
| Équipements de navigation: | portable VHF Sailor RT144 VHF Sestrel compas feux de navigation Horn clinomètre |
Gréement et voiler
| Mât: | pins Laterne mât |
| Abaissable: | oui manuellement |
Équipements
| Ancre équipements: | Guindeau manuel avec moteur hydraulique ancre 18 m chaîne l'ancre dans écubier ancre Longueurs indiquées sont approximatives |
| Échelle d'embarquement: | présents |
| Filière / Balcon: | filière de rempart |
| Annexe: | polyester annexe un moteur électrique 2 cv |
| Bossoir: | présents |
| Sécurité: | 6 extincteurs d'incendie 4 gilets de sauvetage 1 bouée de sauvetage 1 couverture anti-feu 2x coffre-fort 1 détecteur(s) de monoxyde de carbone 1 détecteur de fumée |
| Plus d'informations: | La prise en charge de l'amarrage de location en cours récréation peuvent être discutés avec le gestionnaire du port. 3x toit fenêtre en feuillus 2 Tentes sur la fenêtre de toit échelle d'embarquement en aluminium Plan de Sondage est disponible (17-09-2019) terrasse 2x envoyer chaise nettoyeur haute pression |




