Luxe Motor 18.30 Unter Vorbehalt verkauft
Vision Doeve Maklers
Im Jahr 2002 wurde dieses Luxe-Motor-Casco neu gebaut und anschließend vom ersten Eigentümer vollständig ausgebaut. Der jetzige, zweite Eigentümer hat danach verschiedene Verbesserungen durchführen lassen, darunter die Installation von Teleskop-Spudpfählen. Anschließend sind sie mit dem Schiff nach Frankreich gefahren und sogar bis nach Béziers auf dem Canal du Midi. Dieses Fahrendes Wohnschiff ist komfortabel ausgestattet, unter anderem mit Zentralheizung, einer Klimaanlage in der Eignerkabine, einer Waschmaschine und einem Trockner, einem separaten Badezimmer mit Duschkabine sowie einen separaten Toilettenraum. Die großzügige Eignerkabine bietet hohen Komfort, während der Stauraum unter dem Steuerhaus problemlos als Doppelkabine genutzt werden kann. Die vielen großen Fenster im Steuerhaus und im Salon sorgen für eine besonders helle und offene Atmosphäre an Bord. Die geräumige Kombüse verfügt über ein 4-flammiges Induktionskochfeld, einen Geschirrspüler, zwei Kühlschränke und ein separater Gefrierschrank. Dank der zahlreichen Stauräume eignet sich dieses Schiff hervorragend für dauerhaftes Wohnen oder längere Reisen. Aufgrund ihrer Abmessungen ist keine ES-TRIN-Zertifizierung erforderlich, wodurch das Schiff bestens geeignet ist für Fahrten auf den europäischen Binnenwasserstraßen.
Mehr Information
Allgemeine Information
| Werft: | Joint Stock shipbuilding company, RU-Rybinsk unter eigene Kontrolle abgebaut |
| Konstrukteur / Architekt: | K & S Maritiem Technisch Bureau, NL-Enkhuizen |
| Rumpfform: | V-Boden |
| Rumpf Material: | Stahl 6 mm |
| Deck Material: | Stahl 6 mm Flexiteek Decks (niet / not / nicht / ne pas 100%) |
| Aufbau Material: | Stahl 6 mm |
| Bauausführung: | geschweisst Scheuerleiste rundum Schanzkleid rundum Breite Gangborden Klampen aus Nirosta Pollers 2 wasserdichte Schott(en) |
| Selbstbau: | Innenausstattung |
| Steueranlage: | hydraulisch Steuerrad elektrisch Steuerung = Fernbedienung Fischschwanz ruder |
| Fenster: | Doppelverglasung & Einzelnverglasung Aluminium Fensterrahmen Aluminium Bullaugen Hartholz Aussentüren |
| Verdrängung (zirka): | 50 ton |
| Ballast (zirka): | 9 ton Beton gegossen |
| Durchfahrtshöhe (zirka): | 3,20 m |
| Eigner: | Belgischer Eigner |
| Registrierung: | Belgische Registrierung |
| Farbe / Farbe-System: | Schwarzer Rumpf Weisser Aufbau Rotes Schanzkleid Zwei-Komponenten Basis-System Ein-Komponenten Finish etwas rückständige Erhaltung letzte Rumpfbehandlung unter Wasser 09-2022 |
| Zertifikate: | kein Zertifikat Anforderung |
| CE Zertifizierung: | D |
| Geeignet für / als: | geeignet zum Bewohnen Binnengewässer Erholungs-Schiff |
| Allgemeine Information: | vom zweiten Eigner Alle Transaktionen müssen dem Kunden oder Eigentümer des Schiffes zur Genehmigung vorgelegt werden. Bis zur Erteilung dieser Genehmigung sind alle abgegebenen Angebote völlig freibleibend. Übergabe in Absprache. |
| Weitere Information: | Rumpfform ist geeignet zum Trockenfallen. geräumiges Vordeck geräumiges Achterdeck klassische Linien Vorpiek mit Kettenkasten Sehr gut für Fahrten auf den europäischen Kanälen und Flüssen. Sehr gut für Fahrten auf den französischen Kanälen und Flüssen. |
Technische Information
| Maschinenleistung: | 118 Ps 87 kW |
| Maschinen Marke: | DAF |
| Maschinentyp: | DF 615 |
| Zylinderzahl: | 6 |
| Überholung Maschine: | 2004 überholt installiert |
| Betriebsstunden (Zirka): | 950 nach Überholung an dem Stunden-Zähler |
| Kraftstoff: | Diesel |
| Kraftstofftank (zirka): | 1x 1200 Liter weiß 1x 1200 Liter rot Stahl Tank(s) |
| Kühlung System: | Kastenkühlung trockener Auspuff isoliert Auspuff |
| Antrieb: | 4 Flügel Propeller Python homokinetisches Gelenk in Propellerwelle mit Drucklager Fettgeschmierte Schraubenwelle |
| Getriebe: | ZF-Hurth 45-1 hydraulisch Reduzierung/Übersetzung 3,03:1 |
| Geschwindigkeit (zirka): | 11 Kilometer/Stunde Kreuzgeschwindigkeit |
| Heizung: | Kabola KB45 Ecoline Combi Kessel auf Diesel Heizkörper & über Klimaanlage |
| Klima-Anlage: | Vorhanden in der Eignerkabine reversed circle |
| Bugstrahlruder: | Drinkwaard elektrische Bugstrahlruder 24 Volt 20 Ps |
| Elektrisches System: | 24 / 230 Volt 230 Volt Landstromanschluss mit automatischer Umschaltung Victron mainmaster control |
| Batterien: | 2x 220 Ah Startbatterie(n) 840 Ah Lichtbatterie(n) (12x 2 Volt) 2x 220 Ah Bugstrahlruder batterie(n) 1x 60 Ah Startbatterie(n) Startbatterie(n) Generator |
| Batterie Ladegerät: | Victron Quattro Kombi Umformer/Ladegerät 24/5000/120 Whisper Power WBC Handy 70 Batterie Ladegerät 12/7 Xenteq TBC 500 Prof Batterie Ladegerät |
| Batterie Trenndiode: | Victron Argofet Batterie Trenndiode |
| Trennungstransformator: | Victron Trennungstransformator 7000 Watt |
| Fehlerstromschutzschalter: | Vorhanden |
| Generator: | Lister Petter Diesel Generator 1500 RPM 17 kVA 230 Volt Kastenkühlung 300 Betriebsstunden (zirka.) |
| Alternator: | Mastervolt ALPHA PRO II Wechselstromgenerator 100 Ampère |
| Umformer: | Victron Quattro Kombi Umformer/Ladegerät 24/5000/120 |
| Sonnenkollektor: | 8x Sonnenkollektor Victron SmartSolar MTTP 150/85-TR |
| Frischwassertank (zirka): | 5000 Liter 2 Stahl Tank(s) |
| Wasserdruckanlage: | elektrische Wasserpumpe |
| Warmwasser System: | durch die Zentralheizung |
| Schmutzwassertank (zirka): | 200 Liter 1 Nirosta Tank(s) |
| Diesel Wasserabscheider: | Vorhanden |
| Maschinenraum: | gut gepflegt sauberer Maschinenraum Siehe Fotos |
| Lenz-Bilgepumpe: | elektrische Pumpe mit Sammelrohr |
| Deck Waschpumpe: | Stork elektrische Pumpe |
| Gasnetz: | kein Gas an Bord |
| Weitere Information: | Luftkompressor LED-Beleuchtung |
Unterkunft
| Innenausstattung: | Kirsch Interieur Marine Sperrholz Teak Fussboden mit Esche siehe die Fotos geeignet zum Wohnen an Bord |
| Isolation: | Steinwolle mit Aluminium-Folie |
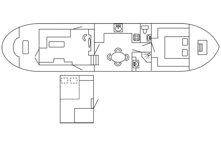
| Kabinen: | 2 Kabinen |
| Koje: | Vorne: 1x 2-pers Bettcouch: 1x 2-pers |
| Grundriss Plan (nicht maßstabgetreu): | Siehe Anhang |
| Badezimmer: | Duschkabine Wasserhahn mit Thermostat Waschbecken mit h&k fliessendes Wasser teilweise gefliest |
| Toilette: | elektrische Toilette Waschbecken kaltem Wasser Fliesen Toilette |
| Kombüse / Küche: | L-Form Kombüse |
| Herd: | Siemens 4-Flammen Herd Induktions-Herd Siemens Dunstabzugshaube |
| Kühlschrank: | 1x Inventum Kühlschrank 1x Bosch Kühlschrank |
| Tiefkühlschrank: | 1x Liebherr Tiefkühlschrank |
| Spüle: | Resopal Anrichte |
| Waschbecken: | Nirosta Waschbecken |
| Wasserhahn: | Mix Hahn mit warmes & kaltes fliessendes Wasser |
| Unterhaltung: | 1x flatscreen Fernseher Selbst Suchende Satelliten-Antenne |
| Stehhöhe (Zirka): | Vorkabine (zirka) 1,99 m Korridor (zirka) 1,95 m Toilette (zirka) 1,89 m Dusche (zirka) 1,89 m Salon (zirka) 2,18 m Steuerhaus (zirka) 2,05 m Achter kabine (zirka) 2,43 / 1,33 m |
| Weitere Information: | Miele Waschmaschine Waschtrockner Das Schiff wird ohne die privaten Gegenstände wie Möbel, Kleidung, Kunst und Werkzeuge übertragen werden. |
Navigationsausrüstung
| Navigationsausrüstung: | Autohelm Elektro-Kompass Navman 3100 windset Navman 3100 Echolot Navman 3100 Log 2x Sailor RT2048 UKW Raymarine ST60 Ruderstandanzeiger Plastimo Clinometer Sailor SP3510 Tragbare UKW Cobra MR HH415 Tragbare UKW Horn Scheinwerfer Hef-Tronic HT 1120 Wechselsprechanlage Navigationsbeleuchtung Blinklicht Kamera System PC-NAVIGO Kartenplotter Barometer Scheibenwischer Uhr |
Rigg und Segel
| Mast: | Geräteträger |
| Legbar: | Ja manuell |
Ausrüstung
| Anker Ausrüstung: | manuelle Ankerwinde Klip Anker Anker Kette in Ankerklüse 2x Spud Pol (elektrische) 5 m unter dem Boden 2x touchscreen control Angegebenen Länge(n) ist/sind Zirka |
| Outdoor Polster: | Vorhanden |
| Sonnensegel: | Vorhanden mit abnehmbaren Seitenwänden / Türen |
| Badeleiter: | Vorhanden |
| Seereling / Korb: | Nirosta Seereling auf Schanzkleid |
| Beiboot: | Vorhanden GFK Beiboot |
| Davits: | Vorhanden Nirosta |
| Sicherheit: | Rauchdetektors Feuerlöscher Feuerlöschdecke Rettungsring Rettungswesten automatische Feuerlöschanlage im Maschinenraum |
| Weitere Information: | 2x 24 Volt Nirosta Kran Steuerstuhl Aluminium Laufsteg Survey-Rapport des Unterwasserschiffs vorhanden (09-2022) |




