Péniche Hollandaise 25.66 avec certificat Vendu
Avis objectif de Doeve Courtiers
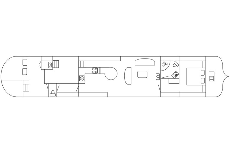
Ancien cargo fluvial qui a été entièrement réaménagé en Péniche Hollandaise, en tenant compte du tirant d'air pour qu'il puisse aussi très bien être utilisé en France, par exemple. Ce Klipperaak est avec sa disposition également très efficace. Par exemple, la cabine arrière est accessible de l'intérieur. L'agencement est le suivant : cabine propriétaire, salle de bain avec douche, salon spacieux avec cuisine ouverte et escalier vers le cockpit et porte vers le couloir à l'arrière, avec toilettes, lit double spacieux et un lit bébé, salle de bain avec lavabo et escalier vers le pont arrière . Dans le cockpit, avec tente de cockpit, se trouve le poste de pilotage et à partir duquel vous avez une bonne vue tout autour. Il y a un propulseur d'étrave rotatif à 360 degrés et un générateur placé dans le gaillard d'avant et la technologie supplémentaire est située dans la salle des machines. À nos yeux, une péniche à voile "prêt à partir".
Plus d'informations
Informations générales
| Chantier: | chantier naval J. Bijlholt, NL-Foxhol |
| Coque forme: | fond plat |
| Matériau de la coque: | acier |
| Matériau de le pont: | acier |
| Matériau de la superstructure: | acier |
| Méthode de construction: | riveté nouvel acier est soudé pavois autour bourrelet autour 2 cloisons étanche(s) bittes dans des armoires fermées Clipper arc Ouvert cockpit |
| Système de barre: | hydraulique roue gouvernail en acier gouvernail hors bord |
| Vitres: | châssis de fenêtre en bois & hublot pare-brise en bois dur |
| Déplacement (environ): | 70 Tonnes métriques estimé |
| lest (environ): | sans ballast vu |
| Tirant d'air (environ): | 3,20 m 2,45 m tout vers le bas |
| Propriétaire: | Propriétaire britannique |
| Immatriculation: | Bateau immatriculé Pays-Bas Bateau immatriculé B Les frais de changement de propriétaire et / éventuellement de suppression sont à la charge de l'acquéreur. |
| Couleur / système de peinture: | coque noire pavois vert superstructure crème voir les photos dernière traitement navire sous-marin 2017 |
| Certificats: | Communauté Certificat de navigation intérieure (TRIWV / ES-TRIN) zone 2 Pays-Bas zone 3 zone 4 Waal, Lek & NL Rhin valide jusqu'au: 09-2024 |
| Convient pour: | les voies navigables plus appropriés pour les voies navigables habitable bateau de plaisance |
| Plus d'informations: | Ligne classique La longueur spécifiée est entre l'arc et la poupe. La forme de la coque permet l'échouage à marée basse. pic avant avec puits à chaine Largeur spécifiée exclut les dérives latérales. Grand navire pour naviguer sur les canaux et les fleuves européens. Grand navire pour naviguer sur les canaux français et rivières. |
Informations techniques
| Puissance du moteur: | 114 cv 84 kW |
| Moteur marque: | Perkins |
| Modèle du moteur: | 6.354M |
| Nombre de cylindres: | 6 |
| Heures de fonctionnement (environ): | inconnus |
| Carburant: | diesel |
| Réservoir de carburant (environ): | 1x 800 litre 1x 225 litre 1x 200 litre réservoir(s) au Acier |
| Refroidissement: | fermée Échangeur de chaleur |
| Propulsion: | 3 pale hélice tube d'étambot lubrifié par graisse |
| Inverseur: | Paragon hydraulique réduction 3:1 |
| Vitesse (environ): | 8 kilomètre/heure Vitesse de croisière au 1800 RPM |
| Chauffage: | Kabola Old English poêle sur diesel |
| Hélice d'étrave: | Van Ballegooy 400 hélice d'étrave avec moteur diesel Iveco Aifo 55 cv 360 degrés pivotants proportionnelle |
| Système électrique: | 12 / 24 / 230 Volt 230 Volt Connexion alimentation quai avec commutation automatique Victron Phoenix Multi Control |
| Batteries: | 1x 180 Ah batterie(s) démarrage 4x 180 Ah batterie(s) de service (2022) 2x 100 Ah batterie(s) démarrage Hélice d'étrave 1x 100 Ah batterie(s) démarrage générateur Victron BMV-501 contrôleur de batterie |
| Chargeur de batterie: | Victron Phoenix MultiPlus combinaison inverseur/chargeur 24/3000/70 Victron Skylla-TG chargeur de batterie 24/50 |
| Transformateur d'isolement: | Sterling Power Zinc Saver / transformateur d'isolement 30 Amp |
| Disjoncteur différentiel: | présents |
| Générateur: | Lister Petter diesel 9,4 kVA 230 Volt 1500 RPM 2075 heures de fonctionnement (environ) fermé de refroidissement |
| Alternateur: | 1x 12 Volt 1x 24 Volt |
| Inverseur: | Victron Phoenix MultiPlus combinaison inverseur/chargeur 24/3000/70 |
| Panneaux solaires: | 10x panneau solaire |
| Réservoir d'eau (environ): | 1x 1200 litre 1x 600 litre plastique réservoir |
| Système de pressure d'eau: | Speck hydrophore |
| Système de Eau chaude: | 2x chaudière (230 Volts) = 2x 10 litre |
| Réservoir d'eaux usées (environ): | pas présent, mais emplacement pour installation disponible |
| Diesel séparateur d’eau: | présent |
| Pompe de cale: | 1x pompe manuelle 3x pompe électrique 1x pompes submersibles |
| Douche de pont: | présents 230 Volt |
| D'approvisionnement en gaz: | Oui, bouteille boîtes sur le pont |
| Plus d'informations: | hélice de rechange le cadre d'éclairage LED compresseur d'air |
Hébergements
| Intérieur: | différents matériaux ont été utilisés planchers de bois franc voir les photos |
| Isolation: | laine de roche |
| Cabines: | 2 cabines |
| Couchette: | l'avant: 1x 2-pers Arrière: 1x 2-pers |
| Plan d'aménagement (Pas à l'échelle): | Voir l'annexe |
| salles de bain: | l'avant: cabine de douche robinet de mélange avec eau courante c&f évier avec robinet de mélange avec eau courante c&f dans une chambre avec les toilettes Arrière: lavabo avec eau courante c&f |
| Toilettes: | 2x toilettes électriques |
| Cuisine: | le long des navires |
| Cuisinière: | 4-becs cuisinière Gaz en combinaison avec le four |
| Four: | four à gaz & grill |
| Réfrigérateur: | présents 230 Volt |
| Congélateur: | présents 230 Volt |
| Dessus de comptoir: | Plan de travail en bois franc |
| Évier: | évier en acier inoxydable évier de légumes |
| Robinet: | robinet de mélange avec eau courante c&f |
| Divertissement: | radio/CD TV flatscreen antenne satellite Humax free Sat box LG DVD joueur |
| hauteur sous barrot (environ): | cabine propriétaire (environ) 1,89 m Salle d'eau / toilettes avant (environ) 1,79 m salon (environ) 1,88 / 1,95 m cuisine (environ) 1,96 m en cours / corridor (environ) 1,39 m toilettes derrière (environ) 1,68 m carré l'arrière (environ) 1,82 m Salle d'eau derrière (environ) 1,71 m |
| Plus d'informations: | habitable assurer un entretien correct inventaire machine à laver |
équipements de navigation
| Équipements de navigation: | Cobra VHF avec DSC True Heading Carbon Pro Automatic Identification System (AIS) VDO l'indicateur d'angle de barre VDO échosondeur intercom signe bleu avec la lumière clignotante feux de navigation Horn baromètre |
Gréement et voiler
| Mât: | mât bois |
| Abaissable: | oui manuellement |
| dérive latérale: | dérives latérales en iroko 2x dérives latérales Treuil |
Équipements
| Ancre équipements: | guindeau manuel avec moteur électrique ancre chaîne l'ancre dans écubier ancre & ancre arrière |
| Bimini: | bimini au-dessus cockpit |
| Cockpit tente: | présents |
| Filière / Balcon: | filière de rempart |
| Annexe: | polyester annexe un moteur électrique |
| Sécurité: | bouées de sauvetage gilets de sauvetage extincteurs d'incendie en fonction des exigences de certification détecteur(s) de monoxyde de carbone alarme anti-gaz |
| Plus d'informations: | 2x toit fenêtre Tentes sur la fenêtre de toit réglez de le pont meubles échelle d'embarquement en aluminium échelle Tente sur annexe Plan de Sondage est disponible (09-2017) |




