Péniche Hollandaise 19.98 Vendu
Dimensions (m):
19.98 x 4.14 x 0.80
N° de réf.:
240504
Place de mouillage:
Près de Medemblik, Pays Bas
Année de construction:
1914
Material:
acier
Prix:
Vendu
TVA pas pertinent
Avis objectif de Doeve Courtiers
Ancien cargo fluvial entièrement repensé en péniche à voile. Le navire est entièrement autonome et équipé pour un long séjour à bord. Il y a, entre autres, quatre panneaux solaires, un générateur, une station d'épuration de l'eau, un système de chauffage central et un poêle à granulés à bord. A l'avant se trouve une grande chambre avec un lit double. Suivie d'une salle de bain avec cabine de douche. Puis la cuisine et un salon spacieux. Des ajustements ont été apportés au tableau arrière et à la poutre arrière, rendant le navire plus court et ne nécessitant donc plus de certificat.
Plus d'informations
Informations générales
| Chantier: | chantier naval W. Mulder, NL-Stadskanaal |
| Coque forme: | fond plat |
| Matériau de la coque: | fer/acier |
| Matériau de le pont: | acier |
| Matériau de la superstructure: | acier |
| Méthode de construction: | riveté nouvel acier est soudé pavois autour bourrelet toit à deux versants |
| Système de barre: | hydraulique roue gouvernail en acier gouvernail hors bord |
| Vitres: | châssis de fenêtre en acier |
| Déplacement (environ): | déplacement 58,827 Tonnes métriques |
| Tirant d'air (environ): | 2,15 m tout vers le bas |
| Propriétaire: | Propriétaire néerlandais |
| Immatriculation: | Bateau immatriculé Pays-Bas Bateau immatriculé B Les frais de changement de propriétaire et / éventuellement de suppression sont à la charge de l'acquéreur. |
| Couleur / système de peinture: | pavois rouge / brun superstructure blanche dernière traitement navire sous-marin 03-2021 |
| Certificats: | aucune exigence de certificat |
| Convient pour: | les voies navigables habitable & bateau de plaisance |
| Informations générales: | La clause de vieillesse s'applique. |
| Plus d'informations: | forme de coque est adapté pour echouer. Ligne classique pic avant avec puits à chaine pont avant spacieux spacieux le pont derrière Grand navire pour naviguer sur les canaux et les fleuves européens. Grand navire pour naviguer sur les canaux français et rivières. |
Informations techniques
| Puissance du moteur: | 85 cv 62 kW |
| Moteur marque: | DAF |
| tr / min: | 2400 RPM |
| Modèle du moteur: | 475 |
| Nombre de cylindres: | 6 |
| Heures de fonctionnement (environ): | 2950 sur le compteur des heures |
| Carburant: | diesel |
| Réservoir de carburant (environ): | 1x 1000 litre réservoir(s) au aluminium 1x 200 litre réservoir(s) au acier inoxydable |
| Refroidissement: | fermée pipes de refroidissement lieu tuyau d’échappement |
| Propulsion: | 3 pale hélice tube d'étambot lubrifié par graisse |
| Inverseur: | PRM hydraulique |
| Chauffage: | ACV chauffage central sur diesel pas connecté & Haigo poêle à pellet |
| Hélice d'étrave: | hélice d'étrave électricité 10 cv |
| Système électrique: | 12 / 24 / 230 / 400 Volt 230 Volt Connexion alimentation quai & 400 Volt Connexion alimentation quai |
| Batteries: | 12x 75 Ah batterie(s) de service (Optima blue top) 4x 90 Ah batterie(s) démarrage & Hélice d'étrave batterie(s) |
| Chargeur de batterie: | présents |
| Disjoncteur différentiel: | présents |
| Générateur: | Mitsubishi S4 diesel générateur (2012) 15 kVA 230 Volt 1500 RPM |
| Inverseur: | Victron Phoenix inverseur 24/3000 Victron Phoenix inverseur 24/800 |
| Panneaux solaires: | 4x panneau solaire Steca Solarix PRS 3030 & Phocos contrôleur de charge |
| Réservoir d'eau (environ): | 1x 80 litre plastique réservoir 1x 20 litre acier inoxydable réservoir |
| Système de pressure d'eau: | hydrophore |
| Système de filtre à eau: | Wyckomar UV-250 système pour produire l'eau potable de l’eau de la rivière fraîche ou de l'eau du canal |
| Système de Eau chaude: | Rinnai ballon d'eau chaude |
| Réservoir d'eaux usées (environ): | 1x 300 litre |
| Pompe de cale: | 2x pompe électrique |
| Douche de pont: | présents |
| D'approvisionnement en gaz: | Oui, bouteille boîtes sur le pont (LPG) ne répond pas aux exigences de sécurité actuelles |
| Plus d'informations: | compresseur d'air |
Hébergements
| Intérieur: | Contreplaqué de planchers de chêne fini de pin |
| Cabines: | 1 cabine |
| Couchette: | Propriétaires cabine: 1x 2-pers |
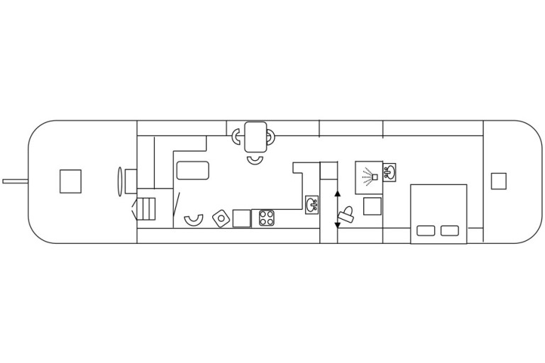
| Plan d'aménagement (Pas à l'échelle): | Voir l'annexe |
| salles de bain: | cabine de douche robinet thermostatique en partie carrelée dans une chambre avec les toilettes |
| Toilettes: | toilettes électriques dans salle de bain |
| Cuisine: | L-forme de cuisine |
| Cuisinière: | 4-becs cuisinière Gaz (LPG) acier inoxydable |
| Four: | Four à micro-ondes |
| Réfrigérateur: | présents 24 Volt combinaison avec congélateur |
| Congélateur: | compartiment de glace |
| Dessus de comptoir: | dessus de comptoir |
| Évier: | évier en acier inoxydable |
| Robinet: | robinet de mélange avec eau courante c&f |
| Divertissement: | TV flatscreen DAB+ radio |
| hauteur sous barrot (environ): | salon (environ) 1,94 m / 1,88 m cuisine (environ) 1,85 m Salle d'eau / toilettes (environ) 1,87 m cabine (environ) 1,89 m |
| Plus d'informations: | machine à laver sèche-linge |
équipements de navigation
| Équipements de navigation: | Horn feux de navigation |
Gréement et voiler
| Mât: | mât bois Laterne mât |
| Abaissable: | oui manuellement |
Équipements
| Ancre équipements: | guindeau manuel avec moteur électrique Spek ancre chaîne l'ancre dans écubier ancre |
| Filière / Balcon: | filière autour du pont arrière & main courante |
| Sécurité: | 3x extincteur d’incendie |
| Plus d'informations: | grue acier hydraulique échelle d'embarquement en aluminium 3x toit fenêtre Plan de Sondage est disponible (06-2028) |




