Peniche Hollandaise 16.30 (Kraak) Vendu
Avis objectif de Doeve Courtiers
Il s'agit d'un navire unique dont l'histoire est peu connue, mais qui était très probablement utilisé comme navire de pose de bouées avec lequel le gaz destiné à l'éclairage bouées était transporté. Le propriétaire actuel a entièrement révisé le navire en 1999/2000 et l'a transformé en péniche. Equipé de double vitrage et d'un siège en U spacieux et confortable dans le salon d'où il y a une très belle vue tout autour. On y trouve également une salle d'eau avec douche, lavabo et WC, ainsi qu'une cuisine et la cabine propriétaire. Un espace de rangement spacieux est disponible sous le salon. Un moteur Mitsubishi 6 cylindres moderne a également été installé. Son pont arrière spacieux, avec tente solaire, est un excellent endroit pour séjourner et accueillir vos visiteurs. Avec un tirage d'air de seulement env. 2,60 mètres, une très grande surface de navigation est navigable.
Plus d'informations
Informations générales
| Chantier: | chantier naval NL-Rotterdam |
| Année la rénovation: | 1999/2000 |
| Coque forme: | fond plat |
| Matériau de la coque: | fer/acier |
| Matériau de le pont: | fer/acier acier |
| Matériau de la superstructure: | acier & feuillus |
| Méthode de construction: | riveté nouvel acier est soudé bourrelet autour pavois autour deckhouse |
| l'auto construction: | en partie |
| Système de barre: | hydraulique roue |
| Vitres: | portes extérieures en bois dur châssis de fenêtre en feuillus double vitre de verre |
| Déplacement (environ): | 40 Tonnes métriques |
| lest (environ): | béton |
| Tirant d'air (environ): | 2,60 m tout vers le bas |
| Propriétaire: | Propriétaire néerlandais |
| Couleur / système de peinture: | coque noire pavois bordeaux rouge superstructure blanche & couche transparente 2010 sous-marin avec coque sablé dernière traitement navire sous-marin 06-2021 |
| Certificats: | aucune exigence de certificat |
| Convient pour: | les voies navigables bateau de plaisance habitable |
| Informations générales: | La clause de vieillesse s'applique. |
| Plus d'informations: | l'année de construction donnée est une estimation. spacieux le pont derrière Vedette classique forme de coque est adapté pour echouer. Grand navire pour naviguer sur les canaux et les fleuves européens. Grand navire pour naviguer sur les canaux français et rivières. |
Informations techniques
| Puissance du moteur: | 144 cv 106 kW |
| Moteur marque: | Mitsubishi |
| tr / min: | 1500 RPM |
| Modèle du moteur: | 6D16-T |
| Nombre de cylindres: | 6 |
| Année de construction moteur: | 2002 |
| Heures de fonctionnement (environ): | inconnus |
| Carburant: | diesel 3 ltr/hrs la consommation du moteur à vitesse de croisière (comme l'a déclaré) |
| Réservoir de carburant (environ): | 600 litre 1 réservoir(s) au Acier |
| Refroidissement: | fermée pipes de refroidissement |
| Propulsion: | 4 pale hélice tube d'étambot lubrifié par graisse lubrificateur de graisse Python Transmissions avec homocinétiques avec palier de butée |
| Inverseur: | ZF 63 hydraulique (2011) réduction 1,93:1 |
| Vitesse (environ): | 8 Vitesse de croisière kilomètre/heure 1000 RPM 12 Vitesse max. kilomètre/heure |
| Hélice d'étrave: | Side-Power SE 130/250T hélice d'étrave électricité 24 Volt 130 KGF |
| Système électrique: | 24 / 230 Volt 230 Volt Connexion alimentation quai |
| Batteries: | 2x 50 Ah Hélice d'étrave batterie(s) Optima Red Top 2x 240 Ah AGM batterie(s) de service (08-2023) 2x 110 Ah AGM batterie(s) démarrage |
| Chargeur de batterie: | Ecobat 16 Pro chargeur de batterie |
| Disjoncteur différentiel: | présents |
| Inverseur: | inverseur 24/1200 |
| Panneaux solaires: | 5x panneau solaire |
| Réservoir d'eau (environ): | 1x 450 litre 1x 450 litre (niet in gebruik / not in use / nicht in Gebrauch / non utilisé) 1x 50 litre |
| Système de pressure d'eau: | pompe d'eau électrique |
| Système de Eau chaude: | chaudière (moteur) |
| Réservoir d'eaux usées (environ): | 600 litre 1 Acier 400 litre 1 acier inoxydable |
Hébergements
| Intérieur: | différents matériaux ont été utilisés fini de Iroko voir les photos |
| Isolation: | mousse d'isolation |
| Cabines: | 1 cabine |
| Couchette: | l'avant: 1x 2-pers in V Canapé-lit: 1x 2-pers |
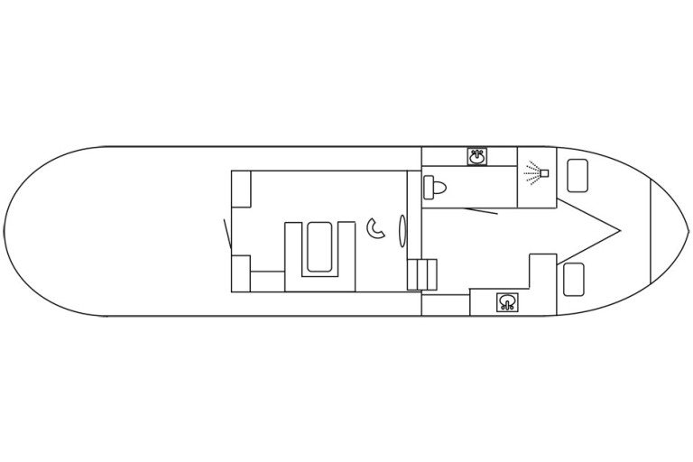
| Plan d'aménagement (Pas à l'échelle): | Voir l'annexe |
| salles de bain: | cabine de douche chaude et eau froide évier froide courante l'eau dans une chambre avec les toilettes |
| Toilettes: | toilettes électriques |
| Cuisine: | L-forme de cuisine |
| Cuisinière: | Dometic ORIGO 6000 2-becs cuisinière alcool dénaturé en combinaison avec le four |
| Four: | Dometic ORIGO 6000 four |
| Réfrigérateur: | Coolmatic Réfrigérateur 24 Volt combinaison avec congélateur |
| Congélateur: | congélateur |
| Dessus de comptoir: | dessus de comptoir en Formica |
| Évier: | évier en acier inoxydable |
| Robinet: | chaude et eau froide |
| hauteur sous barrot (environ): | salon (environ) 2,06 m cuisine (environ) 1,91 m Salle d'eau / toilettes (environ) 1,87 m douche (environ) 1,83 m |
équipements de navigation
| Équipements de navigation: | ICOM IC-M59 euro VHF l'indicateur d'angle de barre feux de navigation Horn essuie-glace pendule thermomètre hygromètre |
Gréement et voiler
| Mât: | Laterne mât bois dur |
| Abaissable: | oui manuellement |
Équipements
| Ancre équipements: | guindeau manuel corde l ancre ancre dans écubier ancre & spud pour l'amarrage (hydraulique) 2,50 m sous le fond Longueurs indiquées sont approximatives |
| Deck de voile: | couverture autour dela timonerie en boiserie |
| Bimini: | bimini au pont arrière |
| Filière / Balcon: | filière de rempart |
| Sécurité: | bouées de sauvetage extincteurs d'incendie gilets de sauvetage |
| Plus d'informations: | feux de pont échelle d'embarquement en feuillus 2x toit fenêtre en feuillus envoyer chaise |




