Dutch Barge 26.18 with TRIWV Sold
Vision Doeve Brokers
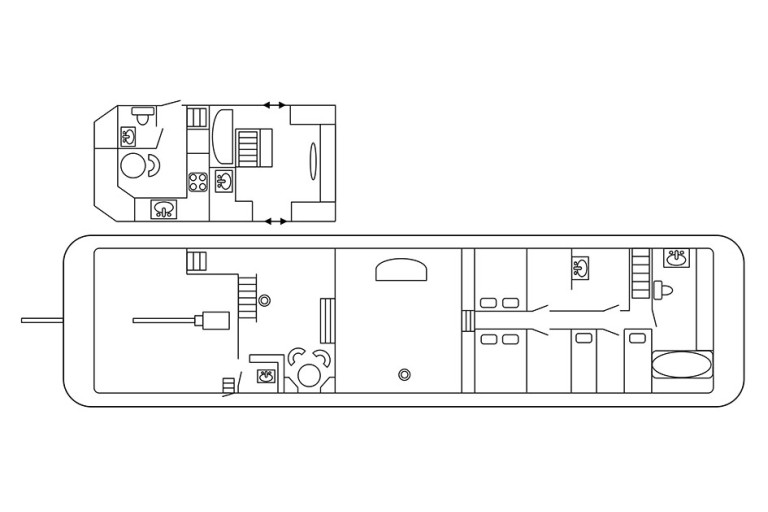
Former inland freighter that has been converted into a sailing live aboard. Partly because of her partly covered gangways, she is a striking appearance. The galley is located in the aft cabin, but can perhaps better be described as a living kitchen. One floor below there is a large room with a sitting area and a bar. From there you have access to the engine room. The bar area is also connected to the salon which is located on an elevation due to the underlying water tank. Next are at starboard side two guest cabins and at port side the spacious owners cabin. Finally, there is the bathroom with toilet including a bath with hand shower. This barge is extremely spacious inside and has also two sundecks outside. The ship does have overdue maintenance. The interior requires attention as well as parts of the technology. Outside the paintwork needs to be tackled. It is a project but for someone who is a bit handy will most of the work not be a problem.
More information
General information
| Yard: | Shipyard NL-Stadskanaal |
| Hull shape: | flatbottom |
| Hull material: | iron/steel |
| Deck material: | iron/steel |
| Superstructure material: | steel |
| Construction method: | riveted new steel is welded rubbing strake around deckhouse closed bollard cabinets 1 watertight bulkhead(s) with watertight door(s) |
| Steering system: | electric hydraulic steering wheel |
| Windows: | steel window frames aluminium windows frames rubber window frames bronze portholes |
| Displacement (approx.): | displacement 90,726 m3 |
| Airdraft (approx.): | 3,40 m everything down |
| Owner: | Dutch owner |
| Colour / Paint System: | blue hull white superstructure overdue maintenance last underwatership treatment 08-2016 |
| Certificates: | inland waterways certificated (TRIWV / ES-TRIN) zone 2 Netherlands zone 3 zone 4 valid until: 08-2023 |
| Suitable for / as: | suitable as a year round live- aboard recreational vessel inland waterways |
| General information: | offered in the condition that she is in |
| Additional information: | roomy foredeck spacious aftdeck Great vessel for cruising on the European canals and rivers. Great vessel for cruising on the French canals and rivers. |
Technical information
| Enginepower: | 105 Hp 77 kW |
| Engine brand: | DAF |
| Revolutions: | 2400 RPM |
| Engine model: | DD 575 |
| Number of cylinders: | 6 |
| Construction year engine: | unknown |
| Running hours (approx.): | unknown |
| Fuel: | diesel |
| Fuel tank (approx.): | 1000 litre 2 steel tank(s) |
| Cooling system: | closed box cooler dry exhaust insulated exhaust |
| Propulsion: | greased lubrication of propeller shaft |
| Gearbox: | Velvet hydraulic |
| Heating: | Kabola central heating combi boiler on diesel |
| Bow thruster: | hydraulic bow thruster not working |
| Electricity system: | 24 / 230 / 400 Volt 230 Volt shore power connection |
| Batteries: | 2x 140 Ah 4x 200 Ah |
| Battery charger: | Victron Quattro combi inverter/charger 24/3000/70 Ferm battery charger 12/20 Victron Energy blue power battery charger 12/5 |
| Earth-leakage breaker: | present |
| Genny: | Deutz diesel genny 5 kVA 230 Volt, 1500 RPM & 2x diesel genny functioning is unknown |
| Inverter: | Victron Quattro combi inverter/charger 24/3000/70 |
| Fresh water tank (approx.): | 7000 litre 1x steel tank(s) |
| Water pressure system: | hydrophore pump |
| Hot water system: | through the central heating |
| Diesel waterseparator: | present |
| Engineroom: | see photographs |
| Bilge pump: | present 1x electric pump |
| Deck wash pump: | present 1x electric pump |
| Gas system: | yes, bottle(s) in bottle box |
Accommodation
| Interior: | various materials have been used overdue maintenance see photographs |
| Insulation: | yes |
| Cabins: | 3 cabins |
| Berth: | owners cabin: 1x 2-pers Guest cabin(s): 1x 2-pers Guest cabin(s): 2x 1-pers |
| Lay-out plan (not to scale): | see attachment |
| Bathroom: | bath with shower hot & cold running water in 1 area together with the toilet |
| Toilet / Heads: | Forward: flush toilet Aft: flush toilet |
| Galley: | L-shape galley |
| Cooker: | 4-burner hob on gas cookerhood stainless steel |
| Microwave: | Kenwood microwave/oven |
| Fridge / Refrigerator: | present IKEA 230 Volt |
| Freezer: | ice compartment |
| Worktop: | formica worktop |
| Washbasin: | stainless steel sink |
| Water tap: | mixer tap with hot & cold running water |
| Dishwasher: | dishwasher |
| Entertainment: | 1x flatscreen TV satellite antenna |
| Headroom (approx.): | ownerscabin (approx.) 1,96 m toilet in the front (approx.) 1,90 m bathroom (approx.) 1,90 m corridor / walkthrough (approx.) 2,01 m guest cabin (approx.) 1,91 m guest cabin (approx.) 2,07 m salon (approx.) 2,00 m bar (approx.) 1,85 m galley (approx.) 1,88 m wheelhouse (approx.) 1,85 m |
| Additional information: | Samsung washing machine Hotpoint tumble dryer |
Navigation equipment
| Navigation equipment: | em-trak A100 Automatic Identification System (AIS) Sailtron r/t80 VHF barometer thermometer blue board with oscillating light window wiper |
Rigging and sails
| Mast: | lantern mast steel |
| Lowerable: | yes manual |
Equipment
| Anchor equipment: | electric anchor winch anchor anchor chain in hawse-hole Aft: electric anchor winch Pool anchor anchor chain |
| Outdoor cushions: | present sun bed on foredeck |
| Searail / Pulpit: | guardrail around foredeck guardrail around upperdeck |
| Safety: | 3 fire extinguishers 3 life buoys life jackets according to the certification requirements |
| Additional information: | set deck furniture Survey report of the underwatership is available (08-2016) crane |




