Hotel / Passenger ship 18 pax
Vision Doeve Brokers
Former inland cargo ship that has been completely converted into a comfortable and luxurious hotel / passenger vessel. This lady is in a good state of repair, making it a vessel that can be used immediately. She is also very suitable for using as a Bed & Breakfast accommodation or as a Sailing Live Aboard (or a combination of those 2). There are a total of 9 guest cabins, each with an en-suite bathroom, as well as 4 neat crew cabins (renovated in 2019). The spacious salon is very light and offers a good view to the outside. The professionally equipped kitchen is not out of place and gives the chef every opportunity to apply his magic. There is a deck terrace situated on the aft cabin. In our view, an excellent opportunity to be introduced to this charter world, possibly with the guidance of the seller, or to obtain a unique Sailing Live Aboard / Houseboat that is easy to navigate.
More information
General information
| Yard: | Shipyard Kievit en Van Reede, NL-Papendrecht |
| Hull shape: | flatbottom |
| Hull material: | iron/steel |
| Deck material: | iron/steel |
| Superstructure material: | steel |
| Construction method: | riveted new steel is welded rubbing strake around deckhouse wide body superstructure 6 watertight bulkhead(s) |
| Steering system: | manual hydraulic steering & power steering wheel & joystick |
| Windows: | aluminium windows frames aluminium portholes bronze portholes double glazing in wheelhouse |
| Displacement (approx.): | maximum allowable displacement 197,006 m3 displacement in empty condition 167,899 m3 displacement 29,107 m3 |
| Ballast (approx.): | 25 ton poured concrete & bitumen |
| Airdraft (approx.): | 4,90 m everything down |
| Owner: | Dutch owner |
| Registration: | Dutch registered B-registered Costs for the change of ownership and / eventually deletion are for purchasers amount. |
| Colour / Paint System: | black hull white bulwark blue superstructure & white superstructure |
| Certificates: | inland waterways certificated (TRIWV / ES-TRIN) zone 2 Netherlands zone 3 zone 4 Waal, Lek & NL Rhine |
| Suitable for / as: | commercial shipping inland shipping useful as charter & suitable as a year round live- aboard |
| General information: | Know-how and information about sailing areas can be passed on. Acquisition of the current operation can be discussed. Sellers are possibly willing to part finance. Hand over in consultation, charter contracts must be complied. |
| Additional information: | The techniques used on board are commercial shipping quality. 18 hotel guests max 24 50 day guests Hull shape is suitable for drying out. forepeak with chain locker Great vessel for cruising on the European canals and rivers. |
Technical information
| Enginepower: | 255 Hp 188 kW |
| Engine brand: | Scania |
| Revolutions: | 1800 RPM |
| Engine model: | D81140 |
| Number of cylinders: | 6 |
| Construction year engine: | 1984 |
| Overhaul engine: | approximately 2016 |
| Running hours (approx.): | after overhaul 3000 (05-2021) |
| Fuel: | diesel |
| Fuel tank (approx.): | 3500 litre 3 steel tank(s) 500 litre 1 steel tank(s) |
| Cooling system: | closed box cooler |
| Propulsion: | 3 blade propeller greased lubrication of propeller shaft greasing device |
| Gearbox: | Capitol hydraulic |
| Speed (approx.): | 16 km/hour cruising speed at 1600 RPM 17,5 km/hour top speed |
| Heating: | ACV central heating on diesel combi boiler |
| Bow thruster: | Iveco Aifo bow thruster with dieselengine 50 Hp proportional |
| Electricity system: | 12 / 24 / 230 / 400 Volt 400 Volt shore power connection |
| Batteries: | traction batterie bank 12x 2 Volt 2x 230 Ah starter batterie(s) 1x 102 Ah starter batterie(s) bow thruster 1x 100 Ah starter batterie(s) generator 1x 100 Ah starter batterie(s) generator 2x 230 Ah emergency batterie(s) |
| Battery charger: | Victron Centaur battery charger 24/16 Victron Phoenix MultiPlus combi inverter/charger 24/3000/70 |
| Earth-leakage breaker: | present |
| Genny: | BW 13,5/15TKKS whisper set (Mitsubishi diesel) 13,5 kVA, 230/400 Volt @ 1500 RPM running hours (approx.) 8525 (05-2021) BW whisper set (Mitsubishi diesel) 13,5 kVA, 230 Volt @ 1500 RPM running hours (approx.) 4000 (05-2021) |
| Inverter: | Victron Phoenix MultiPlus combi inverter/charger 24/3000/70 |
| Fresh water tank (approx.): | 14000 litre 2 steel tank(s) cemented tank(s) |
| Water pressure system: | electric water pump |
| Hot water system: | through the central heating |
| Holding tank (approx.): | 1x 2000 litre 1x 1000 litre |
| Engineroom: | see photographs |
| Bilge pump: | electric pump general service pump |
| Deck wash pump: | electric pump |
| Gas system: | present Gas certificate |
| Additional information: | 300 liter lubrication oil tank (approx.) LED lightning |
Accommodation
| Interior: | various materials have been used very well maintained see photographs |
| Insulation: | Rockwool |
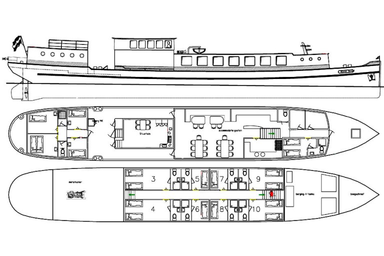
| Cabins: | 9 4 |
| Berth: | Guest cabin(s): 5 cabins: 2x 1-pers 4 cabins: 2x 1-pers = bunk bed: Crew cabin(s): 1 cabin: 1x 2-pers 3 cabins: 1x 1-pers |
| Lay-out plan (not to scale): | see attachment |
| Bathroom: | 9x guest cabin(s): En Suite shower thermostat tap washbasin hot & cold running water in 1 area together with the toilet crew quarters: shower thermostat tap cabins with wash basin with mixer tap |
| Toilet / Heads: | 9 guest cabin: flush toilet 1x day toilet crew quarters: 1x flush toilet |
| Galley: | U-shape galley |
| Cooker: | 6-burner hob on gas stainless steel in combination with the oven cookerhood |
| Oven: | gas oven |
| Microwave: | microwave/oven |
| Fridge / Refrigerator: | present 230 Volt bottles cooler |
| Freezer: | 2x freezer 230 Volt |
| Worktop: | stainless steel worktop |
| Washbasin: | stainless steel sink |
| Water tap: | hot & cold running water |
| Dishwasher: | dishwasher |
| Entertainment: | stereoset flatscreen TV intercom/music system |
| Headroom (approx.): | below deck (approx.) 1,98 m upper deck (approx.) 2,04 / 2,17 m wheelhouse (approx.) 1,95 m aftcabin (approx.) 1,97 m |
| Additional information: | coffee machine washing machine tumble dryer Full charter inventory is present. |
Navigation equipment
| Navigation equipment: | 2x Debeg 6448 VHF Comnav Voyager X3 Automatic Identification System (AIS) PC Navigo chartplotter computer Furuno GPS intercom rudder indicator blue board with oscillating light 2x window wiper horn navigation lights bluetooth headsets |
Rigging and sails
| Mast: | lantern mast stainless steel |
| Lowerable: | yes manual |
Equipment
| Anchor equipment: | hydraulic anchor winch Pool anchor anchor chain in hawse-hole |
| Searail / Pulpit: | guardrail around upperdeck |
| Dinghy: | Plastic |
| Safety: | life buoys fire extinguishers fire alarm system life jackets inflatable life jackets according to the certification requirements |
| Additional information: | aluminium gangway set deck furniture deck lights sundeck steering chair |




