Luxe Motor 19.97 Sold
Vision Doeve Brokers
Former inland cargo vessel that was completely converted to her current status quo about 12 years ago. Since she has been well maintained so that she still looks great. With her (measured) dimensions, there is no ES-TRIN certification obligation. The spacious aft cabin is equipped with a bathroom and owner's cabin. A spacious seating area has been realized on top of it, which is accessible through a door from the wheelhouse. The wheelhouse is attractive and spacious with the steering position, bench and 2 side doors. The salon has a spacious seating area and an L-shaped kitchen. The generator and the inverter etc. are placed in the forepeak. In our view a very well maintained ship that was out of the water in 06-2022 and has been inspected then. This Dutch Barge is ready to go.
More information
General information
| Yard: | unknown |
| Yard rebuilt: | Shipyard Multiship, NL-Harlingen & Piet van Walsum, Oostvoorne |
| Rebuilt year: | 2010 |
| Hull shape: | flatbottom |
| Hull material: | steel |
| Deck material: | steel |
| Superstructure material: | steel |
| Construction method: | riveted new steel is welded wide side decks (gunnels) rubbing strake around bulwark deckhouse 3x bulkhead |
| Steering system: | hydraulic wheel |
| Windows: | aluminium windows frames double glazing hardwood outside doors |
| Displacement (approx.): | maximum allowable displacement 70,783 m3 displacement in empty condition 61,299 m3 displacement 9,484 m3 |
| Ballast (approx.): | no ballast |
| Airdraft (approx.): | 2,95 m everything down |
| Owner: | Swiss owner |
| Registration: | Dutch registered B-registered Costs for the change of ownership and / eventually deletion are for purchasers amount. |
| Colour / Paint System: | black hull green bulwark white superstructure very well maintained last underwatership treatment 06-2022 |
| Certificates: | no certificate requirement |
| Suitable for / as: | inland waterways suitable as a year round live- aboard recreational vessel suitable for bigger waterways |
| General information: | good sailing characteristics |
| Additional information: | Given construction year is an estimate. forepeak with chain locker Hull shape is suitable for drying out. straight hull Great vessel for cruising on the European canals and rivers. Great vessel for cruising on the French canals and rivers. |
Technical information
| Enginepower: | 130 Hp 95 kW |
| Engine brand: | DAF |
| Revolutions: | 2000 RPM |
| Engine model: | 615 |
| Number of cylinders: | 6 |
| Running hours (approx.): | 5000 on the hour counter |
| Fuel: | diesel |
| Fuel tank (approx.): | 2000 litre 1 steel tank(s) |
| Cooling system: | closed cooling pipes |
| Propulsion: | 4 blade propeller greased lubrication of propeller shaft |
| Gearbox: | Masson hydraulic |
| Speed (approx.): | 12 km/hour cruising speed at 2000 RPM |
| Heating: | Kabola HR 400 central heating on diesel & stove on wood with back boiler connected to central heating |
| Air conditioning: | air conditioning in owner's cabin |
| Bow thruster: | Cupa electric bow thruster 24 Volt 7 kW |
| Electricity system: | 24 / 230 Volt 230 Volt shore power connection professionally installed system Victron mainmaster control |
| Batteries: | 4x 235 Ah domestic batterie(s) 2x 235 Ah bow thruster batterie(s) 1x 60 Ah starter batterie(s) generator 2x 225 Ah starter batterie(s) Victron BMV-6005 battery monitor |
| Battery charger: | Victron Skylla-i battery charger 24/80 CTEK battery charger |
| Earth-leakage breaker: | present |
| Genny: | Mastervolt Whisper 8 Ultra whisper set diesel 1500 RPM 8 kW 130 running hours (approx.) |
| Inverter: | Victron Phoenix inverter 24/5000 |
| Solar panels: | 2x solar panel Victron BlueSolar MPPT charge controller |
| Fresh water tank (approx.): | 3000 litre 1 steel tank(s) coated |
| Water pressure system: | hydrophore pump |
| Hot water system: | boiler/water calorifier (230 Volt) |
| Holding tank (approx.): | 50 litre 1 plastic tank(s) |
| Engineroom: | well maintained |
| Bilge pump: | submersible pump |
| Deck wash pump: | present 230 Volt |
| Gas system: | no gas on board |
| Additional information: | LED lightning |
Accommodation
| Interior: | okume interior Plywood very well maintained see photographs |
| Insulation: | Rockwool with aluminium foil |
| Cabins: | 1 cabin |
| Berth: | owners cabin: 1x 2-pers Sofa bed: 1x 2-pers |
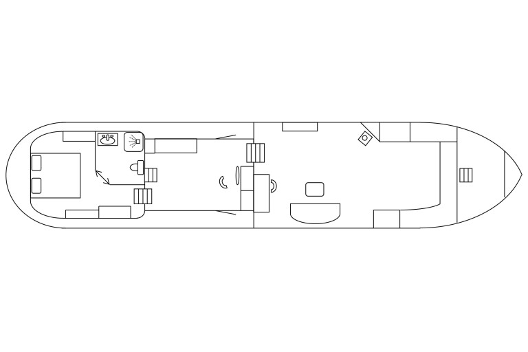
| Lay-out plan (not to scale): | see attachment |
| Bathroom: | shower thermostat tap washbasin with mixer tap and hot & cold running water in 1 area together with the toilet partly tiled |
| Toilet / Heads: | electric toilet |
| Galley: | L-shape galley |
| Cooker: | 4-burner hob induction cooker cookerhood stainless steel |
| Oven: | electric oven |
| Fridge / Refrigerator: | present 230 Volt |
| Freezer: | present 230 Volt |
| Washbasin: | stainless steel sink |
| Water tap: | mixer tap with hot & cold running water |
| Entertainment: | flatscreen TV stereoset |
| Headroom (approx.): | wheelhouse (approx.) 2,10 m salon (approx.) 2,13 m galley (approx.) 1,96 m bathroom / toilet (approx.) 1,86 m ownerscabin (approx.) 1,88 m |
| Additional information: | washing machine / dryer |
Navigation equipment
| Navigation equipment: | Sailor RT144 VHF compass GPS log / speed Automatic Identification System (AIS) laptop & PCNavigo chartplotter Plastimo SX400 portable VHF 2x window wiper Heftronic HT1120 intercom navigation lights horn |
Rigging and sails
| Mast: | lantern mast wood |
| Lowerable: | yes winch |
Equipment
| Anchor equipment: | d'hone anchor manual anchor winch anchor chain in hawse-hole |
| Awnings: | winter cover around the wheelhouse |
| Bimini: | sun awning |
| Boarding ladder: | present |
| Searail / Pulpit: | searail on bulwark |
| Dinghy: | present electric engine |
| Safety: | fire extinguishers life buoys 2 inflatable life jackets |
| Additional information: | aluminium gangway deck lights Survey report of the underwatership is available (06-2022) steering chair sundeck |




