Skip to main content

Dutch Barge / Katwijker 25.38 with TRIWV Sold

Dimensions (m): 25.38 x 4.22 x 1.20
Ref. no.: 220905
Mooring: Near Antwerp Belgium
Construction year: 1911
Material: steel

Contact us

Vision Doeve Brokers

Former inland cargo vessel that has been completely refurbished into a self-supporting comfortable sailing Live Aboard Dutch Barge. During the conversion, it was important for the seller that the vessel can operate well in France. That is why the air draft is only approx. 3.30 m. The exterior is very well maintained and the interior is spacious and fresh, including a spacious modern kitchen makes her a ready to go Dutch Barge. She is for example equipped with a bow thruster, generator, Caterpillar main engine, central heating and a professional inland waterways autopilot. The kitchen is located in the wide-body part of the superstructure, so there is plenty of space to spend a lot of time there. With her spacious aft deck it is also pleasant to sit outside and enjoy the nature around.

More information

General information

Yard: Shipyard NL- Den Haag
Hull shape: flatbottom
Hull material: steel
Deck material: steel
Superstructure material: steel
plastic top side of the wheelhouse
Construction method: riveted
new steel is welded
rubbing strake around
bulwark
wide body superstructure
stainless steel bollards
2 watertight bulkhead(s)
kalffsdecks (raised decks)
Steering system: hydraulic
wheel
& electric steering
Windows: aluminium windows frames
single glass
double glazing in wheelhouse
Displacement (approx.): maximum allowable displacement 100,062 m³
displacement in empty condition 65,040 m³
displacement 35,040 m³
Airdraft (approx.): 3,30 m
Owner: Belgian owner
Registration: Belgian registered
Colour / Paint System: green hull
brown bulwark
white superstructure
very well maintained
see photographs
last underwatership treatment 09-2020
antifouling
Certificates: inland waterways certificated (TRIWV / ES-TRIN)
zone 2 Netherlands
zone 3
zone 4
valid until: 12-2025
Suitable for / as: suitable as a year round live- aboard
& recreational vessel
inland waterways
suitable for bigger waterways
General information: For sale because of the age of the seller.
Additional information: Underwatership is partly double plated.
The techniques used on board are commercial shipping quality.
Hull shape is suitable for drying out.
classic lines
spacious aftdeck
Great vessel for cruising on the European canals and rivers.
Great vessel for cruising on the French canals and rivers.

Technical information

Enginepower: 190 Hp
139 kW
Engine brand: Caterpillar
Revolutions: 1800 RPM
Engine model: D333C
Number of cylinders: 6
Overhaul engine: 2005 reconditioned installed
Running hours (approx.): 5020 after overhaul
Fuel: diesel
Fuel tank (approx.): 2x 750 litre white
1x 120 litre white
1x 200 litre white
steel tank(s)
BOBS overflowing fuel safety system
Cooling system: closed
keel cooling
Propulsion: 4 blade propeller
kort Propeller Nozzle
greased lubrication of propeller shaft
greasing device
Gearbox: Guascor hydraulic
reduction/ratio 2:1
Speed (approx.): 12 km/hour cruising speed at 1200 RPM
19 km/hour top speed
Heating: Silver central heating
on diesel
Air conditioning: in the wheelhouse present
Bow thruster: electric bow thruster
9 Hp
24 Volt
Electricity system: 12 / 24 / 230 / 400 Volt
400 Volt shore power connection
& 230 Volt shore power connection
Batteries: 560 Ah traction batterie bank
2x 230 Ah starter batterie(s)
1x 105 Ah starter batterie(s) bow thruster
Battery charger: Victron Skylla battery charger 24/75
Victron Centaur battery charger 24/30
Earth-leakage breaker: present
Genny: Lister Petter diesel
13 kVA
230/400 Volt
1500 RPM
sound proof box
Inverter: Mastervolt inverter 24/1600
Victron Phoenix Compac inverter 24/2000
Fresh water tank (approx.): 1x 1200 litre
plastic tank(s)
Water pressure system: hydrophore pump
Hot water system: 2x boiler/water calorifier (230 Volt)
Bilge pump: 2x electric pump
230 Volt
also deckwash pump
Gas system: yes, bottle(s) in bottle box on deck
Gas certificate
Additional information: LED lightning

Accommodation

Interior: various materials have been used
painted white
laminate floor(s)
see photographs
Insulation: glass wool with aluminium foil
& hard foam plates
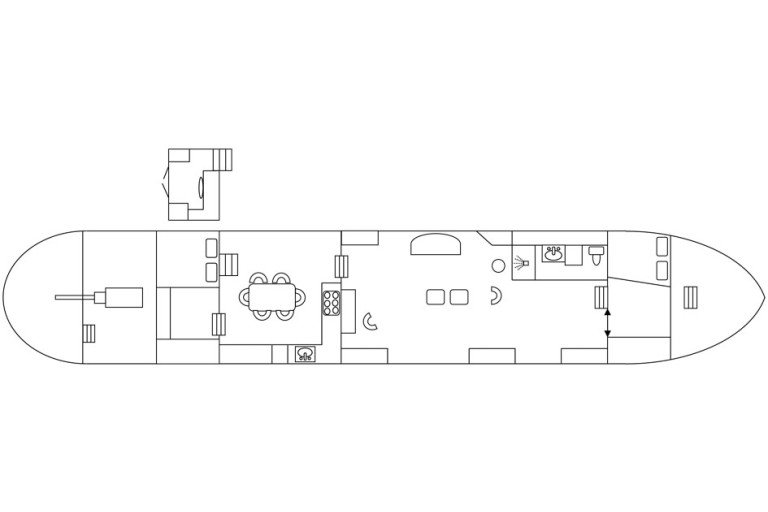
Cabins: 2 cabins
Berth: Forward: 1x 2-pers
Aft: 1x 2-pers
Lay-out plan (not to scale): see attachment
Bathroom: shower cubicle
mixer tap with hot & cold running water
washbasin with mixer tap and hot & cold running water
in 1 area together with the toilet
Toilet / Heads: flush toilet
Galley: L-shape galley
Cooker: 6-burner hob
on gas
stainless steel
in combination with the oven
Oven: gas oven
Microwave: microwave
Fridge / Refrigerator: Liebherr fridge / refrigerator
230 Volt
Freezer: Liebherr freezer
Worktop: plastic worktop
Washbasin: stainless steel sink
Water tap: mixer tap with hot & cold running water
Dishwasher: AEG dishwasher
Entertainment: 2x flatscreen TV
radio/CD player
Trac Vision selfsearching satellite antenna
Headroom (approx.): wheelhouse (approx.) 1,80 m
galley (approx.) 1,93 / 1,98 m
ownerscabin (approx.) 1,87 m
salon (approx.) 1,97 / 1,85 m
bathroom / toilet (approx.) 1,95 m
foc's hole (approx.) 1,26 m
Additional information: The vessel will be delivered as without the private goods like furniture, clothing, artwork and tools.
useful as live-aboard
Miele washing machine / dryer

Navigation equipment

Navigation equipment: 2x Sailor RT2048 VHF
Radio Zeeland Euro 500/600 river autopilot (follow-up steering )
Radio Zeeland Euro 500 rate-of-turn indicator
Radio Zeeland Euro 500 rudder indicator
Radio Zeeland Euro 500/600 follow up steering
Radio Holland Dogger depth / echosounder
Automatic Identification System (AIS)
PC Navigo chartplotter
Manacor PA-300 intercom
search light
horn
navigation lights
flashing light

Rigging and sails

Mast: lantern mast
steel
apparatus wing
stainless steel
Lowerable: yes

Equipment

Anchor equipment: manual anchor winch
Klipp anchor
anchor cable
in hawse-hole
Aft:
manual anchor winch
Pool anchor
anchor chain
in hawse-hole
Boarding ladder: present
stainless steel
Searail / Pulpit: guardrail around
Davits: present
stainless steel
Safety: fire extinguishers
life buoys
life jackets
according to the certification requirements
gasdetector
bilge alarm
Additional information: 3x aluminium gangway
sundeck
deck lights
Survey report of the underwatership is available (09-2020)

Contact

© 2024 - Doeve Brokers

logo european maritimelogo nbms     logo hiswalogo vrt