Luxe Motor 19.95 Sold
            Dimensions (m):
            19.95 x 4.95 x 1.00
        
        
            Ref. no.:
            230205
        
        
            Mooring:
            
                    Near Emmen, Netherlands                
        
        
            Construction year:
            2012
        
        
            Material:
            steel
        
                    Vision Doeve Brokers
Newly built Luxe Motor of which the hull was built by Shipyard Talsma and the finishing was then carried out by professionals. She is a solid ship that has proven herself over the years to be reliable and comfortable. The sailing area is very large and extends from the Mediterranean Sea and Canal du Midi in France to the Baltic Sea. But also to the east to the mouth of the Danube is possible. There are 2 cabins with spacious beds, a spacious kitchen and ample seating in the salon. The wheelhouse completes the picture with a corner seat and the fantastic view all-around. In our opinion a great Dutch Barge to travel around with and which is also very suitable for a new owner to live on.
More information
General information
| Yard: | Shipyard Talsma, NL-Osingahuizen & ESB Group, NL-Elburg  | 
            
| Designer / Architect: | Gaastmeer Design, NL-Gaastmeer | 
| Hull shape: | flatbottom round bilges  | 
            
| Hull material: | steel 6 mm | 
| Deck material: | steel | 
| Superstructure material: | steel hardwooden top side of the wheelhouse  | 
            
| Construction method: | welded bulwark around rubbing strake around 3 watertight bulkhead(s) Sturdy, heavily constructed  | 
            
| Steering system: | hydraulic wheel  | 
            
| Windows: | hardwood window frames double glazing hardwood outside doors  | 
            
| Displacement (approx.): | 45 metric tons | 
| Ballast (approx.): | lead & steel  | 
            
| Airdraft (approx.): | 3,50 m 2,20 m with dismantled wheelhouse  | 
            
| Owner: | Swiss owner | 
| Registration: | Dutch registered B-registered Costs for the change of ownership and / eventually deletion are for purchasers amount.  | 
            
| Colour / Paint System: | black hull black bulwark red striping white superstructure varnished wood very well maintained see photographs  | 
            
| Certificates: | no certificate requirement | 
| RCD / CE Certification: | C | 
| Suitable for / as: | suitable as a year round live- aboard & recreational vessel inland waterways & coastal waters  | 
            
| General information: | from first owner For sale because of the age of the seller.  | 
            
| Additional information: | various rust sensitive places are made from stainless steel classic motor yacht classic lines Given construction year is the year that the ship was ready and she was launched. Hull shape is suitable for drying out. forepeak with chain locker spacious aftdeck straight hull Great vessel for cruising on the coastal waters. Great vessel for cruising on the European canals and rivers. Great vessel for cruising on the French canals and rivers.  | 
            
Technical information
| Enginepower: | 129 Hp 95 kW  | 
            
| Engine brand: | Deutz | 
| Revolutions: | 2200 RPM | 
| Engine model: | 1013M | 
| Number of cylinders: | 4 | 
| Construction year engine: | 2012 into operation | 
| Running hours (approx.): | 1750 on the hour counter | 
| Fuel: | diesel | 
| Fuel tank (approx.): | 2x 750 litre steel tank(s)  | 
            
| Cooling system: | intercooling wet exhaust  | 
            
| Propulsion: | 4 blade propeller greased lubrication of propeller shaft  | 
            
| Gearbox: | Dong-I hydraulic | 
| Speed (approx.): | 12 km/hour cruising speed at 1500 RPM | 
| Heating: | Kabola HR 500 central heating combi boiler on diesel  | 
            
| Engine instruments: | present | 
| Bow thruster: | Duco electric bow thruster 24 Volt 20 Hp  | 
            
| Stern thruster: | Duco electric stern thruster 24 Volt 10 Hp proportional  | 
            
| Electricity system: | 24 / 230 Volt 230 Volt shore power connection professionally installed system with automatic changeover Victron VE.Bus Multicontrol  | 
            
| Batteries: | 2x 135 Ah starter batterie(s) 4x 200 Ah domestic batterie(s) 4x 230 Ah bow thruster batterie(s) 1x 90 Ah starter batterie(s) generator Victon BMV700 battery monitor  | 
            
| Battery charger: | Victron Quattro combi inverter/charger 24/3000/70 CTEK battery charger 12/3,8 CTEK battery charger 24/4  | 
            
| Battery isolator: | battery isolator | 
| Isolation transformer: | Victron Galvanic Isolator VDI-16 | 
| Earth-leakage breaker: | present | 
| Genny: | Kohler 9EFOZD whisper set 9 kVA 1500 RPM 230 Volt wet exhaust with water separator 225 running hours (approx.)  | 
            
| Inverter: | Victron Quattro combi inverter/charger 24/3000/70 | 
| Fresh water tank (approx.): | 2x 2100 litre plastic tank(s)  | 
            
| Water pressure system: | 1x hydrophore pump 1x seawater hydrophore pump  | 
            
| Fresh water filter system: | filter | 
| Hot water system: | through the central heating | 
| Holding tank (approx.): | 2x 1300 litre gray water tank(s) plastic tank(s) 1x 1750 litre black water tank(s) steel tank(s)  | 
            
| Diesel waterseparator: | present | 
| Engineroom: | clean engineroom very well maintained  | 
            
| Bilge pump: | 3x electric pump | 
| Deck wash pump: | electric pump 230 Volt  | 
            
| Gas system: | no gas on board | 
| Additional information: | LED lightning | 
Accommodation
| Interior: | Plywood mahogany finish oak floor(s) ceiling with laths (classic) professionally done very well maintained see photographs  | 
            
| Insulation: | Rockwool | 
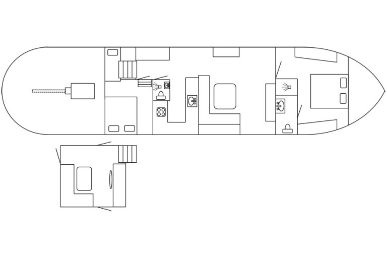
| Cabins: | 2 cabins | 
| Berth: | Forward: 1x 2-pers Guest cabin(s): 1x 2-pers Quarter berth: 2x 1-pers (1,80 x 0,70 m)  | 
            
| Lay-out plan (not to scale): | see attachment | 
| Bathroom: | Forward: En Suite shower thermostat tap washbasin with mixer tap and hot & cold running water partly tiled in 1 area together with the toilet Aft: shower thermostat tap washbasin with mixer tap and hot & cold running water in 1 area together with the toilet  | 
            
| Toilet / Heads: | 2x toilet | 
| Galley: | U-shape galley | 
| Cooker: | Siemens 4-burner hob ceramic cooker cookerhood stainless steel  | 
            
| Oven: | Siemens electric oven & grill  | 
            
| Fridge / Refrigerator: | Siemens fridge / refrigerator 230 Volt  | 
            
| Freezer: | Everglades freezer 230 Volt  | 
            
| Worktop: | formica worktop | 
| Washbasin: | stainless steel sink | 
| Water tap: | mixer tap with hot & cold running water | 
| Dishwasher: | Bosch dishwasher | 
| Entertainment: | selfsearching satellite antenna Samsung flatscreen TV  | 
            
| Headroom (approx.): | ownerscabin (approx.) 2,36 m bathroom / toilet in the front (approx.) 2,25 m salon (approx.) 2,08 m galley (approx.) 2,03 m bathroom / toilet aft (approx.) 2,00 m guest cabin (approx.) 2,19 m wheelhouse (approx.) 2,14 m  | 
            
| Additional information: | useful as live-aboard The vessel will be delivered as without the private goods like furniture, clothing, artwork and tools. Electrolux washing machine / dryer inventory  | 
            
Navigation equipment
| Navigation equipment: | Weatherdock EasyTRX2-IS Class B Automatic Identification System (AIS) rudder indicator AdvanSea FX-400 VHF with DSC Furuno radar op/on/auf/sur ipad 2x window wiper chartplotter op/on/auf/sur ipad horn navigation lights Sestrel compass  | 
            
Rigging and sails
| Mast: | lantern mast wood  | 
            
| Lowerable: | yes manual  | 
            
Equipment
| Anchor equipment: | manual anchor winch Pool anchor 50 m anchor chain in hawse-hole warping drum specified length(s) is/are approximate  | 
            
| Awnings: | winter cover around the wheelhouse | 
| Boarding ladder: | present aluminium  | 
            
| Searail / Pulpit: | guardrail around aftdeck | 
| Safety: | automatic fire extinguishing system in engine room fire extinguishers life jackets 2 life buoys fire blanket Homematic alarm system with burglary, bilge, fire and heating monitor function  | 
            
| Additional information: | 2x hard wooden skylight covers over skylights 2 foldable Bike(s) sundeck  | 
            

                                            
                                            
                                            
                                            
                                                                        
                                                                        
                                                                        
                                                                        
                                                                        
                                                                        
                                                                        
                                                                        
                                                                        
                                                                        
                                                                        
                                                                        
                                                                        
                                                                        
                                                                        
                                                                        
                                                                        
                                                                        
                                                                        
                                                                        
                                                                        
                                                                        
                                                                        
                                                                        
                                                                        
                                                                        
                                                                        
                                                                        
                                                                        
                                                                        
                                                                        
                                                                        
                                                                        
                                                                        
                                                                        
                                                                        
                                                                        
                                                                        
                                                                        
                                                                        
                                                                        
                                                                        
                                                                        
                                                                        
                                                                        
                                                                        
                                                                        
                                                                        
                                                                        
                                                                        
                                                                        
                                                                        
                                                                        
                                                                        
                                                                        
                                                                        
                                                                        
                                                                        
        


