Luxe Motor 19.48 Sold
Vision Doeve Brokers
Former inland waterway cargo Dutch Barge that has been completely refurbished into a very well maintained cruising Live Aboard Dutch Barge. The seller cleared out the entire vessel between 2007 and 2017, fitted it with a new superstructure and wheelhouse (the old aft cabin and engine room cover has been retained), largely fitted it with a new interior and equipped it with new professional techniques. The aft cabin still needs to be finished. Preparations have also been made to install 2 spud poles. There is more than sufficient headroom in the superstructure and a well-thought-out layout has been achieved with a spacious kitchen, seating area (convertible into a 2-persons bed), bathroom, and owner's cabin. The engine is a beautiful Kromhout glow head. In our opinion, highly recommended for anyone who does not want a ship with overdue maintenance.
More information
General information
| Yard: | Shipyard NL-Overschie |
| Rebuilt year: | 2007 - 2017 |
| Hull shape: | flatbottom |
| Hull material: | steel |
| Deck material: | steel |
| Superstructure material: | steel teak top side of the wheelhouse |
| Construction method: | riveted new steel is welded rubbing strake around wide side decks (gunnels) bulwark deckhouse closed bollard cabinets |
| Steering system: | mechanical wheel |
| Windows: | aluminium windows frames teak wooden outside doors |
| Displacement (approx.): | 42 metric tons |
| Ballast (approx.): | poured concrete |
| Airdraft (approx.): | 2,75 m 1,60 m with dismantled wheelhouse |
| Owner: | Dutch owner |
| Colour / Paint System: | black hull grey bulwark white superstructure very well maintained last underwatership treatment 07-2020 |
| Certificates: | no certificate requirement |
| Suitable for / as: | inland shipping suitable as a year round live- aboard recreational vessel |
| Additional information: | classic lines beautiful sheer Hull shape is suitable for drying out. forepeak with chain locker Great vessel for cruising on the European canals and rivers. Great vessel for cruising on the French canals and rivers. |
Technical information
| Enginepower: | 22 Hp 16 kW |
| Engine brand: | Kromhout |
| Revolutions: | 440 RPM |
| Engine model: | M-01 air started |
| Number of cylinders: | 1 |
| Running hours (approx.): | unknown |
| Fuel: | diesel |
| Fuel tank (approx.): | 2x 225 litre steel tank(s) |
| Cooling system: | direct cooling system dry exhaust |
| Propulsion: | 3 blade propeller greased lubrication of propeller shaft propeller shaft (2017) shaft bearing (2017) |
| Gearbox: | mechanical reduction/ratio 1:1 |
| Speed (approx.): | 8 km/hour cruising speed at 375 RPM 10 km/hour top speed |
| Heating: | Kabola HR400 central heating combi boiler with back boiler connected to central heating |
| Bow thruster: | Cupa electric bow thruster 14 Hp 24 Volt |
| Electricity system: | 24 / 230 Volt 230 Volt shore power connection 2007 - 2017 new system |
| Batteries: | 750 Ah traction batterie bank (12x 2-Volt) 2x 225 Ah bow thruster batterie(s) |
| Battery charger: | Victron MultiPlus combi inverter/charger 24/3000/70 |
| Battery isolator: | Elja 702 D battery isolator |
| Isolation transformer: | Victron isolation transformer 3600 Watt |
| Earth-leakage breaker: | present |
| Inverter: | Victron MultiPlus combi inverter/charger 24/3000/70 |
| Solar panels: | 2x 190 Watt solar panel Victron Blue Solar charge controller MPPT 70/15 |
| Fresh water tank (approx.): | 900 litre waterbag |
| Water pressure system: | Speck hydrophore pump |
| Fresh water filter system: | Wyclomar fresh water filter system |
| Hot water system: | through the central heating |
| Holding tank (approx.): | 1x 150 litre grey water tank(s) 1x 150 litre black water tank(s) |
| Engineroom: | very well maintained clean engineroom see photographs |
| Bilge pump: | submersible pump |
| Deck wash pump: | present electric pump |
| Gas system: | yes, bottle(s) in bottle box on deck |
| Additional information: | Deutz auxiliary diesel engine (24 Volt) air compressor air bottle |
Accommodation
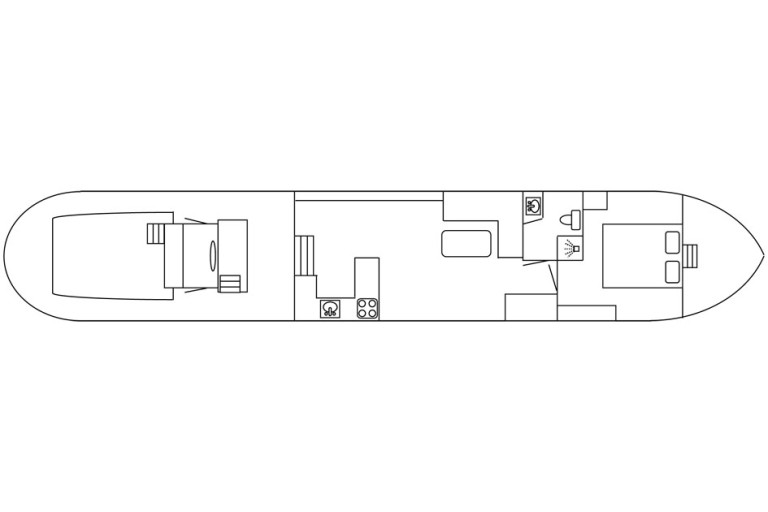
| Interior: | completely renovated not yet completely finished various materials have been used see photographs |
| Insulation: | glass wool with aluminium foil well insulated |
| Cabins: | 2 cabins |
| Berth: | Forward: 1x 2-pers Dinette: 1x 2-pers |
| Lay-out plan (not to scale): | see attachment |
| Bathroom: | shower cubicle thermostat tap washbasin with mixer tap and hot & cold running water tiled bathroom in 1 area together with the toilet |
| Toilet / Heads: | flush toilet |
| Galley: | U-shape galley |
| Cooker: | 4-burner hob on gas stainless steel |
| Microwave: | present |
| Fridge / Refrigerator: | present 230 Volt |
| Freezer: | small ice compartment |
| Worktop: | hardwooden worktop |
| Washbasin: | stainless steel sink |
| Water tap: | mixer tap with hot & cold running water |
| Entertainment: | flatscreen TV TV lift |
| Headroom (approx.): | ownerscabin (approx.) 1,69 / 1,92 m bathroom / toilet (approx.) 1,90 m salon (approx.) 1,90 m galley (approx.) 1,94 m wheelhouse (approx.) 1,96 m aftcabin (approx.) 1,40 m |
| Additional information: | The vessel will be delivered as without the private goods like furniture, clothing, artwork and tools. |
Navigation equipment
| Navigation equipment: | Sailor RT144 VHF navigation lights horn |
Rigging and sails
| Mast: | lantern mast pine |
| Lowerable: | yes manual |
Equipment
| Anchor equipment: | manual anchor winch Klipp anchor anchor chain in hawse-hole |
| Awnings: | winter cover around the wheelhouse |
| Boarding ladder: | present aluminium |
| Searail / Pulpit: | grab rail guardrail around aftdeck |
| Safety: | 2x fire extinguisher 2x life buoy |
| Additional information: | Interesting project to finish for someone with two right hands or to have it done by a yard. The ship was completely gutted (only the hull is old) and then rebuilt. Before refitting the interior, the inside of the hull was thoroughly treated. Survey report of the underwatership is available (07-2020) Taking over of the current leisure rental mooring can be discussed with the port owner. |




