Luxe Motor 21.09 with certificate reduced in price
Dimensions (m):
21.09 x 3.23 x 1.15
Ref. no.:
231005
Mooring:
Near Leeuwarden, the Netherlands
Construction year:
1914
Material:
steel
Price:
€ 64.500,--
VAT not applicable
Vision Doeve Brokers
Former inland cargo ship that has been converted into a recreational ship / cruising Live Aboard Dutch Barge with a spacious wheelhouse. The engine room is located in front of the wheelhouse. The engine room contains, among other things, the main engine, but also the powerful generator and an extensive Victron electrical installation. In front of the engine room is a spacious sun deck on which users are protected from the weather with a sun tent / bimini. The salon has a galley with bar, seating, 2x box beds and a bed. There is also a spud pole, hydraulic crane and an electric bow thruster on board. This Dutch Barge is well maintained and ES-TRIN certified until 03-2028.
More information
General information
| Yard: | Shipyard C.W. van Straaten en Van der Brink, NL-Den Haag |
| Hull shape: | flatbottom |
| Hull material: | steel |
| Deck material: | steel |
| Superstructure material: | steel hardwooden top side of the wheelhouse aluminium wheelhouse roof |
| Construction method: | riveted new steel is welded rubbing strake around wide side decks (gunnels) open cockpit 2 watertight bulkhead(s) |
| Steering system: | mechanical wheel |
| Windows: | aluminium windows frames |
| Displacement (approx.): | 40 metric tons |
| Ballast (approx.): | present 300 kg |
| Airdraft (approx.): | 2,80 m everything down |
| Owner: | Dutch owner |
| Registration: | Dutch registered B-registered Costs for the change of ownership and / eventually deletion are for purchasers amount. |
| Colour / Paint System: | black hull green bulwark white superstructure very well maintained last underwatership treatment 04-2025 |
| Certificates: | inland waterways certificated (TRIWV / ES-TRIN) zone 2 Netherlands zone 3 zone 4 Waal, Lek & NL Rhine valid until: 03-2028 |
| Suitable for / as: | inland waterways suitable for bigger waterways recreational vessel |
| Additional information: | classic lines Hull shape is suitable for drying out. forepeak with chain locker Great vessel for cruising on the European canals and rivers. Great vessel for cruising on the French canals and rivers. |
Technical information
| Enginepower: | 170 Hp 125 kW |
| Engine brand: | DAF |
| Revolutions: | 2000 RPM |
| Engine model: | DK1160 |
| Number of cylinders: | 6 |
| Construction year engine: | 1976 |
| Running hours (approx.): | 8500 on the hour counter after overhaul |
| Fuel: | diesel |
| Fuel tank (approx.): | 500 litre 2 steel tank(s) |
| Cooling system: | closed cooling pipes |
| Propulsion: | 4 blade propeller greased lubrication of propeller shaft |
| Gearbox: | Reintjes BGA-180 hydraulic reduction/ratio 4:1 |
| Speed (approx.): | 12 km/hour cruising speed at 1100 RPM 19 km/hour top speed |
| Heating: | stove on diesel |
| Bow thruster: | Max Power electric bow thruster 20 Hp 24 Volt |
| Electricity system: | 24 / 230 Volt 230 Volt shore power connection Victron Color Control |
| Batteries: | 2x 220 Ah bow thruster batterie(s) 2x 140 Ah starter batterie(s) 1x 74 Ah starter batterie(s) generator 4x 200 Ah domestic batterie(s) 3x Victron Battery Balancer Victron BMV-702 battery monitor |
| Battery charger: | Victron Blue Power battery charger 24/15 Victron Blue Power battery charger 24/12 Victron Blue Power battery charger 24/8 Victron MultiPlus combi inverter/charger 24/3000/70 |
| Battery isolator: | Victron Argofet battery isolator |
| Isolation transformer: | Victron isolation transformer 2000 Watt |
| Genny: | Lister Petter diesel genny 17,2 kVA 230 Volt 1500 RPM 3450 running hours (approx.) |
| Inverter: | Victron Orion inverter 24-12 Volt Victron MultiPlus combi inverter/charger 24/3000/70 |
| Solar panels: | 1 solar panel 360 Watt Victron Blue Solar MPPT charge controller |
| Fresh water tank (approx.): | 1200 litre 1 steel tank(s) cemented tank(s) |
| Hot water system: | Daalderop Close-in boiler/water calorifier (230 Volt) 15 litre |
| Bilge pump: | electric pump |
| Gas system: | yes, bottle(s) in bottle box on deck |
| Additional information: | LED lightning |
Accommodation
| Interior: | various materials have been used see photographs very well maintained |
| Insulation: | available |
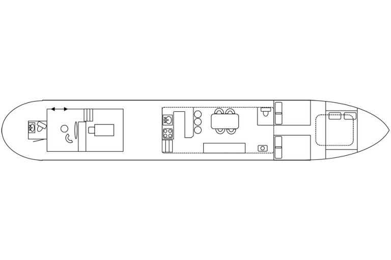
| Cabins: | 3 cabins |
| Berth: | Forward: 1x 2-pers Starboard cabin: 1x 2-pers Portside cabin: 1x 2-pers Salon: 1x 1-pers |
| Lay-out plan (not to scale): | see attachment |
| Toilet / Heads: | Forward: hand pumptoilet & Aft: day toilet flush toilet washbasin cold running water |
| Galley: | U-shape galley |
| Cooker: | 4-burner hob stainless steel on gas |
| Fridge / Refrigerator: | Exquist fridge / refrigerator 230 Volt |
| Freezer: | small ice compartment |
| Worktop: | stainless steel worktop & formica worktop |
| Washbasin: | stainless steel sink |
| Water tap: | mixer tap with hot & cold running water |
| Entertainment: | flatscreen TV |
| Headroom (approx.): | forward (approx.) 1,92 m corridor / walkthrough (approx.) 1,16 m toilet in the front (approx.) 1,84 m salon (approx.) 1,88 / 1,84 m galley (approx.) 1,88 m wheelhouse (approx.) 1,94 m toilet aft (approx.) 1,73 m |
Navigation equipment
| Navigation equipment: | Simrad EQ32 chartplotter / GPS 2x Navman 7100 VHF with DSC Em-Trak A200 Automatic Identification System (AIS) compass window wiper search light horn navigation lights rudder indicator |
Rigging and sails
| Mast: | steel & apparatus wing aluminium |
| Lowerable: | yes hydraulic |
Equipment
| Anchor equipment: | anchor with chain spudleg / pole (electric) 3,50 m under the bottom specified length(s) is/are approximate |
| Bimini: | bimini top above cockpit |
| Safety: | fire blanket fire extinguishers life buoys life jackets according to the certification requirements carbon monoxide detector(s) |
| Additional information: | hydraulic steel crane Survey report of the underwatership is available (03-2021) |




