Luxe Motor 24.60 with TRIWV Sold
Vision Doeve Brokers
Former inland cargo ship that has been converted into a Cruising Live Aboard Dutch Barge / Houseboat. Are you dreaming of the ultimate living on the water? This beautiful Dutch Barge offers everything you need for a comfortable and adventurous life. The spacious cabin with a fixed double bed gives you a good night's sleep. Relax in the large salon with your own furniture. The kitchen is spacious and has plenty of space for cozy meals and gatherings with family or friends. The stylish and neat bathroom with shower cabin offers comfort and convenience. The wheelhouse with sliding doors and benches is a perfect place for steering and enjoying the panoramic view. In the aft cabin there is extra sleeping space for guests or family members. With a reliable Yanmar bow thruster diesel engine and a whisper generator, this ship is fully equipped for careless traveling and permanent living on board. This well-maintained Dutch Barge is ready for your adventure and to explore the European inland waterways. The current owner recently purchased the ship because of the associated berth to moor his own ship there. The previous owners lived on board for a long time and made many trips.
More information
General information
| Yard: | Shipyard "De Nieuwe Maas" N.J. van der Windt, NL-Vlaardingen |
| Hull shape: | flatbottom |
| Hull material: | steel |
| Deck material: | steel |
| Superstructure material: | steel |
| Construction method: | riveted new steel is welded rubbing strake around bulwark around wide side decks (gunnels) deckhouse closed bollard cabinets 2 watertight bulkhead(s) |
| Steering system: | hydraulic wheel Orbitrol power steering |
| Windows: | wood window frames 1x aluminium windows frames & rubber window frames single glass & double glazing |
| Displacement (approx.): | maximum allowable displacement 83,276 m³ displacement in empty condition 62,065 m³ displacement 21,211 m³ 45 metric tons |
| Ballast (approx.): | 3 metric tons poured concrete |
| Airdraft (approx.): | 3,40 m |
| Owner: | Dutch owner |
| Registration: | Dutch registered B-registered Costs for the change of ownership and / eventually deletion are for purchasers amount. |
| Colour / Paint System: | black hull red bulwark cream superstructure very well maintained see photographs last underwatership treatment 09-2021 |
| Certificates: | inland waterways certificated (TRIWV / ES-TRIN) zone 2 Netherlands zone 3 zone 4 Waal, Lek & NL Rhine valid until: 06-2029 |
| Suitable for / as: | inland waterways suitable as a year round live- aboard & recreational vessel |
| General information: | Old age clause applicable. The seller has actually never used the vessel himself. |
| Additional information: | forepeak Hull shape is suitable for drying out. Great vessel for cruising on the European canals and rivers. Great vessel for cruising on the French canals and rivers. |
Technical information
| Enginepower: | 165 Hp 121 kW |
| Engine brand: | DAF |
| Engine model: | DH825 |
| Number of cylinders: | 6 |
| Construction year engine: | 1980 |
| Overhaul engine: | 2000 |
| Running hours (approx.): | 2300 after overhaul |
| Fuel: | diesel |
| Fuel tank (approx.): | 2100 litre 4 steel tank(s) sludge trap(s) |
| Cooling system: | closed cooling pipes dry exhaust insulated exhaust |
| Propulsion: | 4 blade propeller greased lubrication of propeller shaft Python constant velocity prop shaft with thrust bearing |
| Gearbox: | PRM 750D3 hydraulic |
| Heating: | Intergas hre central heating on gas |
| Bow thruster: | bow thruster with dieselengine (Yanmar) 26 Hp proportional |
| Electricity system: | 12 / 230 / 400 Volt 400 Volt shore power connection |
| Batteries: | 2x 110 Ah starter batterie(s) 4x 110 Ah domestic batterie(s) 1x 100 Ah starter batterie(s) bow thruster / generator |
| Battery charger: | Victron Phoenix battery charger 12/50 Victron Phoenix management system |
| Earth-leakage breaker: | present |
| Genny: | BW whisper set 13,5 kVA 230/400 Volt 1500 RPM 1450 running hours (approx.) |
| Inverter: | Victron Phoenix Compact inverter 12/1600 Victron Phoenix Control |
| Fresh water tank (approx.): | 4000 litre 2 steel tank(s) coated |
| Water pressure system: | Speck hydrophore pump |
| Hot water system: | boiler/water calorifier (230 Volt) 45 litre |
| Holding tank (approx.): | present suitable for pumping sewage to the shore 400 Volt 1 stainless steel tank(s) |
| Bilge pump: | present submersible pump 230 Volt |
| Deck wash pump: | electric pump 400 Volt |
| Gas system: | via shore connection |
| Additional information: | partly LED lightning |
Accommodation
| Interior: | pine & Plywood pine ceiling with laths (classic) see photographs |
| Insulation: | Rockwool glass wool polystyrene |
| Cabins: | 2 cabins |
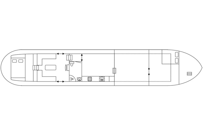
| Berth: | Forward: 1x 2-pers Aft: 1x 2-pers |
| Lay-out plan (not to scale): | see attachment |
| Bathroom: | tiled bathroom shower cubicle thermostat tap washbasin with mixer tap and hot & cold running water in 1 area together with the toilet |
| Toilet / Heads: | flush toilet |
| Galley: | along ships |
| Cooker: | 4-burner hob ceramic cooker cookerhood stainless steel |
| Fridge / Refrigerator: | Liebherr fridge / refrigerator 230 Volt combination with freezer |
| Freezer: | freezer |
| Washbasin: | stainless steel sink vegetable sink |
| Water tap: | mixer tap with hot & cold running water |
| Headroom (approx.): | wheelhouse (approx.) 1,94 m corridor / walkthrough (approx.) 1,90 m bathroom / toilet (approx.) 2,00 m galley (approx.) 1,92 m salon (approx.) 2,10 m cabin (approx) 2,05/2,15 m aftcabin (approx.) 1,86 m |
| Additional information: | hatch for moving |
Navigation equipment
| Navigation equipment: | Sailor RT144C VHF L3 Automatic Identification System (AIS) rudder indicator navigation lights horn Alecto intercom blue board with oscillating light window wiper |
Rigging and sails
| Mast: | lantern mast steel |
| Lowerable: | yes manual |
Equipment
| Anchor equipment: | manual anchor winch Spek anchor anchor cable in hawse-hole Aft: manual anchor winch grapnel anchor anchor cable in hawse-hole |
| Safety: | fire extinguishers life buoys life jackets according to the certification requirements safe |




