Live Aboard Barge 19.40 Sold
Vision Doeve Brokers
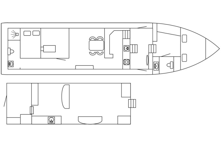
This former inland water food supply vessel (Parlevinker) has been transformed into a Cruising Live Aboard barge that is not only suitable for residential purposes, but also for recreational boating. The barge has a spacious upper deck that is equipped with double glazing in plastic window frames, providing sufficient light and comfort. At the front of the ship there is a cabin with a double bed and a separate toilet room. The ship's wheelhouse has two side doors and a staircase leading to the upper deck and a second staircase leading to the salon with an open kitchen. Further to the aft you will find the engine room, as well as a cabin with a double bed and a bathroom. This ship is, although simple in design, extremely functional and offers everything you need for living and sailing. She is immediately available for takeover, so you can quickly enjoy the unique life on the water.
More information
General information
| Yard: | unknown |
| Hull shape: | round bilged |
| Hull material: | steel |
| Deck material: | steel |
| Superstructure material: | steel & plastic |
| Construction method: | riveted new steel is welded bulwark rubbing strake around transom stern |
| Steering system: | mechanical wheel |
| Windows: | aluminium windows frames single glass & plastic window frames double glazing hardwood outside doors |
| Displacement (approx.): | 30 metric tons estimated |
| Ballast (approx.): | trim ballast |
| Airdraft (approx.): | 4,20 m everything down |
| Owner: | Dutch owner |
| Colour / Paint System: | blue hull blue bulwark white superstructure some overdue maintenance see photographs |
| Certificates: | no certificate requirement |
| Suitable for / as: | recreational vessel suitable as a year round live- aboard inland waterways |
| General information: | offered in the condition that she is in (As is Where is) Old age clause applicable. |
Technical information
| Enginepower: | 175 Hp 128 kW |
| Engine brand: | DAF |
| Revolutions: | 1800 RPM |
| Engine model: | 1160 |
| Number of cylinders: | 6 |
| Construction year engine: | unknown |
| Running hours (approx.): | unknown |
| Fuel: | diesel |
| Fuel tank (approx.): | 600 litre 2 steel tank(s) |
| Cooling system: | intercooling wet exhaust |
| Propulsion: | 3 blade propeller greased lubrication of propeller shaft |
| Speed (approx.): | 15 km/hour cruising speed at 1300 RPM 25 km/hour top speed |
| Heating: | central heating on diesel & 2x hot air heating on diesel |
| Air conditioning: | present |
| Electricity system: | 12 / 24 / 230 Volt 230 Volt shore power connection simple electric system |
| Batteries: | 2x 225 Ah starter batterie(s) 2x 240 Ah domestic batterie(s) 1x 72 Ah starter batterie(s) generator |
| Battery charger: | Noco Genius G15000 battery charger 24/15 Noco Genius G26000 battery charger 24/26 CTEK battery charger 12/5 |
| Genny: | diesel genny 11 kVA 5925 running hours (approx.) |
| Solar panels: | 4x solar panel |
| Fresh water tank (approx.): | 2000 litre 1 stainless steel tank(s) |
| Water pressure system: | hydrophore pump |
| Hot water system: | boiler/water calorifier (230 Volt) |
| Bilge pump: | 2x electric pump |
| Gas system: | no gas on board |
Accommodation
| Interior: | various materials have been used oak & Plywood see photographs |
| Insulation: | available |
| Cabins: | 2 cabins |
| Berth: | Forward: 1x 2-pers Aft: 1x 2-pers |
| Lay-out plan (not to scale): | see attachment |
| Bathroom: | shower mixer tap with hot & cold running water washbasin with mix tap and hot & cold running water tiled bathroom in 1 area together with the toilet Forward: washbasin with mix tap and hot & cold running water in 1 area together with the toilet |
| Toilet / Heads: | Forward: electric toilet Aft: electric toilet |
| Galley: | sideways |
| Cooker: | 4-burner hob induction cooker |
| Fridge / Refrigerator: | present 230 Volt beer fridge |
| Worktop: | hardwooden worktop |
| Washbasin: | stainless steel sink |
| Water tap: | mixer tap with hot & cold running water |
| Dishwasher: | present |
| Entertainment: | flatscreen TV |
| Headroom (approx.): | Forward: 1,80 m bathroom / toilet in the front (approx.) 1,78 m wheelhouse (approx.) 1,89 m galley (approx.) 1,89 m salon (approx.) 1,86 m corridor / walkthrough (approx.) 1,77 m bathroom / toilet aft (approx.) 1,77 m above (approx.) 2,24 /1,74 m |
| Additional information: | washing machine / dryer beer tap |
Navigation equipment
| Navigation equipment: | Radio Zeeland Euro 100 rudder indicator Shipmate 8300 VHF 2x window wiper barometer horn navigation lights |
Equipment
| Anchor equipment: | manual anchor winch anchor with chain in hawse-hole |
| Boarding ladder: | present stainless steel |
| Searail / Pulpit: | stainless steel searail |
| Safety: | fire extinguisher safe |




