Dutch Barge Skutsje 13.78 Sold
Vision Doeve Brokers
Former inland cargo ship that, after many wanderings, has been rebuilt into a Dutch Barge / cruising Live Aboard, where having headroom has been of paramount importance. The current owners have invested a lot in upgrading this Dutch Barge since 2019, including a good electrical installation with solar panels. Unfortunately, the woodwork around the windows has been damaged by some old leakages, but the leaks have been resolved and in our opinion the woodwork is easy to paint or replace. The aft deck can be completely closed off with a tent, making it comfortable to cruise even in bad weather conditions. Start exploring the French waterways right away and discover the many other possibilities of the European waterways.
More information
General information
| Yard: | Shipyard NL-Hoogkerk |
| Hull shape: | flatbottom |
| Hull material: | iron/steel |
| Deck material: | iron/steel |
| Superstructure material: | steel hardwooden top side of the wheelhouse |
| Construction method: | riveted new steel is welded rubbing strake around bulwark |
| Steering system: | mechanical wheel attached rudder steel rudder |
| Windows: | hardwood window frames |
| Displacement (approx.): | estimated 15 ton |
| Ballast (approx.): | poured concrete |
| Airdraft (approx.): | 2,60 m with dismantled wheelhouse 1,90 m |
| Owner: | American owner |
| Colour / Paint System: | black hull green bulwark white superstructure very well maintained see photographs last underwatership treatment 02-2022 |
| Certificates: | no certificate requirement |
| Suitable for / as: | recreational vessel suitable as a year round live- aboard inland waterways |
| General information: | Old age clause applicable. |
| Additional information: | classic motor yacht Specified length is between bow and stern. Hull shape is suitable for drying out. Great vessel for cruising on the European canals and rivers. Great vessel for cruising on the French canals and rivers. |
Technical information
| Enginepower: | 75 Hp 55 kW |
| Engine brand: | Mercedes |
| Revolutions: | 2100 RPM |
| Number of cylinders: | 4 |
| Running hours (approx.): | 4300 on the hour counter |
| Fuel: | diesel consumption of the engine at cruising speed (as declared) 2,2 ltr/hrs |
| Fuel tank (approx.): | 1x 200 litre 1x 100 litre steel tank(s) |
| Cooling system: | closed cooling pipes |
| Propulsion: | 3 blade propeller greased lubrication of propeller shaft propeller shaft (2019) gland (2019) |
| Gearbox: | Velvet AS-15-71 hydraulic reduction/ratio 2,91:1 |
| Speed (approx.): | 9 km/hour cruising speed at 1600 RPM |
| Heating: | Eberspächer Airtronic hot air heating on diesel |
| Air conditioning: | 1x portable air conditioning |
| Bow thruster: | electric bow thruster 24 Volt |
| Electricity system: | 12 / 230 Volt 230 Volt shore power connection Victron Multi Control |
| Batteries: | 180 Ah starter batterie(s) 2x 220 Ah domestic batterie(s) 2x bow thruster batterie(s) Victron BMV-700 battery monitor |
| Battery charger: | Victron EasyPlus Compact combi inverter/charger 12/1600/70 |
| Battery isolator: | Victron battery isolator |
| Isolation transformer: | Sterling ProSave E Galvanic Isolator 30 Amp |
| Earth-leakage breaker: | present |
| Inverter: | Victron EasyPlus Compact combi inverter/charger 12/1600/70 |
| Solar panels: | 2x solar panel Victron MPPT charge controller 100/50 |
| Fresh water tank (approx.): | 1x 550 litre steel tank(s) coated |
| Water pressure system: | electric water pump |
| Hot water system: | geyser (gas heater) |
| Diesel waterseparator: | present |
| Bilge pump: | 2x electric pump |
| Gas system: | present |
| Additional information: | LED lightning |
Accommodation
| Interior: | teak interior see photographs |
| Insulation: | partly |
| Cabins: | 1 cabin |
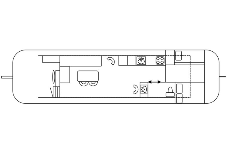
| Berth: | Forward: 2x 1-pers & 1x 1½ pers Dinette: 1x 2-pers |
| Lay-out plan (not to scale): | see attachment |
| Bathroom: | washbasin with mixer tap and hot & cold running water hand shower in 1 area together with the toilet |
| Toilet / Heads: | above water toilet |
| Galley: | along ships |
| Cooker: | 4-burner hob on gas stainless steel |
| Oven: | electric oven |
| Fridge / Refrigerator: | Liebherr fridge / refrigerator 230 Volt combination with freezer |
| Freezer: | freezer |
| Worktop: | stainless steel worktop |
| Washbasin: | stainless steel sink |
| Water tap: | hot & cold running water |
| Entertainment: | flatscreen TV |
| Headroom (approx.): | salon (approx.) 1,87 m wheelhouse (approx.) 1,90 m galley (approx.) 1,93 m bathroom / toilet (approx.) 1,84 m cabin (approx) 1,99 m |
| Additional information: | inventory cookware |
Navigation equipment
| Navigation equipment: | Raymarine Ray101E portable VHF 2x window wiper horn navigation lights clock barometer |
Equipment
| Anchor equipment: | manual anchor winch kedge anchor anchor chain |
| Bimini: | sun awning with removable side panels / doors |
| Boarding ladder: | present |
| Searail / Pulpit: | guardrail around aftdeck |
| Safety: | life buoys fire extinguishers fire blanket life jacket gasdetector |
| Additional information: | Survey report of the underwatership is available (05-2019) ladder sundeck |




