Dutch Barge 19.70 Sold
Dimensions (m):
19.70 x 4.10 x 1.00
Ref. no.:
240709
Mooring:
Near Besançon, France
Construction year:
1916
Material:
steel
Vision Doeve Brokers
Former inland cargo ship that was purchased by the current owners in 1999 and subsequently prepared to live on board and make long journeys with her. There is, among other things, a spacious bedroom, shower cabin, toilet room, U-shaped kitchen, spacious salon and a wheelhouse with the engine room underneath. Unfortunately, due to circumstances, this Dutch Barge has not been maintained the last few years and it shows. The asking price is based on a sale as it stands now, with all visible and invisible shortcomings.
More information
General information
| Yard: | Shipyard Willem Mulder, NL-Stadskanaal |
| Hull shape: | flatbottom |
| Hull material: | iron/steel |
| Deck material: | iron/steel |
| Superstructure material: | steel |
| Construction method: | riveted new steel is welded rubbing strake around bollards |
| Self made: | interior |
| Steering system: | mechanical wheel attached rudder steel rudder |
| Windows: | aluminium windows frames |
| Displacement (approx.): | 35 metric tons estimated |
| Ballast (approx.): | present trim ballast |
| Airdraft (approx.): | 3,00 m everything down |
| Owner: | Dutch owner |
| Registration: | Dutch registered B-registered Costs for the change of ownership and / eventually deletion are for purchasers amount. |
| Colour / Paint System: | bordeaux red hull white superstructure overdue maintenance see photographs |
| Certificates: | no certificate requirement |
| Suitable for / as: | recreational vessel suitable as a year round live- aboard inland waterways |
| General information: | Any transactions must be submitted to the client or owner of the vessel for approval. Until this approval has been granted, all offers made are entirely without obligation. For sale due to health issues. Old age clause applicable. offered in the condition that she is in |
| Additional information: | Specified length is between bow and stern. Hull shape is suitable for drying out. Underwatership is almost fully double plated. (ca. / approx / zirka / environ 80%) Great vessel for cruising on the European canals and rivers. Great vessel for cruising on the French canals and rivers. |
Technical information
| Enginepower: | 150 Hp 110 kW |
| Engine brand: | Chrysler |
| Number of cylinders: | V-6 |
| Running hours (approx.): | 11500 on the hour counter |
| Fuel: | diesel |
| Fuel tank (approx.): | 1x 300 litre 1x 750 litre steel tank(s) |
| Cooling system: | intercooling wet exhaust |
| Propulsion: | 3 blade propeller greased lubrication of propeller shaft |
| Gearbox: | Velvet hydraulic |
| Heating: | stove on diesel |
| Bow thruster: | Kalkman electric bow thruster 400 Volt 360 degrees turnable |
| Electricity system: | 24 / 230 Volt 230 Volt shore power connection simple electric system |
| Batteries: | 94 Ah starter batterie(s) generator 4x domestic batterie(s) 2x starter batterie(s) |
| Battery charger: | Westech WT Combi - S combi inverter/charger |
| Isolation transformer: | Mastervolt Mass GI 3.5 isolation transformer |
| Earth-leakage breaker: | present |
| Genny: | 17,8 kVA 1500 RPM 230 / 400 Volt 1900 running hours (approx.) Mitsubishi diesel |
| Inverter: | Westech WT Combi - S combi inverter/charger |
| Solar panels: | 4x solar panel Victron BlueSolar MPPT charge controller 100/50 |
| Fresh water tank (approx.): | 1000 litre 1 steel tank(s) coated |
| Water pressure system: | electric water pump |
| Engineroom: | some overdue maintenance see photographs |
| Gas system: | no gas on board |
| Additional information: | The mentioned technique on board is “As is, Where is”. |
Accommodation
| Interior: | various materials have been used see photographs simple interior overdue maintenance |
| Insulation: | polystyrene |
| Cabins: | 1 cabin |
| Berth: | cabin: 1x 2-pers Sofa bed: 1x 2-pers |
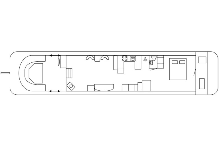
| Lay-out plan (not to scale): | see attachment |
| Bathroom: | shower cubicle massage shower mixer tap with hot & cold running water |
| Toilet / Heads: | toilet washbasin cold running water partly tiled toilet |
| Galley: | U-shape galley |
| Cooker: | 4-burner hob ceramic cooker |
| Oven: | electric oven |
| Fridge / Refrigerator: | present 230 Volt combination with freezer |
| Freezer: | present 230 Volt |
| Worktop: | hardstone worktop |
| Washbasin: | stainless steel sink |
| Water tap: | hot & cold running water |
| Dishwasher: | present |
| Entertainment: | flatscreen TV satellite antenna |
| Headroom (approx.): | wheelhouse (approx.) 1,86 m salon (approx.) 1,94 m galley (approx.) 1,81 m toilet (approx.) 1,85 m cabin (approx) 1,85 m |
| Additional information: | washing machine tumble dryer |
Navigation equipment
| Navigation equipment: | Navman 7100 VHF horn 2x window wiper |
Rigging and sails
| Mast: | wooden mast |
| Lowerable: | yes manual |
Equipment
| Anchor equipment: | manual anchor winch anchor |
| Safety: | fire extinguishers life buoys safe |
| Additional information: | steering chair aluminium gangway |




