Dutch Barge Hasselteraak 21.25 with Rhine certificate Sold
Vision Doeve Brokers
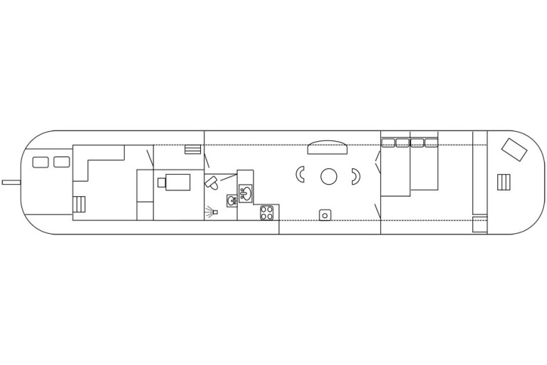
Former sailing inland waterway cargo ship of which the history is largely known. Around 1947 she was converted into a motor ship with support sail and around 1976 she underwent a transition again but then into a sailing charter ship with a larger aft cabin. Since 1987 she has been used as a recreational vessel / sailing Live Aboard Dutch Barge. The current owners have made many long journeys on the European inland waterways, including the south of France but also to eastern Germany and Poland, and for that purpose they installed a new engine in 2009. This Hasselteraak is also equipped with a Rhine navigation certification, which makes it possible (with the correct boating license) to cruise to the Main and from there to the Danube. Equipped with a forecastle which is in use as a workshop, a fore cabin with a bunk bed, a box bed accessible from the salon, a spacious salon with open kitchen, a bathroom with shower and a spacious aft cabin with L-shaped bench and in the aft a 2-persons berth. The unique thing about this boat is that everything inside is on the same level. Recognized as Dutch Sailing Heritage.
More information
General information
| Yard: | Shipyard Fa. Gebr. Mittendorff, NL-Dedemsvaart |
| Hull shape: | flatbottom |
| Hull material: | iron/steel |
| Deck material: | iron/steel |
| Superstructure material: | iron/steel wooden hatches covers over hold |
| Construction method: | riveted new steel is welded bulwark around wide side decks (gunnels) deckhouse |
| Steering system: | mechanical wheel steel rudder attached rudder |
| Displacement (approx.): | maximum allowable displacement 53,995 m³ displacement in empty condition 35,665 m³ displacement 18,330 m³ |
| Ballast (approx.): | 8 metric tons bitumen & gravel |
| Airdraft (approx.): | 18,00 m lowered mast(s) 3,50 m everything down 2,70 m |
| Owner: | Dutch owner |
| Registration: | Dutch registered B-registered Costs for the change of ownership and / eventually deletion are for purchasers amount. |
| Colour / Paint System: | black hull blue bulwark blue superstructure last underwatership treatment 02-2019 |
| Certificates: | Rhine certificated (ROSR) Is equal to: EU zone 3 & zone 4 & zone 2 Netherlands valid until: 04-2026 |
| Suitable for / as: | inland waterways recreational vessel suitable as a year round live- aboard |
| General information: | Old age clause applicable. Any transactions must be submitted to the client or owner of the vessel for approval. Until this approval has been granted, all offers made are entirely without obligation. The ship is recognized as a Historic Vessel For sale because of the age of the seller. |
| Additional information: | Specified beam excludes the leeboards. Specified length is between bow and stern. Underwatership is almost fully double plated. classic sailing yacht Hull shape is suitable for drying out. forepeak with chain locker Great vessel for cruising on the European canals and rivers. Great vessel for cruising on the French canals and rivers. |
Technical information
| Enginepower: | 111 Hp 82 kW |
| Engine brand: | Weichai-Deutz |
| Revolutions: | 2100 RPM |
| Engine model: | TD226B4C2 |
| Number of cylinders: | 4 |
| Construction year engine: | 2009 new |
| Running hours (approx.): | 3600 on the hour counter |
| Fuel: | diesel 3 ltr/hrs consumption of the engine at cruising speed (as declared) |
| Fuel tank (approx.): | 1x 600 litre 1x 300 litre steel tank(s) |
| Cooling system: | closed cooling pipes |
| Propulsion: | 3 blade propeller greased lubrication of propeller shaft constant velocity prop shaft with thrust bearing |
| Gearbox: | PRM hydraulic |
| Speed (approx.): | 10 km/hour cruising speed at 1050 RPM |
| Heating: | All burner stove |
| Electricity system: | 24 / 230 / 400 Volt 230 Volt shore power connection |
| Batteries: | 4x 230 Ah domestic batterie(s) 2x 60 Ah starter batterie(s) 1x 72 Ah starter batterie(s) generator |
| Battery charger: | GBC 100 Prof battery charger 24/60 |
| Genny: | Deutz diesel genny 13 kVA 230/400 Volt 1500 RPM 3500 running hours (approx.) box cooler |
| Inverter: | Victron Phoenix inverter 24/2000 |
| Solar panels: | 2x 120 Watt Victron Blue Solar MPPT charge controller 75/15 |
| Fresh water tank (approx.): | 1500 litre 1 steel tank(s) cemented tank(s) |
| Water pressure system: | hydrophore pump |
| Hot water system: | Rheinstrom boiler/water calorifier via 230 Volt and engine cooling system 50 litre |
| Holding tank (approx.): | present 300 litre 1 plastic tank(s) |
| Bilge pump: | submersible pump |
| Gas system: | yes, bottle(s) in bottle box Gas certificate |
Accommodation
| Interior: | various materials have been used see photographs |
| Insulation: | available |
| Cabins: | 3 cabins |
| Berth: | Forward: 2x 1-pers Midships: 1x 2-pers Aft: 1x 2-pers |
| Lay-out plan (not to scale): | see attachment |
| Bathroom: | shower hot & cold running water washbasin with hot & cold running water in 1 area together with the toilet |
| Toilet / Heads: | electric toilet |
| Galley: | L-shape galley |
| Cooker: | 4-burner hob on gas stainless steel |
| Fridge / Refrigerator: | present 230 Volt |
| Freezer: | small ice compartment |
| Worktop: | wooden worktop |
| Washbasin: | stainless steel sink |
| Water tap: | hot & cold running water |
| Headroom (approx.): | forward (approx.) 1,75 m corridor / walkthrough (approx.) 1,39 m salon (approx.) 1,97 / 1,81 m bathroom / toilet (approx.) 1,80 m corridor / walkthrough (approx.) 1,79 m aftcabin (approx.) 2,05 m |
Navigation equipment
| Navigation equipment: | Uniden MC6700 VHF ComNav Voyager X3 Automatic Identification System (AIS) horn navigation lights blue board |
Rigging and sails
| Rigging type: | gaff rigged |
| Mast: | larch |
| Lowerable: | yes spreader with anchor winch |
| Boom: | steel / wooden boom |
| Gaff: | wooden gaff |
| Leeboards: | Bankirai wooden leeboards leeboards winch |
| Material of the sails: | Dacron |
| Sails: | mainsail jib |
| Additional information: | pin rail |
Equipment
| Anchor equipment: | manual anchor winch with electric motor (400 Volt) kedge anchor davits & stern anchor |
| Awnings: | over the hold hatches |
| Searail / Pulpit: | searail on bulwark |
| Safety: | life buoys life jackets fire extinguishers according to the certification requirements |
| Additional information: | Survey report of the underwatership is available (02-2019) |




