Luxe Motor 23.04 with ES-TRIN certificate reduced in price
Vision Doeve Brokers
Step aboard this Dutch Barge which is a beautifully converted former inland cargo vessel, now a luxurious cruising liveaboard with timeless appeal. Expertly transformed in 2000 into a stylish and comfortable floating home, she has been meticulously maintained ever since and is ready to go. The spacious wheelhouse offers panoramic views that make every journey through Europe’s rivers and canals a pleasure. With her elegant lines and authentic charm, this Luxe Motor is a real eye-catcher wherever she goes. Inside, she offers a spacious layout with two inviting cabins and two well-equipped bathrooms. The open galley and salon are ideal for relaxed living and receiving guests. Outdoor life is just as delightful: the large aft deck is perfect for lounging in the sun, while the bimini with removable side panels ensures comfort in every season. Whether you are enjoying breakfast outside or evening drinks, this deck invites you to embrace life on the water. Certified for EU zones 3 and 4, and zone 2 in the Netherlands, this vessel is perfectly suited for exploring the inland waterways of the Netherlands, Belgium, France and Germany. She has even gracefully navigated all the way to the south of France, including the picturesque Canal du Midi. If you are looking for a well-equipped, characterful Dutch barge to live aboard or cruise on the European waterways, this vessel is a great opportunity.
More information
General information
| Yard: | Shipyard H. en D. de Goede, NL-Zwartsluis |
| Yard rebuilt: | Shipyard Sipma, NL-Harlingen completed in-house finished |
| Rebuilt year: | 2000 |
| Hull shape: | flatbottom |
| Hull material: | iron/steel |
| Deck material: | steel |
| Superstructure material: | steel |
| Construction method: | riveted new steel is welded rubbing strake around bulwark around wide side decks (gunnels) closed bollard cabinets 2 watertight bulkhead(s) deckhouse |
| Keel: | bilge keels |
| Steering system: | hydraulic wheel |
| Windows: | aluminium windows frames hardwooden door |
| Displacement (approx.): | 62,164 m³ |
| Ballast (approx.): | present steel |
| Airdraft (approx.): | 3,10 m everything down |
| Owner: | Irish owner |
| Registration: | Dutch registered B-registered Costs for the change of ownership and / eventually deletion are for purchasers amount. |
| Colour / Paint System: | black hull bordeaux red bulwark white superstructure very well maintained see photographs last underwatership treatment 08-2025 |
| Certificates: | inland waterways certificated (TRIWV / ES-TRIN) zone 2 Netherlands zone 3 zone 4 Waal, Lek & NL Rhine valid until: 06-2033 |
| Suitable for / as: | inland waterways suitable as a year round live- aboard recreational vessel |
| General information: | Any transactions must be submitted to the client or owner of the vessel for approval. Until this approval has been granted, all offers made are entirely without obligation. Hand over in consultation. Old age clause applicable. |
| Additional information: | classic lines beautiful sheer Hull shape is suitable for drying out. spacious aftdeck wheelhouse forepeak with chain locker Great vessel for cruising on the European canals and rivers. Great vessel for cruising on the French canals and rivers. |
Technical information
| Enginepower: | 200 Hp 147 kW |
| Engine brand: | Scania |
| Revolutions: | 1800 RPM |
| Engine model: | DS11 |
| Number of cylinders: | 6 |
| Construction year engine: | 1984 presumably |
| Overhaul engine: | 1999 reconditioned installed |
| Running hours (approx.): | 2650 on the hour counter |
| Fuel: | diesel |
| Fuel tank (approx.): | 1x 2300 litre red 1x 1800 litre white steel tank(s) |
| Cooling system: | closed cooling pipes |
| Propulsion: | 3 blade propeller greased lubrication of propeller shaft |
| Gearbox: | Twin Disc MG-509 hydraulic reduction/ratio 2,95:1 |
| Speed (approx.): | 15 km/hour top speed 10 km/hour cruising speed at 1500 RPM |
| Heating: | Kabola KB40 Ecoline central heating (2021) combi boiler on diesel |
| Air conditioning: | 2x Dometic air conditioning in the wheelhouse present & in owner's cabin |
| Bow thruster: | Cupa electric bow thruster 24 Volt 90 KGF |
| Electricity system: | 24 / 230 Volt 230 Volt shore power connection Mastervolt mainmaster control |
| Batteries: | 2x 230 Ah bow thruster batterie(s) (2022) 4x 220 Ah domestic batterie(s) (2023) 1x 74 Ah starter batterie(s) generator 2x 225 Ah starter batterie(s) |
| Battery charger: | Mastervolt Mass battery charger 24/100 Mastervolt Easycharge battery charger 12/6 |
| Isolation transformer: | Mastervolt Mass GI 7.0 isolation transformer |
| Earth-leakage breaker: | present |
| Genny: | Mastervolt Whisper Ultra 12000 whisper set 12 kVA 230 Volt 3050 running hours (approx.) wet exhaust with water separator |
| Inverter: | Mastervolt Mass inverter 24/2500 Mastervolt 8770 inverter 24-12 Volt |
| Fresh water tank (approx.): | 2200 litre steel tank(s) cemented tank(s) |
| Water pressure system: | hydrophore pump |
| Hot water system: | boiler/water calorifier via 230 Volt and engine cooling system & through the central heating 95 litre |
| Holding tank (approx.): | present 285 litre steel tank(s) |
| Diesel waterseparator: | present |
| Bilge pump: | 3x electric pump 24 Volt & submersible pump |
| Gas system: | no gas on board |
| Additional information: | partly LED lightning |
Accommodation
| Interior: | various materials have been used painted white merbau flooring suitable for living on board see photographs |
| Insulation: | foamed insulation |
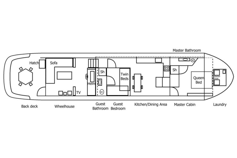
| Cabins: | 2 cabins |
| Berth: | Forward: 1x 2-pers Aft: 1x 2-pers & 1x 1-pers |
| Lay-out plan (not to scale): | see attachment |
| Bathroom: | Forward: shower cubicle mixer tap with hot & cold running water washbasin with mixer tap and hot & cold running water in 1 area together with the toilet Aft: shower cubicle mixer tap with hot & cold running water washbasin with mixer tap and hot & cold running water in 1 area together with the toilet |
| Toilet / Heads: | 2x electric toilet |
| Galley: | U-shape galley |
| Cooker: | 4-burner hob ceramic cooker cookerhood |
| Oven: | electric oven |
| Microwave: | microwave |
| Fridge / Refrigerator: | Siemens fridge / refrigerator 230 Volt combination with freezer |
| Freezer: | freezer |
| Worktop: | formica worktop |
| Washbasin: | stainless steel sink vegetable sink |
| Water tap: | mixer tap with hot & cold running water |
| Entertainment: | Samsung flatscreen TV |
| Headroom (approx.): | wheelhouse (approx.) 2,00 m aft cabin (approx.) 1,99 m bathroom / toilet aft (approx.) 1,97 m salon (approx.) 1,98 m galley (approx.) 2,00 m ownerscabin (approx.) 2,10 m bathroom / toilet in the front (approx.) 2,05 m |
| Additional information: | Whirlpool washing machine AEG tumble dryer Weber BBQ |
Navigation equipment
| Navigation equipment: | Navicom RT-550 VHF with DSC Standard Horizon Eclipse VHF with DSC ACR Automatic Identification System (AIS) navigation lights rudder indicator 3x window wiper blue board with oscillating light horn 2x Ear Tech headset |
Rigging and sails
| Mast: | lantern mast hard wood |
| Lowerable: | yes manual |
Equipment
| Anchor equipment: | manual anchor winch Klipp anchor anchor chain in hawse-hole warping drum |
| Bimini: | bimini top above cockpit with removable side panels / doors |
| Boarding ladder: | present |
| Searail / Pulpit: | searail on bulwark |
| Dinghy: | Caiman SR23 inflatable dinghy |
| Safety: | life buoys life jackets fire extinguishers |
| Additional information: | 3x teak wooden skylight covers over skylights aluminium gangway Survey report of the underwatership is available (08-2025) sundeck 2x steering chair set deck furniture 2 Di Blasi, Model R4 foldable Bike(s) 1 Di Blasi tricycle foldable Bike(s) |




