Executive vessel / Inspection vessel 17.83 ES-TRIN certified
Vision Doeve Brokers
A former Dutch customs vessel, originally stationed in NL-Vlissingen, was sold in 1975 and converted into a recreational vessel. The current owner has had the ship fully ES-TRIN certified as a work vessel (inland waters). This makes the vessel professionally suitable for commercial purposes, while private use or a combination of both, is not excluded. The maintenance is of a high standard and is continuously carried out. The engine room is perfectly maintained and looks fresh. The spacious wheelhouse offers excellent all-around visibility, is equipped with professional navigation equipment, has ample seating, two side doors and stairs leading to the cabin in the front. In the fore cabin, there is a neat living space with a galley, a double bed and a bathroom. The aft cabin has also a double bed and 2 single bunks, and a separate toilet room. In our opinion, this vessel is truly a gem.
More information
General information
| Yard: | Shipyard 't Hondsbosch, NL-Alkmaar |
| Rebuilt year: | partly 2014 |
| Hull shape: | round bilged |
| Hull material: | steel |
| Deck material: | steel |
| Superstructure material: | steel |
| Construction method: | riveted new steel is welded rubbing strake around (2014) rubber rubbing strake (2014) bulwark around (2014) closed bollard cabinets forecastle aft cabin below 3 watertight bulkhead(s) |
| Keel: | bilge keels |
| Steering system: | hydraulic power steering wheel & joystick |
| Windows: | aluminium windows frames aluminium portholes teak wooden outside doors double glazing in wheelhouse |
| Displacement (approx.): | maximum allowable displacement 77,859 m³ displacement in empty condition 62,493 m³ displacement 15,366 m³ |
| Ballast (approx.): | steel lead concrete |
| Airdraft (approx.): | 3,85 m everything down |
| Owner: | Dutch owner |
| Registration: | Dutch registered B-registered Costs for the change of ownership and / eventually deletion are for purchasers amount. |
| Colour / Paint System: | black hull black bulwark white superstructure very well maintained see photographs last underwatership treatment 05-2024 |
| Certificates: | Union Inland Navigation Certificate (ES-TRIN) zone 2 Netherlands zone 3 zone 4 Waal, Lek & NL Rhine valid until: 01-2031 |
| Suitable for / as: | commercial shipping recreational vessel inspection vessel patrol vessel suitable as a year round live- aboard |
| General information: | Any transactions must be submitted to the client or owner of the vessel for approval. Until this approval has been granted, all offers made are entirely without obligation. The ship is recognized as a Historic Vessel |
| Additional information: | beautiful sheer tug bitts (voor de sier / for decoration / zur Zierde / pour ornemental) towing hook (voor de sier / for decoration / zur Zierde / pour ornemental) The relevant VAT included in the asking price. Sale at 0% VAT to a is eventually possible if the buyer meets the applicable VAT guidelines. various rust sensitive places are made from stainless steel straight hull forepeak with chain locker Great vessel for cruising on the European canals and rivers. |
Technical information
| Enginepower: | 146 Hp 108 kW |
| Engine brand: | GM Detroit |
| Revolutions: | 1600 RPM |
| Engine model: | 6-71 |
| Number of cylinders: | 6 |
| Construction year engine: | 1957 |
| Running hours (approx.): | unknown |
| Fuel: | diesel |
| Fuel tank (approx.): | 1x 800 litre 2x 700 litre steel tank(s) sludge trap(s) BOBS overflowing fuel safety system |
| Cooling system: | closed box cooler |
| Propulsion: | 3 blade propeller De Waal oil bath propeller stern tube (2014) propeller shaft (2014) |
| Speed (approx.): | 15 km/hour cruising speed at 1400 RPM 17,5 km/hour top speed |
| Heating: | Ferroli central heating on diesel |
| Engine instruments: | alarm system |
| Bow thruster: | electric bow thruster 400 Volt |
| Electricity system: | 12 / 24 / 230 / 400 Volt 230 Volt shore power connection |
| Batteries: | 640 Ah traction batterie bank (2021) 95 Ah starter batterie(s) generator (2023) |
| Battery charger: | Victron Skylla-TG battery charger 24/75 Mastervolt IVO Smart battery charger 12/25-2 |
| Earth-leakage breaker: | present |
| Genny: | BW Generatortechniek whisper set 16,5 kVA 230/400 Volt 3000 RPM Mitsubishi diesel |
| Inverter: | Mastervolt Mass inverter 24/2500 V|ictron Phoenix inverter 24/375 |
| Fresh water tank (approx.): | 1x 1400 litre steel tank(s) cemented tank(s) |
| Water pressure system: | hydrophore pump |
| Fresh water filter system: | Aquamar UV fresh water filter system |
| Hot water system: | boiler/water calorifier (230 Volt) & through the central heating |
| Holding tank (approx.): | 1x 300 litre stainless steel tank(s) |
| Engineroom: | clean engineroom see photographs |
| Bilge pump: | electric pump 400 Volt with manifold also deckwash pump |
| Gas system: | no gas on board |
| Additional information: | air compressor air bottle electrical system has been Megger tested |
Accommodation
| Interior: | teak finish various materials have been used well maintained see photographs |
| Insulation: | Rockwool polystyrene |
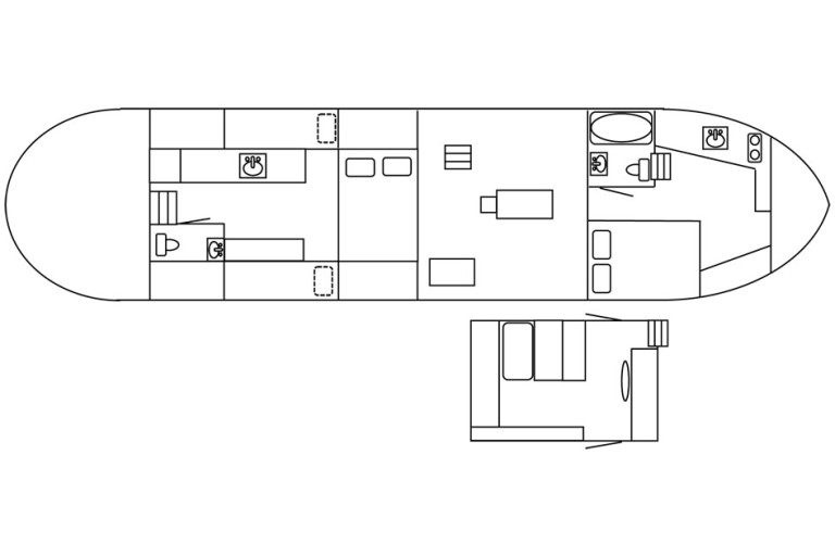
| Berth: | Forward: 1x 2-pers Aft: 1x 2-pers & 2x 1-pers |
| Lay-out plan (not to scale): | see attachment |
| Bathroom: | Forward: sitting bath with shower hot & cold running water washbasin hot & cold running water partly tiled in 1 area together with the toilet |
| Toilet / Heads: | Forward: electric toilet Aft: electric toilet washbasin with mixer tap and hot & cold running water |
| Galley: | along ships |
| Cooker: | 2-burner hob ceramic cooker |
| Oven: | Siemens electric oven |
| Fridge / Refrigerator: | 2x fridge / refrigerator |
| Freezer: | 1x small ice compartment 1x ice compartment |
| Worktop: | formica worktop |
| Washbasin: | stainless steel sink |
| Water tap: | hot & cold running water |
| Entertainment: | radio/CD player |
| Headroom (approx.): | wheelhouse (approx.) 1,92 m foc's hole (approx.) 2,04 m bathroom / toilet in the front (approx.) 1,84 m aftcabin (approx.) 1,91 m toilet aft (approx.) 1,77 m |
| Additional information: | washing machine |
Navigation equipment
| Navigation equipment: | Sailor RT144 VHF Comnav Voyager X3 Automatic Identification System (AIS) Radio Zeeland Euro 122 depth / echosounder Alphatron rudder indicator Alphatron rate-of-turn indicator Alphatron windset Furuno GP-37 GPS Swiss JFS 364 daylight radar Alphatron river autopilot (follow-up steering ) / follow up steering clearviewscreen 3x window wiper search light Tresco chartplotter clinometer horn navigation lights clock barometer thermometer hygrometer |
Rigging and sails
| Mast: | Blommaert radarmast aluminium |
| Lowerable: | yes hydraulic |
Equipment
| Anchor equipment: | manual anchor winch with electric motor (400 Volt) Klipp anchor anchor chain in hawse-hole |
| Searail / Pulpit: | searail on bulwark |
| Dinghy: | RIB |
| Davits: | present |
| Safety: | bilge alarm life buoys life jackets fire extinguishers according to the certification requirements |
| Additional information: | Survey report of the underwatership is available (04-2024) deck lights steering chair |




