Luxe Motor 26.13 with ES-TRIN Under offer
Vision Doeve Brokers
Former inland cargo vessel, completely converted into a comfortable live aboard vessel. Three cabins have been created on board, each with its own en-suite bathroom. The spacious salon features a large U-shaped galley, providing a pleasant stay on board. The wheelhouse is equipped with a folding roof section, allowing an air draft of approximately 2.90 meters. The current owner has undertaken extensive voyages with this vessel through the Netherlands, Belgium and France – including the Canal du Midi – proving the ship to be a reliable and comfortable cruising vessel. From a technical perspective, the vessel is in good condition. There is a Scania Vabis main engine, with a Beta Marine diesel auxiliary engine installed, which drives the hydraulic bow thruster. In addition, the vessel is equipped with a hydraulic deck crane and two hydraulically operated spud poles. The layout makes the this Dutch Barge ideal for living on board or for taking guests on board. In our view, a unique opportunity to acquire a spacious and well-equipped vessel with a proven track record in various cruising areas.
More information
General information
| Yard: | Shipyard N.V. Scheepsbouwwerf De Dageraad, v/h Wed. J. Boot, NL-Woubrugge |
| Hull shape: | flatbottom |
| Hull material: | steel |
| Deck material: | steel |
| Superstructure material: | steel hardwooden top side of the wheelhouse |
| Construction method: | riveted new steel is welded rubbing strake around bulwark around wide side decks (gunnels) deckhouse 2 watertight bulkhead(s) |
| Steering system: | mechanical wheel |
| Windows: | hardwood window frames double glazing hardwood outside doors |
| Displacement (approx.): | maximum allowable displacement 75,866 m³ displacement in empty condition 59,541 m³ displacement 16,325 m³ |
| Ballast (approx.): | present trim ballast |
| Airdraft (approx.): | 3,30 m everything down 2,90 m |
| Owner: | British owner |
| Registration: | Belgian registered |
| Colour / Paint System: | black hull green bulwark white superstructure last underwatership treatment 04-2023 2011 completely stripped down to the bare steel by hydrojetting Jotun two component system |
| Certificates: | inland waterways certificated (TRIWV / ES-TRIN) zone 2 Netherlands zone 3 zone 4 valid until: 04-2030 |
| Suitable for / as: | inland waterways suitable as a year round live- aboard recreational vessel |
| General information: | Old age clause applicable. Any transactions must be submitted to the client or owner of the vessel for approval. Until this approval has been granted, all offers made are entirely without obligation. |
| Additional information: | Hull shape is suitable for drying out. spacious upperdeck wheelhouse forepeak with chain locker Great vessel for cruising on the European canals and rivers. Great vessel for cruising on the French canals and rivers. |
Technical information
| Enginepower: | 165 Hp 121 kW |
| Engine brand: | Scania Vabis |
| Engine model: | D10R01 |
| Number of cylinders: | 6 |
| Running hours (approx.): | 6438 on the hour counter |
| Fuel: | diesel |
| Fuel tank (approx.): | 1x 500 litre white 1x 400 litre red steel tank(s) |
| Cooling system: | intercooling dry exhaust insulated exhaust |
| Propulsion: | 4 blade propeller greased lubrication of propeller shaft |
| Gearbox: | Paragon P45L |
| Heating: | Guillot Cythia 16/22 central heating combi boiler on diesel |
| Bow thruster: | hydraulic bow thruster Beta Marine diesel 30 Hp |
| Electricity system: | 24 / 230 Volt 230 Volt shore power connection |
| Batteries: | 850 Amperé traction batterie bank 2x 100 Ah starter batterie(s) bow thruster Victron BVM 602s battery monitor |
| Battery charger: | Clarke BC410E battery charger |
| Alternator: | 1x 100 ampère 1x 200 ampère |
| Inverter: | OutBack VFX3024E combi inverter/charger 24/300/85 |
| Fresh water tank (approx.): | 2000 litre 2 steel tank(s) |
| Water pressure system: | 1x 24 Volt hydrophore pump 1x 230 Volt hydrophore pump |
| Holding tank (approx.): | not present, enough space to build-in |
| Bilge pump: | 1 electric pump |
| Gas system: | yes, bottle(s) in bottle box on deck |
| Additional information: | auxiliary engine with PTO for the hydraulic air compressor |
Accommodation
| Interior: | various materials have been used Plywood wooden floor(s) ceiling with laths (classic) see photographs |
| Insulation: | Rockwool |
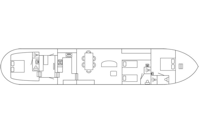
| Cabins: | 3 cabins |
| Berth: | Forward: 1x 2-pers Starboard cabin: 2x 1-pers Aft: 1x 2-pers |
| Lay-out plan (not to scale): | see attachment |
| Bathroom: | owners cabin: En Suite shower thermostat tap in 1 area together with the toilet washbasin with mix tap and hot & cold running water Starboard: En Suite shower thermostat tap in 1 area together with the toilet washbasin with mix tap and hot & cold running water Aft: En Suite shower mixer tap with hot & cold running water washbasin with mix tap and hot & cold running water in 1 area together with the toilet |
| Toilet / Heads: | 2x electric toilet 1x flush toilet |
| Galley: | U-shape galley |
| Cooker: | 5-burner hob stainless steel on gas |
| Oven: | gas oven |
| Microwave: | present |
| Fridge / Refrigerator: | fridge / refrigerator 230 Volt combination with freezer |
| Freezer: | freezer |
| Worktop: | tiled worktop |
| Washbasin: | 1x sink 1x vegetable sink |
| Water tap: | mixer tap with hot & cold running water |
| Dishwasher: | present |
| Entertainment: | flatscreen TV radio/CD player selfsearching satellite antenna |
| Headroom (approx.): | wheelhouse (approx.) 1,87 m aftcabin (approx.) 1,82 m bathroom / toilet aft (approx.) 1,77 m galley (approx.) 2,15 m salon (approx.) 1,95 m corridor / walkthrough (approx.) 1,95 m guest cabin (approx.) 1,99 m bathroom / toilet (approx.) 1,97 m ownerscabin (approx.) 2,05 m bathroom / toilet (approx.) 2,03 m |
| Additional information: | washing machine inventory The vessel will be delivered with everything on board less personal effects & artwork. |
Navigation equipment
| Navigation equipment: | M-Tech MT-550 VHF with DSC Class A Automatic Identification System (AIS) rudder indicator blue board navigation lights horn tunnel light |
Rigging and sails
| Mast: | aluminium mast |
| Lowerable: | yes manual |
Equipment
| Anchor equipment: | manual windlass with hydraulic motor Spek anchor anchor chain in hawse-hole 2x spudleg / pole (hydraulic) 1,5 m under the bottom specified length(s) is/are approximate |
| Searail / Pulpit: | guardrail around upperdeck |
| Dinghy: | present |
| Davits: | present |
| Safety: | fire extinguishers life jackets life buoys according to the certification requirements fire blanket smoke detector(s) |
| Additional information: | hard wooden skylight 1000 kg hydraulic steel crane |




