Motoryacht 20.18 GSOK reduced in price
Vision Doeve Brokers
This robust and sturdy ship was built as a Parlevinker (floating shop). Due to circumstances she was never used for this purpose and the current owner had her converted in 2008/2009 into the cruising liveaboard she is today. This major renovation focused on living, comfort and autonomy. The underwater hull and freeboard were sandblasted in 2022. The very spacious salon is equipped with underfloor heating, plastic window frames, double glazing, screens and offers a panoramic view of the surroundings. The generous aft deck is a wonderful outdoor living area. The electrical system was an important focus during the renovation. In addition to the combi inverter/charger, there are 12 service batteries powered by 12 solar panels. A professional generator is also included. The ship is completely self-supporting and equipped with two spud poles. This solid motor yacht offers you space, comfort and autonomy to travel, to enjoy and, if desired, to live on board.
More information
General information
| Yard: | Shipyard Sepers en ZN, NL-Heerewaarden |
| Rebuilt year: | interior 2010/2015 |
| Hull shape: | flatbottom round bilges |
| Hull material: | steel |
| Deck material: | steel |
| Superstructure material: | steel |
| Construction method: | stainless steel bollards closed bollard cabinets 3 watertight bulkhead(s) wide side decks (gunnels) plastic rubbing strake ( boeg / bow / Bogen / arc ) transom stern |
| Steering system: | hydraulic wheel Becker rudder |
| Windows: | plastic window frames double glazing screens for all windows |
| Displacement (approx.): | maximum allowable displacement 70,455 m³ displacement in empty condition 56,418 m³ displacement 14,037 m³ |
| Ballast (approx.): | 3 metric tons steel |
| Airdraft (approx.): | 3,45 m everything down |
| Owner: | Dutch owner |
| Registration: | Dutch registered B-registered Costs for the change of ownership and / eventually deletion are for purchasers amount. |
| Colour / Paint System: | underwater ship and hull sandblasted 2022 = two component system black hull (2022) white superstructure (2022) last underwatership treatment 2022 |
| Certificates: | inland waterways certificated (TRIWV / ES-TRIN) zone 3 zone 4 zone 2 Netherlands Waal, Lek & NL Rhine valid until: 09-2029 |
| Suitable for / as: | suitable as a year round live- aboard recreational vessel inland waterways |
| Additional information: | motor yacht Hull shape is suitable for drying out. Great vessel for cruising on the French canals and rivers. Great vessel for cruising on the European canals and rivers. |
Technical information
| Enginepower: | 285 Hp 210 kW |
| Engine brand: | Deutz/MWM |
| Revolutions: | 1800 RPM |
| Engine model: | TBD 234 V06 |
| Number of cylinders: | 6 |
| Construction year engine: | 1996 into operation |
| Running hours (approx.): | 1500 on the hour counter |
| Fuel: | diesel |
| Fuel tank (approx.): | 2x 1500 litre steel tank(s) |
| Cooling system: | closed box cooler insulated exhaust dry exhaust |
| Propulsion: | 5 blade propeller greased lubrication of propeller shaft greasing device |
| Gearbox: | Dong-i DMT 100T hydraulic reduction/ratio 2,82:1 |
| Heating: | Kabola KM7-20 central heating on diesel radiators & floor heating Siemens thermostat |
| Bow thruster: | Duco electric bow thruster 24 Volt 20 Hp |
| Stern thruster: | Duco electric stern thruster 24 Volt 16 Hp |
| Electricity system: | 12 / 24 / 230 / 400 Volt 230 Volt shore power connection Victron Digital Multi Control |
| Batteries: | 12x 260 Ah domestic batterie(s) 2x 280 Ah starter batterie(s) 1x 115 Ah starter batterie(s) generator = Victron BMV-600S battery monitor |
| Battery charger: | Victron Blue Power combi inverter/charger 24/5000/120 Victron Blue Power battery charger |
| Earth-leakage breaker: | present |
| Genny: | MWM/Deutz diesel genny 230/400 Volt 20 kVA 1500 RPM 980 on the hour counter (approx.) box cooler |
| Alternator: | 2x alternator |
| Inverter: | Victron Blue Power combi inverter/charger 24/5000/120 |
| Solar panels: | present 12x 340 Watt 4x 40 amp Victron BlueSolar MPPT charge controller |
| Fresh water tank (approx.): | 1x 2250 litre 1x 500 litre stainless steel tank(s) |
| Water pressure system: | DAB easybox hydrophore pump |
| Hot water system: | 2x boiler/water calorifier (230 Volt) 1x 60 + 1x 10 litre |
| Holding tank (approx.): | 1x 500 litre stainless steel tank(s) macerator wastewater pump |
| Diesel waterseparator: | present |
| Engineroom: | insulated engineroom |
| Bilge pump: | with manifold |
| Deck wash pump: | with manifold 3x electric pump 400 Volt |
| Gas system: | no gas on board |
| Additional information: | LED lightning |
Accommodation
| Interior: | teak finish laminate floor(s) various materials have been used |
| Insulation: | glass wool & Rockwool |
| Cabins: | 3 cabins |
| Berth: | owners cabin: 1x 2-pers Guest cabin(s): 1x 2-pers |
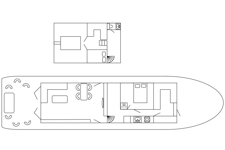
| Lay-out plan (not to scale): | see attachment |
| Bathroom: | shower thermostat tap walls of waterproof plate material |
| Toilet / Heads: | electric toilet washbasin mixer tap with hot & cold running water |
| Galley: | along ships |
| Cooker: | 4-burner hob induction cooker |
| Oven: | microwave/oven |
| Fridge / Refrigerator: | 1x 230 Volt |
| Freezer: | 1x 230 Volt |
| Entertainment: | DVD-player radio/CD player 2x flatscreen TV |
| Headroom (approx.): | forecabin (approx.) 1,83 m galley (approx.) 2,00 m ownerscabin (approx.) 2,00 m toilet (approx.) 2,01 m salon (approx.) 2,03 m guest cabin (approx.) 1,70 m |
| Additional information: | Beko washing machine Euroflow central vacuum clean system The vessel will be delivered as without the private goods like furniture, clothing, artwork and tools. |
Navigation equipment
| Navigation equipment: | L3 communications Automatic Identification System (AIS) Debeg RT 6448 VHF XM 2000 portable VHF Cobra HH350 portable VHF navigation computer Hikvision camera system B&G log / speed Lowrance X-510 depth / echosounder Hape intercom navigation lights window wiper horn rudder indicator blue board with oscillating light search light horn light |
Rigging and sails
| Mast: | apparatus wing stainless steel |
| Lowerable: | yes electric |
Equipment
| Anchor equipment: | manual anchor winch Pool anchor anchor chain in hawse-hole warping drum 1x 2,5 m spudleg / pole (electric) 1x 3,5 m spudleg / pole (electric) under the bottom specified length(s) is/are approximate |
| Cockpit tent: | present Stainless steel frame |
| Boarding ladder: | present aluminium |
| Davits: | electric aluminium |
| Safety: | fire extinguishers life buoys life jackets according to the certification requirements |
| Additional information: | 2x aluminium gangway mosquito nets for windows electric crane Survey report of the underwatership is available (03-2022) |




