Luxe Motor 28.92 with ES-TRIN
Vision Doeve Brokers
Former inland freighter that has been refitted by the current owner into a comfortable sailing Live Aboard Barge. In 2007 the technique systems were upgraded, including a new diesel engine with a 230 Volt generator on the engine, as well as the PTO for the hydraulic bow thruster. The wheelhouse can be folded down so that an air draft of approximately 2.85 m can be reached. A spacious kitchen has been placed in the salon and further forward is the owner's cabin with spacious bathroom. The aft cabin still needs to be finished according to your own idea. Equipped with plastic windows frames and double glazing, it is a Belgian Barge that is excellent for living on board and/or taking long journeys on the European inland waterways.
More information
General information
| Yard: | Shipyard B-Boom |
| Rebuilt year: | 2007/2008 |
| Hull shape: | flatbottom |
| Hull material: | steel |
| Deck material: | steel |
| Superstructure material: | steel teak top side of the wheelhouse |
| Construction method: | riveted new steel is welded rubbing strake wide side decks (gunnels) kalffsdecks (raised decks) deckhouse 3 watertight bulkhead(s) closed bollard cabinets |
| Steering system: | mechanical wheel |
| Windows: | plastic window frames double glazing teak wooden outside doors |
| Ballast (approx.): | poured concrete 20 metric tons mentioned weight is an estimate |
| Airdraft (approx.): | 3,75 m 2,85 m with windscreen down |
| Owner: | Belgian owner |
| Registration: | Belgian registered |
| Colour / Paint System: | black hull white superstructure see photographs last underwatership treatment 09-2022 |
| Certificates: | Union Inland Navigation Certificate (ES-TRIN) zone 2 Netherlands zone 3 zone 4 Waal, Lek & NL Rhine valid until: 06-2030 |
| Suitable for / as: | inland waterways recreational vessel suitable as a year round live- aboard |
| General information: | Old age clause applicable. |
| Additional information: | Hull shape is suitable for drying out. forepeak with chain locker Great vessel for cruising on the European canals and rivers. Great vessel for cruising on the French canals and rivers. |
Technical information
| Enginepower: | 160 Hp 118 kW |
| Engine brand: | Doosan |
| Revolutions: | 2200 RPM |
| Engine model: | MD136 |
| Number of cylinders: | 6 |
| Construction year engine: | 2007 into operation |
| Running hours (approx.): | 125 on the hour counter |
| Fuel: | diesel |
| Fuel tank (approx.): | 1x 200 litre white 1x 1500 litre red |
| Cooling system: | closed box cooler |
| Propulsion: | 3 blade propeller greased lubrication of propeller shaft |
| Gearbox: | Hangzhou hydraulic (2007) reduction/ratio 3:1 |
| Heating: | Ideal Standard central heating on diesel & 1x stove on wood |
| Bow thruster: | Kalkman Beta 25H hydraulic bow thruster |
| Electricity system: | 12 / 24 / 230 Volt 230 Volt shore power connection |
| Batteries: | 2x 100 Ah starter batterie(s) 1x 55 Ah starter batterie(s) generator 1 traction batterie bank 12x 2 Volt |
| Battery charger: | Victron Skylla battery charger 24/50 Studer HP-Compact combi inverter/charger 24/4400/100 |
| Earth-leakage breaker: | present |
| Genny: | VEB IFA diesel 5 kVA 4835 running hours (approx.) & 7 kVA from the main engine (Elja Power) |
| Inverter: | Studer HP-Compact combi inverter/charger 24/4400/100 inverter 24-12 |
| Fresh water tank (approx.): | 5000 litre & 2x 5000 litre (buitenboordwater / outboard water / Außenbordwasser / eau hors-bord) |
| Water pressure system: | hydrophore pump |
| Hot water system: | 1x boiler/water calorifier (230 Volt) 1x Close in boiler/water calorifier (230 Volt) 1x solar water boiler/water calorifier |
| Holding tank (approx.): | 3000 litre 1 plastic tank(s) |
| Engineroom: | see photographs |
| Bilge pump: | present |
| Deck wash pump: | present 230 Volt |
| Gas system: | no gas on board |
| Additional information: | main engine with PTO for the hydraulic |
Accommodation
| Interior: | various materials have been used see photographs |
| Insulation: | Rockwool & polystyrene |
| Cabins: | 2 cabins |
| Berth: | 1x 2-pers |
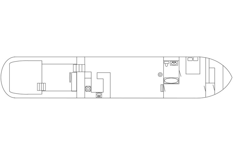
| Lay-out plan (not to scale): | see attachment |
| Bathroom: | bath with shower mixer tap with hot & cold running water washbasin with hot & cold running water in 1 area together with the toilet tiled bathroom |
| Toilet / Heads: | flush toilet |
| Galley: | U-shape galley |
| Cooker: | 4-burner hob induction cooker cookerhood stainless steel |
| Oven: | microwave/oven |
| Fridge / Refrigerator: | Liebherr fridge / refrigerator combination with freezer |
| Freezer: | freezer |
| Worktop: | hardwooden worktop |
| Washbasin: | stainless steel sink |
| Water tap: | mixer tap with hot & cold running water |
| Dishwasher: | present |
| Headroom (approx.): | wheelhouse (approx.) 1,94 m galley (approx.) 2,13 m salon (approx.) 2,27 m ownerscabin (approx.) 2,43 m bathroom / toilet (approx.) 2,26 m aftcabin (approx.) 1,97 m |
| Additional information: | useful as live-aboard The vessel will be delivered as without the private goods like furniture, clothing, artwork and tools. Bosch washing machine |
Navigation equipment
| Navigation equipment: | Comnav Voyager X3 Automatic Identification System (AIS) Standard Horizon Quest-X GX1500E VHF with DSC Standard Horizon HX370E portable VHF navigation lights horn window wiper clock barometer clinometer |
Rigging and sails
| Mast: | lantern mast aluminium |
| Lowerable: | yes manual |
Equipment
| Anchor equipment: | manual anchor winch Klipp anchor anchor chain in hawse-hole |
| Safety: | bilge alarm life buoys fire extinguishers life jackets according to the certification requirements |
| Additional information: | hard wooden skylight aluminium gangway Survey report of the underwatership is available (06-2018) |




