Sailingclipper 20.40 with TRIWV Sold
Vision Doeve Brokers
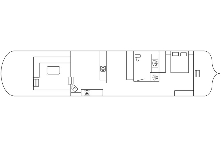
Former inland cargo vessel that has been completely refurbished for comfortable living on board and for sailing. The Dutch Barge is located in a historic harbor in Rotterdam. This official residential mooring can possibly be taken over by a new owner. The interior is approximately 85% ready and still needs to be finished. The interior has a seating area in the deckhouse from which it is possible to look outside and from which the spacious open kitchen is visible. Further forward there is an open space that can be used as an extra cabin. Then you come into the spacious bathroom with shower cabin and toilet and all the way forward is the master cabin. The berth is located in such a place with all necessary facilities and public transport within walking distance. In our view, this is an excellent opportunity to obtain a free berth on the water.
More information
General information
| Yard: | Shipyard Gebr. Van Dijk, NL-Capelle aan den IJssel |
| Hull shape: | flatbottom |
| Hull material: | iron/steel |
| Deck material: | iron/steel |
| Superstructure material: | steel wooden hatches covers over hold |
| Construction method: | riveted new steel is welded rubbing strake around bulwark around clipper bow deckhouse 2 watertight bulkhead(s) |
| Steering system: | mechanical wheel steel rudder |
| Windows: | double glazing in aft cabin & single glass |
| Displacement (approx.): | 45 ton metric tons estimated |
| Airdraft (approx.): | 18,00 m 3,00 m lowered mast(s) |
| Owner: | Dutch owner |
| Registration: | Dutch registered B-registered Costs for the change of ownership and / eventually deletion are for purchasers amount. |
| Colour / Paint System: | black hull white bulwark white superstructure 10-2022 last underwatership treatment see photographs |
| Certificates: | inland waterways certificated (TRIWV / ES-TRIN) zone 2 Netherlands zone 3 zone 4 Waal, Lek & NL Rhine valid until: 10-2025 |
| Suitable for / as: | inland waterways suitable as a year round live- aboard recreational vessel |
| Additional information: | Specified beam excludes the leeboards. classic lines Hull shape is suitable for drying out. Great vessel for cruising on the European canals and rivers. Great vessel for cruising on the French canals and rivers. |
Technical information
| Enginepower: | 96 Hp 71 kW |
| Engine brand: | DAF |
| Revolutions: | 2200 RPM |
| Engine model: | DF 615M |
| Number of cylinders: | 6 |
| Overhaul engine: | 1998 reconditioned installed |
| Running hours (approx.): | unknown |
| Fuel: | diesel |
| Fuel tank (approx.): | 200 litre 1 steel tank(s) |
| Cooling system: | intercooling wet exhaust |
| Propulsion: | 3 blade propeller greased lubrication of propeller shaft |
| Gearbox: | PRM 500D hydraulic reduction/ratio 1,935:1 |
| Heating: | stove on wood & central heating = prepared |
| Bow thruster: | Kalkman electric bow thruster 24 Volt |
| Electricity system: | 12 / 24 / 230 Volt 230 Volt shore power connection Mastervolt EasyView 5 - touch screen mainmaster control |
| Batteries: | 1 Mastervolt MLI Ultra Lithium domestic batterie(s) 24/5500 1 Mastervolt MLI Ultra Lithium bow thruster batterie(s) 24/5500 |
| Battery charger: | Mastervolt IVO battery charger 24/6 Mastervolt combi inverter/charger 24/2400 |
| Earth-leakage breaker: | present |
| Inverter: | Mastervolt combi inverter/charger 24/2400 |
| Fresh water tank (approx.): | 1400 litre 1 stainless steel tank(s) |
| Water pressure system: | electric water pump |
| Hot water system: | boiler/water calorifier (230 Volt) & through the central heating |
| Holding tank (approx.): | not present, enough space to build-in |
| Diesel waterseparator: | present |
| Bilge pump: | submersible pump |
| Gas system: | no gas on board |
Accommodation
| Interior: | HPL & Plywood painted white simple interior 2011 completely renovated not yet completely finished laminate floor(s) hardwooden floor(s) |
| Insulation: | well insulated Rockwool & PU plates |
| Berth: | Forward: 1x 2-pers |
| Lay-out plan (not to scale): | see attachment |
| Bathroom: | shower cubicle mixer tap with hot & cold running water washbasin with mixer tap and hot & cold running water in 1 area together with the toilet |
| Toilet / Heads: | flush toilet |
| Galley: | sideways & along ships |
| Cooker: | 4-burner hob induction cooker (niet / not / nicht / ne pas 100%) |
| Oven: | Whirlpool microwave/oven grill |
| Fridge / Refrigerator: | present 230 Volt |
| Freezer: | small ice compartment |
| Worktop: | hardwooden worktop |
| Washbasin: | stainless steel sink |
| Water tap: | mixer tap with hot & cold running water |
| Dishwasher: | present |
| Headroom (approx.): | cabin (approx.) 1,99 m galley (approx.) 1,91 m corridor / walkthrough (approx.) 1,89 m bathroom / toilet (approx.) 1,90 m ownerscabin (approx.) 1,99 / 1,63 m |
| Additional information: | The vessel will be delivered as without the private goods like furniture, clothing, artwork and tools. useful as live-aboard see photographs |
Navigation equipment
| Navigation equipment: | L3 Automatic Identification System (AIS) Uniden MC6700bv VHF Icom BC-166 portable VHF blue board |
Rigging and sails
| Rigging type: | gaff rigged |
| Mast: | steel (2018) |
| Lowerable: | spreader with anchor winch |
| Boom: | steel |
| Gaff: | not available |
| Jib boom / Bowsprit: | aluminium Jib boom |
| Leeboards: | hardwooden leeboards 2x leeboards winch |
| Sails: | yankee mainsail jib The sails are not sized for the current mast(s). |
| Additional information: | pin rail |
Equipment
| Anchor equipment: | manual anchor winch with electric motor kedge anchor anchor chain in hawse-hole |
| Awnings: | over the hold hatches |
| Searail / Pulpit: | searail on bulwark |
| Safety: | fire extinguishers life buoys life jackets according to the certification requirements |
| Additional information: | hard wooden skylight Survey report of the underwatership is available Taking over of the current official residential rental mooring can be discussed with the port manager. |




