Motortjalk 17.65 Sold
Vision Doeve Brokers
Former inland cargo vessel, type Motortjalk, completely refurbished into a Cruising Houseboat / Dutch Barge. The vessel has a straight hull, beautiful sheer, superstructure in line with the sheer and a spacious open cockpit. The interior is neat and has already been renovated completely, including the majority of the technical installation. Equipped with 2 cabins (1 cabin is now in use as storage and office space), bathroom with toilet and shower, spacious galley and a spacious salon further to the aft. With the Pellet stove that is equipped with a fan, the entire ship is also very comfortable in winter. In our opinion an ideal Dutch Barge to live on board and/or to make long journeys on the European inland waterways.
More information
General information
| Yard: | unknown |
| Hull shape: | flatbottom |
| Hull material: | iron/steel |
| Deck material: | steel |
| Superstructure material: | steel |
| Construction method: | riveted new steel is welded rubbing strake around bulwark around open cockpit self-draining cockpit |
| Steering system: | tiller oak rudder |
| Windows: | rubber window frames |
| Displacement (approx.): | 35 ton estimated |
| Ballast (approx.): | trim ballast |
| Airdraft (approx.): | 2,70 m 2,10 m everything down |
| Owner: | Dutch owner |
| Colour / Paint System: | blue hull blue bulwark white superstructure very well maintained see photographs last underwatership treatment 04-2022 |
| Certificates: | no certificate requirement |
| Suitable for / as: | inland waterways suitable as a year round live- aboard & recreational vessel |
| Additional information: | Hull shape is suitable for drying out. Specified length is between bow and stern. Given construction year is an estimate. Great vessel for cruising on the European canals and rivers. Great vessel for cruising on the French canals and rivers. |
Technical information
| Enginepower: | 103 Hp 76 kW |
| Engine brand: | Valmet |
| Engine model: | 411 DS |
| Number of cylinders: | 4 |
| Construction year engine: | 1990 |
| Running hours (approx.): | unknown |
| Fuel: | diesel |
| Fuel tank (approx.): | 1x 480 litre 1x 75 litre |
| Cooling system: | closed box cooler |
| Propulsion: | 5 blade propeller greased lubrication of propeller shaft |
| Gearbox: | Velvet AS3-71C hydraulic reduction/ratio 2,10:1 |
| Heating: | Ravelli pelletstove / hot air heating |
| Electricity system: | professionally installed system 24 / 230 Volt 230 Volt shore power connection Victron Multi control |
| Batteries: | 4x 330 Ah domestic batterie(s) (lead Carbon 6 Volt) 2x starter batterie(s) 1x starter batterie(s) generator 330 AH/6 V |
| Battery charger: | Victron MultiPlus combi inverter/charger 24/3000/70 Victron Blue Smart battery charger 24/16 |
| Earth-leakage breaker: | present |
| Genny: | Westerbeke sound proof box 12 kVA 230 Volt 1500 RPM |
| Inverter: | Victron MultiPlus combi inverter/charger 24/3000/70 |
| Fresh water tank (approx.): | 2x 600 litre stainless steel tank(s) |
| Water pressure system: | electric water pump |
| Hot water system: | boiler/water calorifier (230 Volt) |
| Holding tank (approx.): | 600 litre |
| Diesel waterseparator: | present |
| Engineroom: | very well maintained see photographs |
| Bilge pump: | present |
| Gas system: | no gas on board |
| Additional information: | LED lightning |
Accommodation
| Interior: | Marine Plywood very well maintained oak floor(s) very well maintained see photographs |
| Insulation: | yes |
| Cabins: | 2 cabins |
| Berth: | Forward: 1x 2-pers Midships: 1x 2-pers & 1x 1-pers Sofa bed: 1x -2 pers |
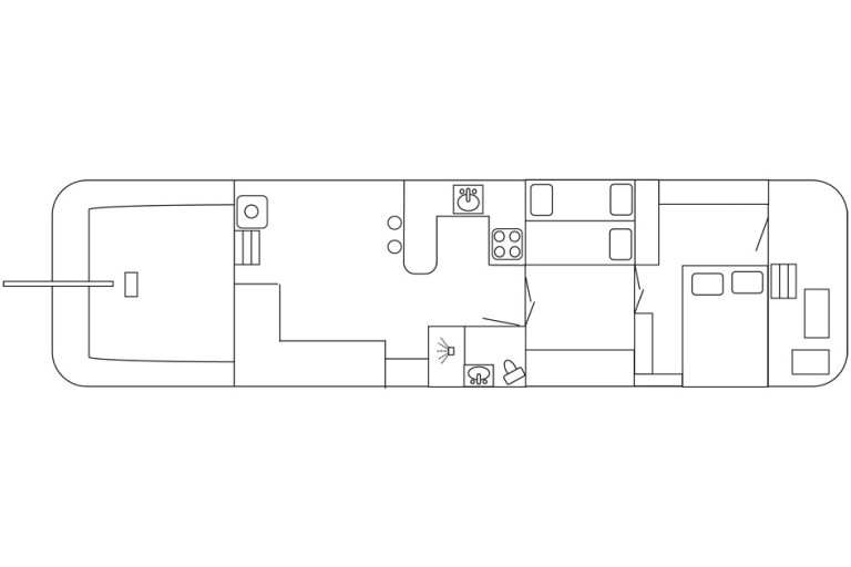
| Lay-out plan (not to scale): | see attachment |
| Bathroom: | shower thermostat tap washbasin with hot & cold running water in 1 area together with the toilet |
| Toilet / Heads: | electric toilet |
| Galley: | U-shape galley |
| Cooker: | 4-burner hob ceramic cooker |
| Microwave: | microwave/oven |
| Fridge / Refrigerator: | Bosch fridge / refrigerator 230 Volt |
| Freezer: | ice compartment |
| Worktop: | wooden worktop |
| Washbasin: | stainless steel sink |
| Water tap: | mixer tap with hot & cold running water |
| Headroom (approx.): | forward (approx.) 1,34 / 2,00 m midships (approx.) 1,97 m galley (approx.) 1,90 m bathroom / toilet (approx.) 1,91 m salon (approx.) 1,92 / 2,02 m |
| Additional information: | Bosch washing machine / dryer |
Equipment
| Anchor equipment: | manual anchor winch anchor chain Pool anchor in hawse-hole |
| Bimini: | bimini top above cockpit |
| Cockpit tent: | Stainless steel frame |
| Boarding ladder: | aluminium |
| Safety: | fire extinguisher life buoy |
| Additional information: | 2x hard wooden skylight Survey report of the underwatership is available (03-2022) aluminium gangway Taking over of the current leisure rental mooring can be discussed with the port owner. |




