Sagar Mini Luxe Motor replica 14.94 Sold
Vision Doeve Brokers
This beautiful Sagar Dutch-style replica Luxe Motor is in the hands of the first owners and is still in an excellent state of maintenance. The heavy, robust design of this Luxe Motor makes it a delight to navigate with her. The interior of this ship is impressive, featuring a beautiful oak interior that is still in excellent condition. The two cabins have en-suite bathrooms, providing comfort and privacy to the owners and guests. The spacious kitchen is equipped with, among other things, an oven and a grill. An outstanding feature of this ship is the collapsible wheelhouse, which makes a very low air draft possible. The wheelhouse has foldable tables ans settee for up to 7 people. Furthermore, this ship is self-sufficient, with a whisper generator, solar panels and an inverter. In short, this Sagar Dutch-style replica Luxe Motor is an unique and beautifully maintained motor yacht or floating home that offers everything needed for a comfortable and adventurous journey on the water or for living aboard.
More information
General information
| Yard: | Shipyard Sagar Marine, UK-Brighouse, Yorkshire |
| Designer / Architect: | Sagar Marine, UK-Brighouse, Yorkshire |
| Hull shape: | hard chine |
| Hull material: | steel 25/8/6 mm |
| Deck material: | steel 6 mm |
| Superstructure material: | steel 4 mm Iroko hardwooden top side of the wheelhouse aluminium wheelhouse roof |
| Construction method: | deckhouse bulwark rubber rubbing strake wide side decks (gunnels) Sturdy, heavily constructed 2 watertight bulkhead(s) bulbous bow |
| Steering system: | hydraulic wheel balance rudder |
| Windows: | Iroko hardwood window frames double glazing chromed portholes single glass |
| Displacement (approx.): | 25 metric tons |
| Ballast (approx.): | present trim ballast |
| Airdraft (approx.): | 2,80 m 2,10 m with dismantled wheelhouse |
| Owner: | British owner |
| Registration: | British registered SSR |
| Colour / Paint System: | black hull bordeaux red bulwark white superstructure two component system see photographs |
| Certificates: | no certificate requirement |
| RCD / CE Certification: | C |
| Suitable for / as: | suitable as a year round live- aboard & recreational vessel inland waterways & coastal waters |
| General information: | from first owner |
| Additional information: | 2x bow fender classic motor yacht motor cruiser motor yacht Hull shape is suitable for drying out. straight hull forepeak with chain locker Great vessel for cruising on the coastal waters. Great vessel for cruising on the European canals and rivers. Great vessel for cruising on the French canals and rivers. |
Technical information
| Enginepower: | 90 Hp 66 kW |
| Engine brand: | Beta (Kubota) |
| Revolutions: | 2600 RPM |
| Engine model: | B-90 |
| Number of cylinders: | 4 |
| Construction year engine: | 2008 |
| Running hours (approx.): | 2500 on the hour counter |
| Fuel: | diesel |
| Fuel tank (approx.): | 1x 900 litre 1x 340 litre steel tank(s) |
| Cooling system: | intercooling wet exhaust |
| Propulsion: | 4 blade propeller Aquadrive constant velocity prop shaft with thrust bearing water lubricated propeller shaft propeller inspection hatch |
| Gearbox: | PRM hydraulic reduction/ratio 2,5:1 |
| Speed (approx.): | 10 km/hour cruising speed at 1500 RPM 13 km/hour top speed |
| Heating: | Webasto ThermoPro 90 central heating on diesel & Harworth Belfort stove on diesel |
| Engine instruments: | present |
| Bow thruster: | Sleipner SidePower electric bow thruster 75 KGF 24 Volt |
| Electricity system: | 24 / 230 Volt 230 Volt shore power connection Victron VE.Bus MultiControl |
| Batteries: | 1x 95 Ah starter batterie(s) 4x 220 Ah domestic batterie(s) 1x 80 Ah starter batterie(s) generator Victron BMV-600 battery monitor |
| Battery charger: | Victron MultiPlus combi inverter/charger 24/3000/70 |
| Battery isolator: | present |
| Isolation transformer: | Pennine Radio isolation transformer 3500VA |
| Earth-leakage breaker: | present |
| Genny: | Beta Gen 10 whisper set 10 kVA 1500 RPM 1200 running hours (approx.) |
| Inverter: | Victron MultiPlus combi inverter/charger 24/3000/70 Victron Orion inverter 24-12 Volt |
| Solar panels: | 3x solar panel Victron SmartSolar MPPT charge controller 100/15 |
| Fresh water tank (approx.): | 1350 litre 3x stainless steel tank(s) |
| Water pressure system: | electric water pump |
| Hot water system: | boiler/water calorifier via 230 Volt and engine cooling system |
| Holding tank (approx.): | 450 litre 1 stainless steel tank(s) |
| Diesel waterseparator: | present |
| Engineroom: | clean engineroom sound insulated engineroom |
| Bilge pump: | electric pump 24 Volt |
| Deck wash pump: | electric pump 24 Volt |
| Gas system: | yes, bottle(s) in bottle box |
Accommodation
| Interior: | Plywood oak finish very well maintained see photographs |
| Insulation: | foamed insulation |
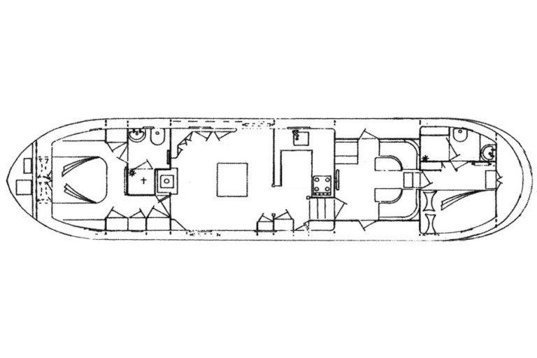
| Cabins: | 2 cabins |
| Berth: | Forward: 1x 2-pers Aft: 1x 2-pers |
| Lay-out plan (not to scale): | see attachment |
| Bathroom: | Forward: shower cubicle thermostat tap washbasin with mixer tap and hot & cold running water partly tiled in 1 area together with the toilet Aft: shower cubicle thermostat tap washbasin with mixer tap and hot & cold running water partly tiled in 1 area together with the toilet |
| Toilet / Heads: | 2x electric toilet |
| Galley: | U-shape galley |
| Cooker: | 4-burner hob on gas stainless steel cookerhood stainless steel |
| Oven: | Belling gas oven Belling grill |
| Microwave: | present |
| Fridge / Refrigerator: | present 230 Volt |
| Freezer: | Chest freezer 24 Volt |
| Worktop: | HI-MACS composite worktop |
| Washbasin: | stainless steel sink |
| Water tap: | mixer tap with hot & cold running water |
| Entertainment: | flatscreen TV |
| Headroom (approx.): | wheelhouse (approx.) 1,94 m galley (approx.) 2,00 m salon (approx.) 1,98 m ownerscabin (approx.) 2,03 m bathroom / toilet in the front (approx.) 2,01 m aftcabin (approx.) 1,86 m bathroom / toilet aft (approx.) 1,83 m |
| Additional information: | Smeg washing machine / dryer |
Navigation equipment
| Navigation equipment: | Raymarine Ray 54E VHF with DSC Raymarine ST60+ rudder indicator compass window wiper navigation lights horn |
Rigging and sails
| Mast: | lantern mast wooden mast |
| Lowerable: | yes manual |
Equipment
| Anchor equipment: | manual anchor winch anchor chain Spek anchor in hawse-hole |
| Safety: | fire extinguishers life buoys fire blanket |
| Additional information: | hard wooden skylight cover over skylight aluminium gangway |




