Dutch Barge 16.93 Sold
Vision Doeve Brokers
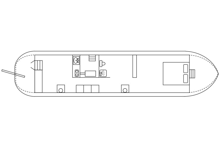
Former inland cargo vessel that has been converted into a Sailing Live Aboard. About two years ago, the vessel was fitted out with double-glazed windows in the galley and the salon which, together with the existing insulation, ensures a comfortable living environment, even on colder days. The solar panels make the ship more sustainable and independent. The aft cabin can be heated by the available wood-burning stove. A pellet stove heats the bathroom and sleeping quarters. An electric heating panel is also available in the sleeping quarters. The spacious interior offers plenty of opportunities to put your own stamp on the interior, creating a unique living experience. In the forecastle there is a large tank which, when connected, can serve as a waste water tank. The staircase at the entrance can be folded to port, allowing access the area below the aft deck. This space can serve as storage or sleeping area. The vessel is registered with the ‘Schepencarrousel’ and therefore uses alternating berths. This offers flexibility for owners without a fixed berth. Take this unique opportunity to live comfortably on board of this beautiful vessel and enjoy a versatile and adventurous life on the water.
More information
General information
| Yard: | Shipyard Appelo & Zonen, NL-Zwartsluis |
| Hull shape: | flatbottom |
| Hull material: | iron/steel |
| Deck material: | steel |
| Superstructure material: | steel |
| Construction method: | riveted new steel is welded deckhouse clipper bow rubbing strake around bulwark bollards |
| Steering system: | tiller attached rudder hardwooden rudder |
| Windows: | hardwood window frames double glazing & single glass stainless steel portholes |
| Displacement (approx.): | maximum allowable displacement 41,364 m³ displacement in empty condition 28,856 m³ displacement 12,508 m³ |
| Airdraft (approx.): | 2,30 m everything down |
| Owner: | Dutch owner |
| Registration: | Dutch registered B-registered Costs for the change of ownership and / eventually deletion are for purchasers amount. |
| Colour / Paint System: | black hull brown bulwark brown superstructure & grey superstructure some overdue maintenance last underwatership treatment 05-2023 |
| Suitable for / as: | suitable as a year round live- aboard recreational vessel inland waterways |
| General information: | Old age clause applicable. |
| Additional information: | straight hull Hull shape is suitable for drying out. Great vessel for cruising on the French canals and rivers. Great vessel for cruising on the European canals and rivers. |
Technical information
| Enginepower: | 62 Hp 45 kW |
| Engine brand: | Vetus Peugeot |
| Revolutions: | 3500 RPM |
| Engine model: | P425 |
| Number of cylinders: | 4 |
| Fuel: | diesel |
| Fuel tank (approx.): | 1x 250 litre stainless steel tank(s) |
| Cooling system: | intercooling wet exhaust |
| Propulsion: | 4 blade propeller greased lubrication of propeller shaft |
| Gearbox: | Paragon hydraulic reduction/ratio 2:1 |
| Heating: | pelletstove & stove on wood 1x radiators = electric |
| Electricity system: | 12 / 24 / 230 Volt 230 Volt shore power connection Victron Blue Power Color Control mainmaster control |
| Batteries: | 1x 62 Ah starter batterie(s) 2x 220 Ah domestic batterie(s) |
| Battery charger: | Victron EasySolar combi inverter/charger 24/3000/70 Victron Blue Smart battery charger 12/4 |
| Earth-leakage breaker: | present |
| Inverter: | Victron EasySolar combi inverter/charger 24/3000/70 |
| Solar panels: | 2x solar panel Victron MPPT charge controller 150/70 |
| Fresh water tank (approx.): | 1x 1000 litre stainless steel tank(s) |
| Water pressure system: | electric water pump |
| Hot water system: | Thermex boiler/water calorifier (230 Volt) 50 litre |
| Holding tank (approx.): | present not connected |
| Diesel waterseparator: | present |
| Engineroom: | well maintained |
| Gas system: | no gas on board |
Accommodation
| Interior: | various materials have been used simple interior see photographs |
| Insulation: | Rockwool |
| Berth: | Forward: 1x 2-pers |
| Lay-out plan (not to scale): | see attachment |
| Bathroom: | shower mixer tap with hot & cold running water in 1 area together with the toilet |
| Toilet / Heads: | hand pumptoilet + Sanibroyeur |
| Galley: | sideways |
| Cooker: | 2-burner hob electric cooker |
| Oven: | Unox electric oven |
| Fridge / Refrigerator: | present 230 Volt |
| Freezer: | small ice compartment |
| Worktop: | wooden worktop |
| Washbasin: | 1x sink |
| Water tap: | hot & cold running water |
| Headroom (approx.): | forecabin (approx.) 1,70 - 1,88 m bathroom / toilet (approx.) 1,85 m corridor / walkthrough (approx.) 1,80 m galley (approx.) 1,86 m salon (approx.) 1,86 m |
| Additional information: | useful as live-aboard washing machine |
Equipment
| Anchor equipment: | manual anchor winch warping drum kedge anchor anchor chain in hawse-hole |
| Safety: | 3 fire extinguishers |
| Additional information: | Survey report of the underwatership is available (05-2023) |




