Klipperaak / Dutch Barge 21.14, ES-TRIN certified Sold
Vision Doeve Brokers
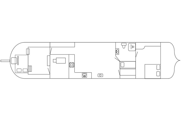
Former sailing inland waterway cargo ship that has been completely converted into a sailing Live Aboard Dutch Barge where the authenticity is still present. Equipped with a spacious aft cabin with headroom with a double bed in the aft. From the cabin there is a corridor to the old cargo hold where the spacious kitchen, equipped with modern equipment, is located in the salon. On the starboard side is the guest cabin with a bunk bed and on the port side is the bathroom. The owner's cabin is located in front of the bathroom and is equipped with a spacious double bed. Unfortunately, the spars and leeboards are not present anymore, but it is of course possible to replace them. For this purpose, the mast fitting is largely present and the sails, the sail winch and leeboard winches are present. Much has been upgraded in the technology, such as a lithium battery pack with a modern control unit, combination inverter/battery charger and an extensive solar panel set available that has more than enough capacity in the summer months to be "off grid". The sellers have also done this for many years. In our opinion, this Dutch Barge Klipperaak Excelsior is a candidate for the “Schepencarrousel” or for making beautiful trips.
More information
General information
| Yard: | Shipyard Peters, NL-Dedemsvaart probably |
| Hull shape: | flatbottom |
| Hull material: | steel |
| Deck material: | steel |
| Superstructure material: | steel steel hatches covers over hold |
| Construction method: | riveted new steel is welded bulwark around rubbing strake wide side decks (gunnels) deckhouse forecastle clipper bow 1 watertight bulkhead(s) |
| Self made: | interior |
| Steering system: | hydraulic wheel attached rudder steel rudder |
| Windows: | bronze portholes single glass hardwood window frames double glazing |
| Displacement (approx.): | maximum allowable displacement 58,223 m³ displacement in empty condition 43,161 m³ displacement 15,062 m³ |
| Ballast (approx.): | present trim ballast |
| Airdraft (approx.): | everything down 2,40 m |
| Owner: | Dutch owner |
| Registration: | Dutch registered B-registered Costs for the change of ownership and / eventually deletion are for purchasers amount. |
| Colour / Paint System: | black hull bordeaux red bulwark white superstructure some overdue maintenance see photographs last underwatership treatment 04-2022 |
| Certificates: | Union Inland Navigation Certificate (ES-TRIN) zone 2 Netherlands zone 3 zone 4 valid until: 04-2029 |
| Suitable for / as: | inland waterways suitable as a year round live- aboard recreational vessel |
| General information: | Old age clause applicable. For sale because of the age of the seller. |
| Additional information: | classic sailing yacht Underwatership is almost fully double plated. Hull shape is suitable for drying out. forepeak with chain locker Great vessel for cruising on the European canals and rivers. Great vessel for cruising on the French canals and rivers. |
Technical information
| Enginepower: | 80 Hp 58 kW |
| Engine brand: | GM Detroit |
| Engine model: | 4.71 |
| Number of cylinders: | 4 |
| Construction year engine: | approximately 1956 |
| Running hours (approx.): | unknown |
| Fuel: | diesel |
| Fuel tank (approx.): | 700 litre 1 steel tank(s) |
| Cooling system: | intercooling dry exhaust insulated exhaust |
| Propulsion: | 3 blade propeller greased lubrication of propeller shaft |
| Gearbox: | Paragon hydraulic reduction/ratio 4,5:1 |
| Heating: | Baxi Roca Gavina 30 GTI central heating combi boiler on diesel & stove on wood |
| Air conditioning: | Zibro air conditioning reversed circle |
| Bow thruster: | hydraulic bow thruster 27 Hp |
| Electricity system: | 24 / 230 Volt 230 Volt shore power connection Victron Digital MultiControl |
| Batteries: | 520 Ah Lithium LiFePO4 domestic batterie(s) set 2x 140 Ah starter batterie(s) Victron battery monitor |
| Battery charger: | Victron MultiPlus combi inverter/charger 24/5000/120 Victron Blue Smart battery charger 24/12 |
| Isolation transformer: | Victron isolation transformer 3600 Watt |
| Earth-leakage breaker: | present |
| Genny: | Europower AC1075QS whisper set 6 kVA 230 Volt 3000 RPM |
| Inverter: | Victron MultiPlus combi inverter/charger 24/5000/120 |
| Solar panels: | 6x solar panel |
| Fresh water tank (approx.): | 2x 750 litre plastic tank(s) |
| Water pressure system: | electric water pump |
| Hot water system: | through the central heating |
| Holding tank (approx.): | 500 litre 1 plastic tank(s) not connected |
| Bilge pump: | present electric pump |
| Gas system: | no gas on board |
| Additional information: | main engine with PTO for the hydraulic |
Accommodation
| Interior: | various materials have been used ceiling with laths (classic) some overdue maintenance see photographs suitable for a long stay on board |
| Insulation: | Rockwool |
| Cabins: | 3 cabins |
| Berth: | owners cabin: 1x 2-pers Starboard cabin: 2x 1-pers Aft: 1x 2-pers |
| Lay-out plan (not to scale): | see attachment |
| Bathroom: | shower cubicle thermostat tap washbasin with mixer tap and hot & cold running water tiled bathroom in 1 area together with the toilet |
| Toilet / Heads: | flush toilet |
| Galley: | L-shape galley |
| Cooker: | 4-burner hob induction cooker cookerhood stainless steel |
| Oven: | electric oven |
| Fridge / Refrigerator: | 2x Liebherr fridge / refrigerator 230 Volt |
| Freezer: | Liebherr freezer 230 Volt |
| Worktop: | hardwooden worktop |
| Washbasin: | stainless steel sink |
| Water tap: | mixer tap with hot & cold running water & Quooker water tap |
| Dishwasher: | Siemens dishwasher |
| Entertainment: | flatscreen TV |
| Headroom (approx.): | cabin (approx.) 1,99 m aftcabin (approx.) 1,40 m corridor / walkthrough (approx.) 1,84 m galley (approx.) 1,76 m salon (approx.) max. 1,88 m cabin (approx) 1,78 m bathroom / toilet (approx.) 1,85 m & 2,25 m ownerscabin (approx.) 1,46 m & 1,85 m |
| Additional information: | washing machine tumble dryer |
Navigation equipment
| Navigation equipment: | Sailor RT2048 VHF Em-Trak A100 Automatic Identification System (AIS) horn navigation lights |
Rigging and sails
| Mast: | no mast |
| Leeboards: | 2x Strikwerda leeboards winch |
| Winches: | Strikwerda sail winch with 3 reels |
| Material of the sails: | Dacron |
| Sails: | mainsail jib yankee |
Equipment
| Anchor equipment: | manual anchor winch kedge anchor anchor chain in hawse-hole |
| Davits: | present |
| Safety: | fire extinguishers life buoys life jackets according to the certification requirements carbon monoxide detector(s) smoke detector(s) |
| Additional information: | 2x skylight Survey report of the underwatership is available 04-2022 |




