Dutch Barge 24.72 with TRIWV Sold
Vision Doeve Brokers
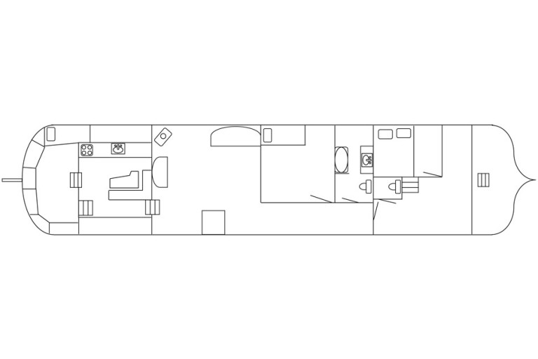
Former inland cargo vessel that was converted into a Live Aboard Dutch Barge in the 1980s and to which continuous improvements have been made. For example, the aft cabin has been completely renovated (marine plywood and epoxy) and the old cargo hold is fully equipped with a steel deck which also has a cockpit with seating. During the renovation, it was taken into account that the Dutch Barge must still be able to be made sailing, so there is still a mast deck and a mast foot. In the aft cabin there is the galley with seating and from there you can go to the aft (furnished as a cabin with 1-persons berth) and forward to the old hold where the cozy living room is located and also 2 more cabins, the bathroom and a spacious workshop. In our eyes a Dutch Barge with which a new owner can start easily, but where things also easily can be changed according to one's own wishes.
More information
General information
| Yard: | Shipyard G.J. van Goor, NL-Meppel |
| Hull shape: | flatbottom |
| Hull material: | iron/steel |
| Deck material: | steel |
| Superstructure material: | steel wooden aftcabin = marine plywood |
| Construction method: | riveted new steel is welded rubbing strake around bulwark around wide side decks (gunnels) deckhouse clipper bow self-draining cockpit 1 watertight bulkhead(s) closed bollard cabinets |
| Steering system: | manual hydraulic steering wheel on steering pedestal hardwooden rudder attached rudder |
| Windows: | double glazing hardwood window frames |
| Displacement (approx.): | maximum allowable displacement 89,916 m³ displacement in empty condition 62,701 m³ displacement 27,215 m³ |
| Ballast (approx.): | present steel & concrete tiles |
| Airdraft (approx.): | everything down 3,10 m |
| Owner: | Dutch owner |
| Registration: | Dutch registered B-registered Costs for the change of ownership and / eventually deletion are for purchasers amount. |
| Colour / Paint System: | black hull white bulwark white superstructure see photographs last underwatership treatment 06-2018 |
| Certificates: | inland waterways certificated (TRIWV / ES-TRIN) zone 2 Netherlands zone 3 zone 4 valid until: 07-2025 |
| Suitable for / as: | inland waterways suitable as a year round live- aboard |
| Additional information: | Specified beam excludes the leeboards. classic lines Hull shape is suitable for drying out. straight hull Great vessel for cruising on the European canals and rivers. Great vessel for cruising on the French canals and rivers. |
Technical information
| Enginepower: | 105 Hp 77 kW |
| Engine brand: | DAF |
| Engine model: | DD575 |
| Number of cylinders: | 6 |
| Construction year engine: | 1968 |
| Running hours (approx.): | unknown |
| Fuel: | diesel |
| Fuel tank (approx.): | 1x 600 litre 1x 500 litre 1x 1400 litre steel tank(s) |
| Cooling system: | closed box cooler |
| Propulsion: | 3 blade propeller greased lubrication of propeller shaft |
| Gearbox: | ZF hydraulic BW30 VL |
| Heating: | ACV central heating combi boiler on diesel & stove on wood with back boiler connected to central heating |
| Electricity system: | 12 / 24 / 230 Volt 230 Volt shore power connection |
| Batteries: | 2x 50 Ah starter batterie(s) Optima Red Top 1x 50 Ah starter batterie(s) generator Optima Red Top 2x 225 Ah domestic batterie(s) |
| Battery charger: | Victron Skylla battery charger 24/50 |
| Earth-leakage breaker: | present |
| Genny: | 8,5 kVA diesel genny 230 Volt 1500 RPM running hours (approx.) 500 |
| Inverter: | Victron Atlas inverter 24/1200 1 inverter 24-12 Volt |
| Solar panels: | 4x solar panel |
| Fresh water tank (approx.): | 2x 250 litre stainless steel tank(s) 1x 1200 litre steel tank(s) |
| Water pressure system: | Speck hydrophore pump |
| Diesel waterseparator: | present |
| Bilge pump: | 2x submersible pump |
| Deck wash pump: | present 230 Volt |
| Gas system: | yes, bottle(s) in bottle box on deck |
| Additional information: | partly LED lightning |
Accommodation
| Interior: | various materials have been used see photographs |
| Insulation: | glass wool Rockwool hard foam plates |
| Cabins: | 3 cabins |
| Berth: | Forward: 1x 2-pers Midships: 1x 1-pers Aft: 1x 1-pers |
| Lay-out plan (not to scale): | see attachment |
| Bathroom: | sitting bath thermostat tap washbasin with hot & cold running water in 1 area together with the toilet |
| Toilet / Heads: | 2x hand pumptoilet |
| Galley: | along ships |
| Cooker: | 4-burner hob stainless steel on gas |
| Oven: | Smev gas oven |
| Fridge / Refrigerator: | present 230 Volt |
| Freezer: | small ice compartment |
| Worktop: | hardwooden worktop |
| Washbasin: | stainless steel sink |
| Water tap: | hot & cold running water |
| Headroom (approx.): | aftcabin (approx.) 2,07 / 1,94 m aftcabin (approx.) 1,53 m salon (approx.) 2,33 / 2,14 m corridor / walkthrough (approx.) 2,14 m cabin (approx) 2,33 / 2,09 m bathroom / toilet (approx.) 2,23 m toilet (approx.) 1,57 m cabin (approx) 2,38 / 2,10 m workshop 1,70 / 2,38 m |
| Additional information: | washing machine tumble dryer useful as live-aboard |
Navigation equipment
| Navigation equipment: | True Heading Carbon Automatic Identification System (AIS) Shipmate RS 8300 VHF navigation lights horn |
Rigging and sails
| Mast: | no mast |
| Leeboards: | 2 hardwooden leeboards 2x leeboards winch |
Equipment
| Anchor equipment: | manual anchor winch Klipp anchor in hawse-hole warping drum |
| Searail / Pulpit: | searail on bulwark |
| Dinghy: | Linder 410 Fishing aluminum dinghy |
| Davits: | present |
| Safety: | inflatable life jackets fire extinguishers life buoys according to the certification requirements |
| Additional information: | Taking over of the current leisure rental mooring can be discussed with the port owner. sundeck Survey report of the underwatership is available (06-2018) |




