Motortjalk 17.70 CWOC Sold
Vision Doeve Brokers
Former inland cargo ship that has been completely professionally refurbished into a cruising Live Aboard Dutch Barge / houseboat. This Dutch Barge has a lot of interior volume and even has a spacious open cockpit which is easily accessible from the salon. The interior is of a yacht quality and is in a good condition. There are 2 cabins, a bathroom, a spacious wheelhouse with a comfortable fixed settee with table, a salon with an open kitchen with a fixed settee with table. Under the cockpit floor is a technical room and the battery pack. The engine room is neat and equipped with a solid DAF 615 diesel engine and a whisper generator set. The hydraulic bow thruster rotates 360 degrees and together with the Becker rudder it is a very maneuverable Dutch Barge which is very suitable for the inland waterways of Belgium, France, the Netherlands and Germany.
More information
General information
| Yard: | Shipyard NL-Hoogeveen Interior: Van der Meijden, Carpenters, NL-Hardinxveld-Giessendam |
| Rebuilt year: | interior 1988 |
| Designer / Architect: | Interior: Van der Meijden, Carpenters, NL-Hardinxveld-Giessendam |
| Hull shape: | flatbottom |
| Hull material: | iron steel |
| Deck material: | steel teak in cockpit |
| Superstructure material: | steel |
| Construction method: | rubbing strake around bulwark around wide side decks (gunnels) riveted hull new steel is welded bollards open cockpit |
| Steering system: | manual hydraulic steering wheel steel rudder Becker rudder |
| Windows: | aluminium windows frames teak wooden outside doors |
| Displacement (approx.): | empty 46,094 m³ loaded 56,941 m³ displacement 10,847 m³ |
| Ballast (approx.): | 2000 kg tiles trim ballast |
| Airdraft (approx.): | 2,50 m |
| Owner: | British owner |
| Registration: | British registered (SSR) |
| Colour / Paint System: | blue hull white superstructure two component system 2003 sandblasted by A.J. Den Breejen en Zonen, NL-Dordrecht last underwatership treatment 06-2022 |
| Suitable for / as: | suitable for bigger waterways inland waterways suitable as a year round live- aboard |
| General information: | offered in the condition that she is in (As is Where is) |
| Additional information: | Hull shape is suitable for drying out. beautiful sheer Underwatership is almost fully double plated. roomy foredeck straight hull Great vessel for cruising on the European canals and rivers. Great vessel for cruising on the French canals and rivers. |
Technical information
| Enginepower: | 138 Hp 101 kW |
| Engine brand: | DAF |
| Revolutions: | 2200 RPM |
| Engine model: | DD 615 |
| Number of cylinders: | 6 |
| Construction year engine: | 1968 |
| Overhaul engine: | 1993 reconditioned installed |
| Running hours (approx.): | 1000 after overhaul |
| Fuel: | diesel |
| Fuel tank (approx.): | 1x 1100 litre steel tank(s) |
| Cooling system: | intercooling wet exhaust |
| Propulsion: | 3 blade propeller greased lubrication of propeller shaft greasing device |
| Gearbox: | PRM hydraulic reduction/ratio 3:1 |
| Speed (approx.): | 10 km/hour cruising speed at 1400 RPM |
| Heating: | Kabola B12 Tap central heating combi boiler on diesel radiators |
| Engine instruments: | yes |
| Bow thruster: | hydraulic bow thruster 360 degrees turnable proportional |
| Electricity system: | 12 Volt 24 Volt 230 Volt 230 Volt shore power connection professionally installed system |
| Batteries: | 10x 240 Ah 1x 240 Ah 1x 240 |
| Battery charger: | Victron Phoenix battery charger 12/50 Victron Atlas combi inverter/charger 24/1800/35 |
| Genny: | Vetus Mitsubishi whisper set (2009) 6,2 kVA, 230 Volt 3000 RPM 40 on the hour counter (approx.) wet exhaust |
| Alternator: | 1x 12 Volt 1x 24 Volt |
| Inverter: | Victron Atlas combi inverter/charger 24/1800/35 Mastervolt Mass Sine inverter 12/2000 |
| Fresh water tank (approx.): | 3000 litre 1x steel tank(s) |
| Water pressure system: | hydrophore pump |
| Hot water system: | through the central heating |
| Holding tank (approx.): | not present, enough space to build-in |
| Diesel waterseparator: | Separ diesel waterseparator |
| Engineroom: | very well maintained see photographs |
| Bilge pump: | electric pump |
| Deck wash pump: | electric pump |
| Gas system: | yes, bottle(s) in bottle box |
| Additional information: | main engine with PTO for the hydraulic LED lightning |
Accommodation
| Interior: | teak interior teak wooden floor(s) with ashen carpet on the floor(s) perfectly, see photographs |
| Insulation: | for a large part |
| Cabins: | 2 cabins |
| Berth: | Forward: 2x 1-pers. Forward: 1x 2-pers. owners cabin: 1x 2-pers. |
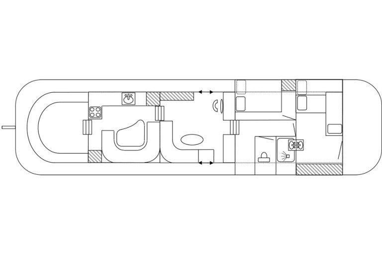
| Lay-out plan (not to scale): | see attachment |
| Bathroom: | washbasin with mix tap and hot & cold running water shower partly tiled in 1 area together with the toilet |
| Toilet / Heads: | hand pumptoilet |
| Galley: | along ships |
| Cooker: | 4-burner hob on gas |
| Oven: | microwave/oven |
| Fridge / Refrigerator: | Coolmatic fridge / refrigerator |
| Freezer: | small ice compartment |
| Worktop: | formica worktop |
| Washbasin: | stainless steel sink |
| Water tap: | mixer tap with hot & cold running water |
| Headroom (approx.): | foreship (approx.) 2,05 m corridor / walkthrough (approx.) 2,02 m ownerscabin (approx.) 2,02 m bathroom / toilet (approx.) 1,80 m wheelhouse (approx.) 1,82 m aftcabin (approx.) 2,00 m |
| Additional information: | useful as live-aboard very well maintained |
Navigation equipment
| Navigation equipment: | Raymarine Ray 55E VHF with DSC rudder indicator horn 2x window wiper |
Rigging and sails
| Mast: | wooden mast |
| Lowerable: | yes manual |
Equipment
| Anchor equipment: | hydraulic anchor winch 2x warping drum 2x Klipp anchor 2x anchor chain in hawse-hole |
| Outdoor cushions: | cockpit cushion(s) |
| Bimini: | bimini top above cockpit |
| Cockpit tent: | present Stainless steel frame |
| Safety: | fire extinguishers fire blanket life buoys inflatable life jackets |
| Additional information: | 2 foldable Bike(s) The ship was completely gutted (only the hull is old) and then rebuilt. Before refitting the interior, the inside of the hull was thoroughly treated. Survey report of the underwatership is available (06-2022) |




