Dagpassagiersschip 250 pers Niet meer beschikbaar
Visie Doeve Makelaars
Dit stoere binnenvaart passagiersschip is een ware blikvanger op het water. Met een maximale capaciteit van 250 gasten biedt deze boot een ongeëvenaarde ervaring voor zowel particulieren als zakelijke evenementen. Met binnen 110 zitplaatsen en nog eens 30 zitplaatsen buiten, kunnen de gasten genieten van de gezellige binnenruimte met boven een panoramisch uitzicht op het water. Dit passagiersschip is ook volledig invalidegeschikt, zodat iedereen mee kan varen. Een belangrijk aspect van deze boot is dat deze is uitgerust met een volledig functionele keuken, waardoor er heerlijke maaltijden kunnen worden geserveerd. Bovendien beschikt ze over twee goed onderhouden toiletgroepen voor het comfort van onze gasten. Het schip heeft een zeer zeldzame Biesbosch vergunning die door de nieuwe eigenaar over te nemen is. Ook overname van de huidige exploitatie is bespreekbaar.
Meer informatie
Algemene informatie
| Werf: | NV Scheepswerf G. Bijlsma & Zn, NL- Wartena |
| Romp vorm: | platbodem |
| Romp materiaal: | staal |
| Dek materiaal: | staal |
| Opbouw materiaal: | staal |
| Bouwwijze: | geklonken en gelast berghout rondom bulbsteven 3 waterdicht(e) schot(ten) dichte bolderkasten platte spiegel wide body opbouw |
| Besturing: | hydraulisch elektrisch hydraulische besturing noodbesturing 2x stalen roer |
| Ramen: | aluminium raamprofielen |
| Waterverplaatsing (ca.): | maximum toelaatbare waterverplaatsing 106,876 m³ waterverplaatsing in ledige toestand 81,310 m³ verplaatsing 25,566 m³ |
| Ballast (ca.): | trim ballast 500 kg |
| Doorvaart hoogte (ca.): | 5,05 m Bovenzijde stuurhut gaat elektrisch omlaag. |
| Eigenaar: | Nederlandse eigenaar |
| Registratie: | Nederlands geregistreerd B-Geregistreerd Kosten voor het over-/ en eventueel uitschrijven zijn voor rekening van de koper. |
| Kleur / Conservering: | witte romp blauwe boeiing witte opbouw zie foto's laatste onderwaterschip behandeling 12-2023 |
| Certificaten: | Communautair Binnenvaartcertificaat voor Binnenschepen (CBB) zone 2 Nederland zone 3 zone 4 Waal, Lek & NL Rijn geldig tot: 23-12-2028 |
| Geschikt voor / als: | binnenvaart geschikt voor ruime wateren pannenkoeken restaurant passagiersschip restaurant gastronomie |
| Algemene informatie: | Know-how en informatie over de vaargebieden kunnen worden doorgegeven. Levering in overleg. Overname van de huidige exploitatie is bespreekbaar. Eventuele transacties dienen ter goedkeuring voorgelegd te worden aan opdrachtgever c.q. eigenaar van het vaartuig. Tot deze goedkeuring verleend is, zijn alle uitgebrachte aanbiedingen geheel vrijblijvend. goede vaareigenschappen |
| Aanvullende informatie: | 250 dag passagiers De gebruikte technieken zijn afkomstig uit de beroepsvaart. De relevante BTW is over de vraagprijs verschuldigd indien het vaartuig door een consument of door een in Nederland gevestigd bedrijf wordt gekocht (mits het een Nederlandse verkoper betreft). Verkoop op BTW 0% is eventueel mogelijk indien de koper aan de daarvoor geldende BTW richtlijnen voldoet. voorpiek met kettingbak ruim bovendek ruim achterdek Zeer geschikt om de Europese kanalen en rivieren te bevaren. |
Technische informatie
| Motorvermogen: | 255 pk 187 kW |
| Motor merk: | Cummins |
| Toerental: | 1800 RPM |
| Motortype: | 6CTA8.3-M1 |
| Cilinderaantal: | 6 |
| Bouwjaar motor: | 2003 in bedrijf gesteld |
| Draaiuren (ca.): | 7500 op de urenteller (11-2023) |
| Brandstof: | diesel |
| Brandstoftank (ca.): | 1x 4000 liter 1x 800 liter stalen tank(s) |
| Koelingsysteem: | gesloten beunkoeler droge uitlaat geïsoleerde uitlaat |
| Voortstuwing: | 7 blads schroef verstelbare schroef vetsmeerapparaat |
| Koppeling: | Twin Disc MG5061SC hydraulisch (2022) reductie 3:1 |
| Snelheid (ca.): | 14 km/uur kruissnelheid bij 1600 RPM 15 km/uur topsnelheid |
| Verwarming: | Unical centrale verwarming op diesel |
| Motorinstrumenten: | aanwezig alarm systeem |
| Boegschroef: | boegschroef via dieselmotor 360 graden draaibaar DAF 475 85 pk |
| Hekschroef: | proportioneel |
| Stroomvoorziening: | 12 / 24 / 230 / 400 Volt 230 Volt walstroom aansluiting 400 Volt walstroom aansluiting professioneel geinstalleerd systeem |
| Accu´s: | 2x 230 Ah start accu(s) (2023) 2x 230 Ah service accu(s) 1x 180 Ah start accu(s) generator 2x 240 Ah boegschroef accu(s) |
| Acculader: | Mastervolt Mass acculader 24/50 Batium acculader Mastervolt Mass acculader 24/25 |
| Laadstroomverdeler (scheidingsdiode): | aanwezig |
| Aardlek schakelaar: | aanwezig |
| Generator: | Cummins / Stamford diesel generator 42,5 kVA 230/400 Volt 1500 RPM 8700 draaiuren (ca.) (11-2023) |
| Omvormer: | Mastervolt Mass Sine omvormer 24/500 |
| Drinkwatertank (ca.): | 1x 1500 liter 1x 2000 liter stalen tank(s) |
| Waterdruksysteem: | 2x hydrofoor |
| Warm watersysteem: | Close In boiler (230 Volt) |
| Vuilwatertank (ca.): | aanwezig |
| Machinekamer: | geluids geisoleerde motorruimte zie foto's |
| Lens/bilgepomp: | aanwezig 230 Volt |
| Dekwaspomp: | aanwezig 230 Volt |
| Gas systeem: | ja, fles(sen) in dekkist gaskeur certificaat |
| Aanvullende informatie: | lucht compressor elektrisch motorbedienings systeem deels LED verlichting |
Accommodatie
| Betimmering: | zie foto's in goede staat van onderhoud 2022 restyled |
| Isolatie: | aanwezig |
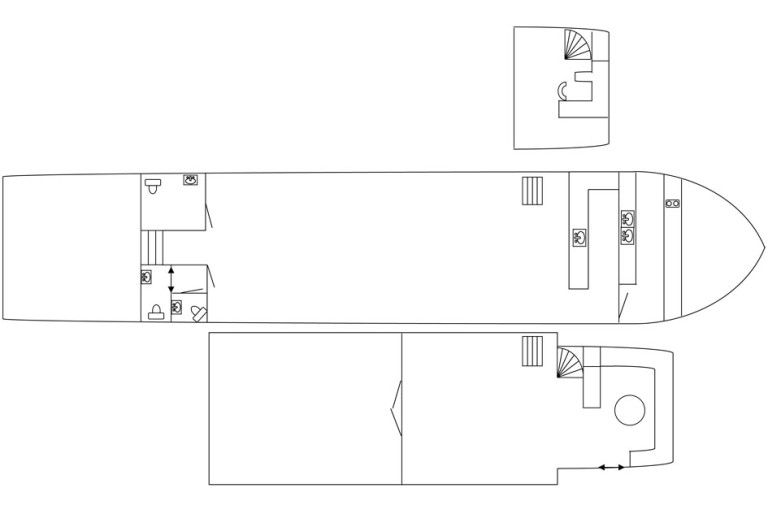
| Plattegrond (niet op schaal): | zie bijlage |
| Toilet: | dames toilet = invaliden geschikt wasbak koud stromend water toilet & heren toilet 2x toilet 2x wasbak koud stromend water |
| Kombuis / keuken: | dwarsscheeps professioneel uitgerust kombuis |
| Kooktoestel: | 2-pits kooktoestel op gas roestvast staal afzuigkap roestvast staal |
| Oven: | elektrische oven roestvast staal |
| Koelkast: | 1x Scancool koelkast 1x flessen koelkast 1x koeltafel |
| Vriezer: | 2x vriezer |
| Werkblad: | roestvast stalen werkblad |
| Wasbak: | 2x roestvast stalen wasbak |
| Waterkraan: | mengkraan met warm & koud stromend water |
| Afwasmachine: | Hobart Baraid afwasmachine |
| Entertainment: | JBL binnen en buiten speakers omroep/muziekinstallatie |
| Stahoogte (ca.): | kombuis / keuken (ca.) 2,06 m bar (ca.) 1,99 m salon (ca.) 1,94 m toilet (ca.) 1,91 m salon boven (ca.) 1,90 m stuurhut (ca.) 1,86 m |
| Aanvullende informatie: | Imperial roestvast stalen friteuse (gas /Gaz) 1x traplift 1x lift 1x Nescafe koffiemachine 1x koffiemachine 197 pass inventaris |
Navigatieapparatuur
| Navigatie apparatuur: | Skanti marifoon IT Holland elektrisch kompas Oceansat Automatisch Identificatie Systeem (AIS) rivier automatische piloot wegafhankelijk sturen intercom Navmate windsnelheidmeter Alphatron roerstandaanwijzer Alphatron echolood / dieptemeter marble ms715B tachograaf camera systeem clinometer Furuno RHRS-2001R daglicht radar Sperry marifoon blauw bord met knipperlicht hoorn navigatieverlichting Wings 5 pro kaartplotter ruitenwisser zoeklicht zwaailicht |
Tuigage en zeilen
| Mast: | aluminium mast & radarmast |
| Strijkbaar: | ja handmatig |
Uitrusting
| Ankergerei: | handankerlier 2x klipanker 2x ankerketting in kluisgat verhaalkop |
| Bimini: | Harmonica bimini met zeildoek, elektrisch te openen en te sluiten. |
| Reling / Preekstoel: | reling rondom achterdek |
| Bijboot: | aanwezig kunststof |
| Davits: | aanwezig |
| Veiligheid: | Automatische Externe Defibrillator (AED) brandblussers reddingsboeien reddingsvesten brandalarmsysteem automatische brandblusinstallatie in motorruimte volgens de certificering-eisen |
| Aanvullende informatie: | dekverlichting Keuringsrapport van het onderwaterschip is aanwezig (12-2023) 2x aluminium loopplank stuurstoel zonnedek Overname van een goed renderend bedrijf is eventueel in overleg bespreekbaar. |




