Motortjalk 15.35 Verkocht
Afmetingen (m):
15.35 x 3.60 x 0.95
Ref.nr.:
230702
Ligplaats:
Omgeving van Roermond
Bouwjaar:
1908
Materiaal:
staal
Visie Doeve Makelaars
Voormalig binnenvaart vrachtschip dat volledig is heringericht tot een Varend Woonschip annex recreatievaartuig. Voorzien van een boegschroef en een hydraulisch stuurwerk waardoor het manoeuvreren zeer eenvoudig is. Met de zonnepanelen, de generatorset en de omvormer is het schip zelfs volledig selfsupporting. De doorvaarthoogte van slechts ca. 2,50 meter geeft de eigenaren een zeer groot vaargebied tot en met het Canal du Midi in Frankrijk of tot en met de Donau maar ook voorbij Berlijn behoort tot de mogelijkheden. Het achterdek / kuip is vanuit de stuursalon zeer goed toegankelijk middels schuifdeuren. In onze ogen een zeer goed schip om de Europese waterwegen te ontdekken of om aan boord te gaan wonen.
Meer informatie
Algemene informatie
| Werf: | Scheepswerf Barkmeijer, NL-Enumatil |
| Romp vorm: | platbodem |
| Romp materiaal: | staal |
| Dek materiaal: | staal |
| Opbouw materiaal: | staal |
| Bouwwijze: | geklonken nieuw staal is gelast berghout rondom boeiing rondom |
| Besturing: | hydraulisch stuurwiel aangehangen roer |
| Ramen: | aluminium raamprofielen teakhouten buitendeuren enkel glas & messing patrijspoorten dubbel glas |
| Waterverplaatsing (ca.): | 25 ton |
| Doorvaart hoogte (ca.): | 2,50 m |
| Eigenaar: | Duitse eigenaar |
| Registratie: | Duits geregistreerd |
| Kleur / Conservering: | zwarte romp witte romp bordeaux rode boeiing witte opbouw zie foto's |
| Certificaten: | niet certificaat plichtig |
| Geschikt voor / als: | binnenwateren recreatie vaartuig |
| Aanvullende informatie: | Onderwaterschip is vrijwel volledig gedubbeld. Opgegeven lengte is over de stevens. voorpiek met kettingbak Zeer geschikt om de Europese kanalen en rivieren te bevaren. Zeer geschikt om in Frankrijk de kanalen en rivieren te bevaren. |
Technische informatie
| Motorvermogen: | 72 pk 53 kW |
| Motor merk: | Perkins |
| Toerental: | 1500 RPM |
| Motortype: | 4.236 |
| Cilinderaantal: | 4 |
| Draaiuren (ca.): | 5250 op de urenteller |
| Brandstof: | diesel |
| Brandstoftank (ca.): | 3000 liter 1 stalen tank(s) |
| Koelingsysteem: | interkoeling natte uitlaat |
| Voortstuwing: | 3 blads schroef vetgesmeerde schroefas |
| Koppeling: | Paragon hydraulisch |
| Verwarming: | 1x kachel op hout 1x Reflex potkachel op diesel |
| Boegschroef: | Rimex elektrische boegschroef 8 pk 24 Volt |
| Stroomvoorziening: | 12 / 24 / 230 Volt 230 Volt walstroom aansluiting |
| Accu´s: | 2x 180 Ah service accu(s) 2x 92 Ah start accu(s) 2x 230 Ah boegschroef accu(s) Victron accu monitor |
| Acculader: | Victron MultiPlus combi omvormer/lader 24/3000/70 GBC 100 |
| Aardlek schakelaar: | aanwezig |
| Generator: | Kubota diesel generator 13 kVA 230/400 Volt 1500 RPM |
| Omvormer: | Victron MultiPlus combi omvormer/lader 24/3000/70 |
| Zonnepanelen: | 4x 250 Watt OutBack laadregelaar |
| Drinkwatertank (ca.): | 2000 liter 1 stalen tank(s) |
| Waterdruksysteem: | hydrofoor |
| Warm watersysteem: | Isotemp boiler via 230 Volt en motor koelsysteem |
| Vuilwatertank (ca.): | 180 liter |
| Diesel waterseparator: | 2x Separ diesel waterseparator |
| Lens/bilgepomp: | elektrische pomp |
| Gas systeem: | ja, fles(sen) in gasbun gaskeur certificaat Truma elektrische afsluiter |
Accommodatie
| Betimmering: | diverse materialen zijn gebruikt houten vloer(en) zie foto's |
| Isolatie: | gedeeltelijk |
| Hutten: | 1 hut |
| Slaapplaats / Kooi: | hut: 1x 2-pers Salon: 1x 1-pers Stuurhut: 1x 1-pers |
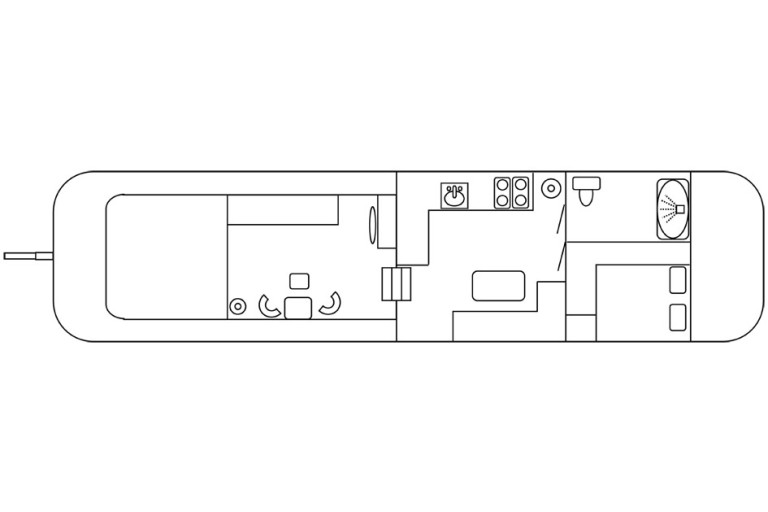
| Plattegrond (niet op schaal): | zie bijlage |
| Badkamer: | zitbad met douche in 1 ruimte tezamen met het toilet |
| Toilet: | spoeltoilet |
| Kombuis / keuken: | L-vorm kombuis |
| Kooktoestel: | 2-pits kooktoestel op gas 2-pits kooktoestel inductie |
| Oven: | elektrische oven |
| Koelkast: | aanwezig |
| Vriezer: | vriesvakje |
| Werkblad: | kunststof werkblad |
| Wasbak: | roestvast stalen wasbak |
| Waterkraan: | mengkraan met warm & koud stromend water |
| Entertainment: | flatscreen TV |
| Stahoogte (ca.): | stuurhut (ca.) 1,87 / 1,76 m salon (ca.) 1,86 / 1,82 m badkamer / toilet (ca.) 1,64 m hut (ca.) 1,83 m |
| Aanvullende informatie: | inventaris |
Navigatieapparatuur
| Navigatie apparatuur: | kompas Humminbird 150SX fishfinder clinometer navigatieverlichting zoeklicht hoorn Cobra hand marifoon 2x ruitenwisser |
Tuigage en zeilen
| Mast: | lantaarn mast hout |
| Strijkbaar: | ja handmatig |
Uitrusting
| Ankergerei: | handankerlier klipanker ankerketting in kluisgat |
| Bimini: | aanwezig |
| Zwemtrap: | aanwezig |
| Veiligheid: | 2x reddingsboei |
| Aanvullende informatie: | aluminium loopplank Keuringsrapport van het onderwaterschip is aanwezig (11-2022) zonnedek |




