Spits Varend Woonschip met Rijn certificaat Verkocht
Visie Doeve Makelaars
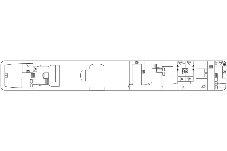
Voormalig binnenvaart vrachtschip dat speciaal voor de Franse kanalen is gebouwd. Vervolgens is het schip omgebouwd tot een Varend Woonschip. De huidige eigenaren hebben haar meer dan 10 jaar geleden gekocht en het schip zeer grondig onder handen genomen. Ze is onder andere voorzien van nieuw en modern sanitair, een ruime kwaliteitskeuken, een ruimere stuurhut met aluminium zakbare bovenzijde maar de oude schipperswoning is grotendeels in takt gebleven en deze is prachtig. Het schip is zeer ruim opgezet met in het vooronder een woning voor de schipper of matroos, in het oude omgebouwde scheepsruim bevinden zich 2 gastenhutten met en-suite badkamers, de keuken en een riante salon vanwaar men naar de stuurhut kan. Van de stuurhut komt u in de achterroef met aldaar de eigenaarshut met en-suite badkamer. Aan dek is er zeer veel ruimte beschikbaar met zelfs een op afstand te zakken bimini en een autokraan. In onze ogen een uitgelezen kans om een schip met deze mogelijkheden, uitrusting en kwaliteit te kopen.
Meer informatie
Algemene informatie
| Werf: | Scheepswerf Van Garsse, B-Moerbeke-Waes |
| Romp vorm: | platbodem |
| Romp materiaal: | staal |
| Dek materiaal: | staal |
| Opbouw materiaal: | staal aluminium bovenzijde van de stuurhut |
| Bouwwijze: | geklonken nieuw staal is gelast berghout achterroef wide body opbouw 4 waterdicht(e) schot(ten) |
| Besturing: | hydraulisch stuurbekrachtiging stuurwiel & elektrische besturing weg afhankelijk sturen |
| Ramen: | aluminium raamprofielen aluminium buiten deuren dubbel glas in stuurhut |
| Waterverplaatsing (ca.): | 112,800 m³ |
| Ballast (ca.): | aanwezig staal |
| Doorvaart hoogte (ca.): | 4,20 m 3,35 m stuurhut in laagste positie Bovenzijde stuurhut gaat hydraulisch omlaag. |
| Eigenaar: | Amerikaanse eigenaar |
| Registratie: | Nederlands geregistreerd B-Geregistreerd Kosten voor het over-/ en eventueel uitschrijven zijn voor rekening van de koper. |
| Kleur / Conservering: | grijze romp blauwe striping witte opbouw in goede staat van onderhoud zie foto's laatste onderwaterschip behandeling 11-2020 |
| Certificaten: | Communautair Binnenvaartcertificaat voor Binnenschepen (CBB) zone R (Rijn) zone 2 Nederland zone 3 zone 4 geldig tot: 01-2028 |
| Geschikt voor / als: | binnenvaart geschikt voor bewoning geschikt voor charter & recreatie vaartuig |
| Aanvullende informatie: | De gebruikte technieken zijn afkomstig uit de beroepsvaart. ruim bovendek Zeer geschikt om de Europese kanalen en rivieren te bevaren. Zeer geschikt om in Frankrijk de kanalen en rivieren te bevaren. |
Technische informatie
| Motorvermogen: | 200 pk 147 kW |
| Motor merk: | GM Detroit |
| Toerental: | 1800 RPM |
| Motortype: | 671 |
| Cilinderaantal: | 6 |
| Draaiuren (ca.): | onbekend |
| Brandstof: | diesel |
| Brandstoftank (ca.): | 2x 1100 liter wit stalen tank(s) 2x 700 liter rood roestvast stalen tank(s) |
| Koelingsysteem: | gesloten koelpijpen droge uitlaat geïsoleerde uitlaat |
| Voortstuwing: | 3 blads schroef vetgesmeerde schroefas vetsmeerapparaat |
| Koppeling: | Twin Disc hydraulisch |
| Snelheid (ca.): | 10 km/uur kruissnelheid bij 1500 RPM 13 km/uur topsnelheid |
| Verwarming: | Pluton Atlantic centrale verwarming op diesel & via airco unit |
| Air conditioning: | Daikin air conditioning reversed circle |
| Stroomvoorziening: | 24 / 230 / 400 Volt 400 Volt walstroom aansluiting & 230 Volt walstroom aansluiting Victron Digital Multi Control |
| Accu´s: | Victron 1500 Ah tractie accu set (12x 2 Volt) 2x 220 Ah Victron AGM start accu(s) 1x 60 Ah start accu(s) generator Victron accu monitor |
| Acculader: | 3x Victron Quattro combi omvormer/lader 24/3000/70 Victron Blue Power acculader 24/15 CTEK MXS 5.0 acculader 12/5 |
| Scheidingstransformator: | Victron scheidingstransformator 3600 Watt |
| Aardlek schakelaar: | aanwezig |
| Generator: | Cummins Onan fluisterset (2015) 16,9 kVA 230/400 Volt 1500 RPM 950 draaiuren (ca.) |
| Omvormer: | 3x Victron Quattro combi omvormer/lader 24/3000/70 |
| Zonnepanelen: | 12x zonnepaneel 2x Victron BlueSolar MPPT laadregelaar 150/70 |
| Drinkwatertank (ca.): | 1x 4500 liter stalen tank(s) |
| Waterdruksysteem: | hydrofoor |
| Warm watersysteem: | boiler (230 Volt) 200 liter |
| Machinekamer: | geluids geisoleerde motorruimte goed onderhouden schone motorruimte zie foto's |
| Lens/bilgepomp: | aanwezig elektrische pomp |
| Dekwaspomp: | dompelpomp |
| Gas systeem: | geen gas aan boord |
| Aanvullende informatie: | LED verlichting |
Accommodatie
| Betimmering: | in goede staat van onderhoud gipsplaten wit geschilderd achterroef: origineel prachtig zie foto's |
| Isolatie: | hardschuim isolatieplaten steenwol polystyreen |
| Hutten: | 3 hutten & 1 bemannings hut(ten) |
| Slaapplaats / Kooi: | Eigenaars hut: 1x 2-pers Gasten hut(ten): 1x 2-pers Gasten hut(ten): 1x 2-pers Bemanningshut(ten): 1x 2-pers & 1x 1-pers |
| Plattegrond (niet op schaal): | zie bijlage |
| Badkamer: | eigenaarshut: En Suite douchecabine thermostaat kraan wasbak met mengkraan en warm & koud stromend water in 1 ruimte tezamen met het toilet 2x gastenhut(ten): En Suite douchecabine thermostaat kraan wasbak met mengkraan en warm & koud stromend water in 1 ruimte tezamen met het toilet bemanningsverblijf: douche mengkraan met warm & koud stromend water wasbak met warm & koud stromend water in 1 ruimte tezamen met het toilet |
| Toilet: | 4x toilet |
| Kombuis / keuken: | U-vorm kombuis |
| Kooktoestel: | 5-pits kooktoestel inductie afzuigkap roestvast staal |
| Oven: | Siemens elektrische oven & grill |
| Magnetron: | Siemens magnetron |
| Koelkast: | Bosch Amerikaanse koelkast/vriezer combinatie met vriezer & water- en ijsdispenser EuroCave wijn koelkast |
| Vriezer: | combinatie met de koelkast |
| Werkblad: | hardstenen werkblad |
| Wasbak: | roestvast stalen wasbak |
| Waterkraan: | mengkraan met warm & koud stromend water |
| Afwasmachine: | Siemens afwasmachine |
| Entertainment: | flatscreen TV |
| Stahoogte (ca.): | stuurhut (ca.) 2,04 / 1,81 m salon (ca.) 2,20 m kombuis / keuken (ca.) 2,19 m gang / corridor (ca.) 2,17 m 2x gastenhut (ca.) 2,17 m 2x badkamer / toilet (ca.) 2,17 m eigenaarshut (ca.) 2,02 m badkamer / toilet achter (ca.) 1,88 m bemanningshut (ca.) 2,06 m |
| Aanvullende informatie: | Het schip wordt geleverd zonder de privé bezittingen zoals meubels, kleding, illustraties en gereedschap. wasmachine wasdroger |
Navigatieapparatuur
| Navigatie apparatuur: | Sailor RT144B marifoon Radio Zeeland Euro 500 bochtaanwijzer Radio Zeeland Euro 500 roerstandaanwijzer Radio Zeeland Euro 500/600 rivier automatische piloot Furuno Universal Automatisch Identificatie Systeem (AIS) blauw bord met knipperlicht 2x ruitenwisser navigatieverlichting hoorn hand marifoon |
Tuigage en zeilen
| Mast: | lantaarn mast & antennebeugel aluminium |
| Strijkbaar: | ja handmatig |
Uitrusting
| Ankergerei: | elektrisch ankerlier 2x klipanker 2x ankerketting in kluisgat verhaalkop Achter: handankerlier klipanker ankerketting in kluisgat verhaalkop |
| Bimini: | bimini zonnetent hydraulisch zakbaar |
| Zwemtrap: | aanwezig aluminium |
| Reling / Preekstoel: | reling rondom bovendek |
| Bijboot: | aanwezig kunststof |
| Veiligheid: | brandblussers reddingsboeien reddingsvesten volgens de certificering-eisen rookmelder(s) kluis |
| Aanvullende informatie: | afdekkleden over koekoeken aluminium afstandhouders aluminium loopplank hydraulische kraan 1500 kg @ 7,00 m dekverlichting Keuringsrapport van het onderwaterschip is aanwezig (11-2020) stuurstoel zonnedek BBQ |




