Spits Varend Woonschip 30.53 met UBC
Visie Doeve Makelaars
Voormalig binnenvaart vrachtschip dat in het verleden vooral in Frankrijk en België tot eind jaren 80 als vrachtschip voor droge lading is ingezet. Daarna is het schip lange tijd verlaten waarna ze is ingekort en als restaurantschip is omgebouwd. De huidige eigenaar heeft het schip vervolgens in 2019 gekocht en omgebouwd tot een Varend Woonschip, charterschip en B&B, dat in Frankrijk als zodanig wordt ingezet. Daarvoor is het ruim volledig leeg gehaald en opnieuw opgebouwd en is de achterroef volledig heringericht waarmee er in totaal 3 hutten in het schip zijn gerealiseerd die elk een eigen en suite badkamer hebben. Het oude ruim is toegankelijk vanaf het dek middels een ruime trap. Aan dek bevindt zich een ruim zonnedek dat is voorzien van een zonnetent. Dit Varend Woonschip is zeer geschikt om aan boord te gaan wonen en daarbij een B&B te runnen of om de achterroef te verhuren of als kleinschalig charterschip in te zetten.
Meer informatie
Algemene informatie
| Werf: | Scheepswerf De la Meuse, F-Givet |
| Werf verbouw: | Scheepswerf Meuse & Sambre, B-Beez (Namur) in eigen beheer afgebouwd |
| Verbouwjaar: | 2019/2020 |
| Romp vorm: | platbodem |
| Romp materiaal: | staal |
| Dek materiaal: | staal |
| Opbouw materiaal: | staal hardhouten bovenzijde van de stuurhut |
| Bouwwijze: | geklonken nieuw staal is gelast achterroef 5 waterdicht(e) schot(ten) |
| Besturing: | hydraulisch stuurwiel |
| Ramen: | messing patrijspoorten houten raamprofielen hardhouten buiten deuren |
| Waterverplaatsing (ca.): | maximum toelaatbare waterverplaatsing 153,204 m³ waterverplaatsing in ledige toestand 112,355 m³ verplaatsing 40,849 m³ |
| Ballast (ca.): | betonblokken |
| Doorvaart hoogte (ca.): | 3,50 m met afgebroken stuurhut 2,80 m |
| Eigenaar: | Italiaanse eigenaar |
| Registratie: | Frans geregistreerd |
| Kleur / Conservering: | zwarte romp red / brown boeiing red / brown opbouw laatste onderwaterschip behandeling 11-2023 |
| Certificaten: | F- Unie Binnenschipcertificaat (UBC) zone 3 zone 4 geldig tot: 10-2033 |
| Geschikt voor / als: | binnenwateren geschikt voor bewoning geschikt voor charter / B&B recreatie vaartuig |
| Algemene informatie: | Eventuele transacties dienen ter goedkeuring voorgelegd te worden aan opdrachtgever c.q. eigenaar van het vaartuig. Tot deze goedkeuring verleend is, zijn alle uitgebrachte aanbiedingen geheel vrijblijvend. Levering in overleg. Overname van de huidige exploitatie is bespreekbaar. |
| Aanvullende informatie: | ruim bovendek stuurhuis Zeer geschikt om de Europese kanalen en rivieren te bevaren. Zeer geschikt om in Frankrijk de kanalen en rivieren te bevaren. |
Technische informatie
| Motorvermogen: | 150 pk 110 kW |
| Motor merk: | Baudouin |
| Toerental: | 1100 RPM |
| Motortype: | DK6 |
| Cilinderaantal: | 6 |
| Brandstof: | diesel |
| Brandstoftank (ca.): | 2x 1000 liter 1x 250 liter stalen tank(s) |
| Koelingsysteem: | interkoeling droge uitlaat geïsoleerde uitlaat |
| Voortstuwing: | 3 blads schroef vetgesmeerde schroefas |
| Koppeling: | Baudouin mechanisch |
| Verwarming: | centrale verwarming Arca pelletkachel met warmtewisselaar gekoppeld aan centrale verwarming & pelletkachel (salon) & tevens via airco unit |
| Air conditioning: | aanwezig reversed circle |
| Stroomvoorziening: | 12 / 24 / 230 Volt 230 Volt walstroom aansluiting 2021 nieuw systeem Victron VE.Bus Smart Dongle |
| Accu´s: | 2x 190 Ah start accu(s) 1x 190 Ah start accu(s) generator 6x 190 Ah service accu(s) |
| Acculader: | Victron Quattro-II combi omvormer/lader 24/5000/120 3x Victron Orion-TR Smart acculader 24/24-17 Anhtozyx acculader |
| Aardlek schakelaar: | aanwezig |
| Generator: | 13,5 kVA 230 Volt Kubota diesel Energy fluisterset (2021) 1500 RPM 244 draaiuren (ca.) |
| Omvormer: | Victron Quattro-II combi omvormer/lader 24/5000/120 Victron Orion-TR omvormer 24/12-10 |
| Drinkwatertank (ca.): | 2x 1000 liter kunststof tank(s) |
| Waterdruksysteem: | hydrofoor |
| Drinkwater filtersysteem: | Naturewater drinkwater filtersysteem |
| Warm watersysteem: | 295 ltr boiler via centrale verwarming & zonnecollector |
| Vuilwatertank (ca.): | 300 liter |
| Diesel waterseparator: | aanwezig |
| Lens/bilgepomp: | 1 elektrische pomp |
| Gas systeem: | ja, fles(sen) in dekkist |
Accommodatie
| Betimmering: | diverse materialen zijn gebruikt OSB multiplex wit geschilderd grenen afwerking houten vloer(en) zie foto's |
| Isolatie: | ja goed geisoleerd |
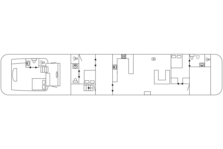
| Hutten: | 3 hutten |
| Slaapplaats / Kooi: | Voor: 1x 2-pers Midscheeps: 1x 2-pers Achter: 1x 2-pers |
| Plattegrond (niet op schaal): | zie bijlage |
| Badkamer: | Voor: douchecabine thermostaat kraan wasbak met mengkraan en warm & koud stromend water in 1 ruimte tezamen met het toilet Midscheeps: douchecabine thermostaat kraan wasbak met mengkraan en warm & koud stromend water in 1 ruimte tezamen met het toilet Achter: douche thermostaat kraan wasbak met mengkraan en warm & koud stromend water in 1 ruimte tezamen met het toilet |
| Toilet: | Voor: toilet & bidet Midscheeps: toilet Achter: toilet |
| Kombuis / keuken: | U-vorm kombuis |
| Kooktoestel: | 5-pits kooktoestel op gas |
| Oven: | elektrische oven |
| Magnetron: | aanwezig |
| Koelkast: | 1x combinatie met vriezer 1x koelkast |
| Vriezer: | 1x combinatie met de koelkast 1x vriezer |
| Wasbak: | 1 wasbak |
| Waterkraan: | mengkraan met warm & koud stromend water |
| Afwasmachine: | aanwezig |
| Stahoogte (ca.): | stuurhut (ca.) 2,03 m achterroef (ca.) 2,11 m badkamer / toilet achter (ca.) 2,02 m middelste hut (ca.) 2,14 m badkamer / toilet (ca.) 2,14 m kombuis / keuken (ca.) 2,43 m salon (ca.) 2,60 m voorste hut (ca.) 2,30 m badkamer / toilet voor (ca.) 2,00 m |
| Aanvullende informatie: | Het schip wordt geleverd met alles aan boord behalve de privé bezittingen & kunstwerken. kommaliewant koffiemachine inventaris wasmachine geschikt voor wonen geschikt voor charter |
Navigatieapparatuur
| Navigatie apparatuur: | roerstandaanwijzer Cobra hand marifoon klok barometer hygrometer thermometer geen / no / kein / pas de Automatisch Identificatie Systeem (AIS) |
Tuigage en zeilen
| Mast: | lantaarn mast staal |
| Strijkbaar: | ja handmatig |
Uitrusting
| Ankergerei: | handankerlier klipanker anker met ketting in kluisgat Achter: handankerlier klipanker ankerketting |
| Bimini: | bimini zonnetent |
| Reling / Preekstoel: | reling rondom bovendek |
| Veiligheid: | automatische brandblusinstallatie in motorruimte brandblussers reddingsvesten reddingsboeien volgens de certificering-eisen |
| Aanvullende informatie: | koekoek aluminium loopplank dekmeubelen set Keuringsrapport van het onderwaterschip is aanwezig (10-2023) |




