Spits Varend Woonschip 38.95, met UBC Verkocht
Visie Doeve Makelaars
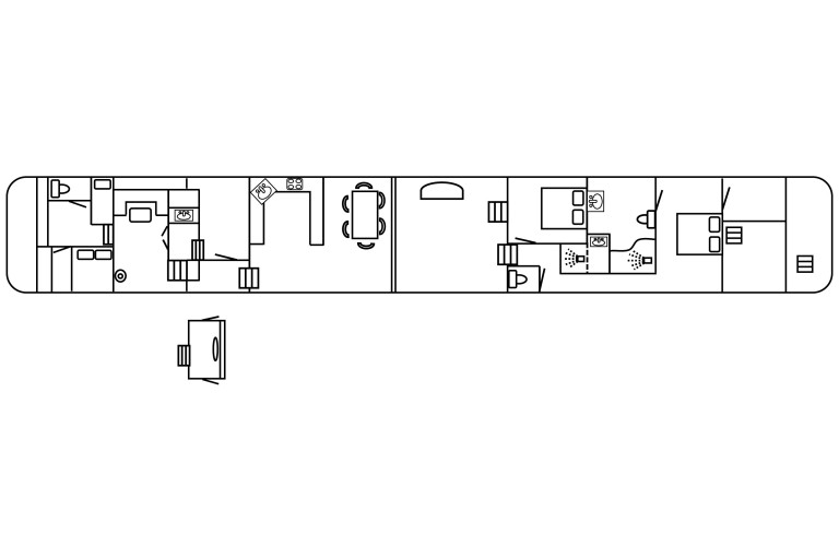
Dit voormalig binnenvaart vrachtschip is in 2001 getransformeerd tot een comfortabel varend woonschip waarbij de originele achterwoning met haar sfeervolle, authentieke interieur zorgvuldig intact is gebleven. Het schip biedt uitzonderlijk ruime woonmogelijkheden met onder andere een riante eigenaarshut voorzien van inloopkast en een royale privé badkamer met ligbad. Voor de gasten is er een separate badkamer en aparte toiletruimte beschikbaar. De salon is ruim opgezet, geniet van veel lichtinval en is vanaf dek goed toegankelijk. De open keuken is van alle moderne gemakken voorzien. Vanuit de gang zijn zowel de technische ruimte als de wasmachine/droger bereikbaar. Via een trap komt men in de originele achterwoning met doorgang naar de stuurhut en de twee achtergelegen hutten en toiletruimte. Alle woonvertrekken zijn met elkaar verbonden, wat het comfort en de bruikbaarheid aanzienlijk verhoogt. De voorpiek doet dienst als berging. In het voorschip aan stuurboordzijde bevindt zich de 360° draaibaar boegschroefinstallatie. Bovendeks is er een bijzonder ruim zonnedek, voorzien van een bimini. Hoewel de buitenzijde van het schip de afgelopen jaren onvoldoende onderhouden is, biedt dit schip, mede door de degelijke verbouwing en doordachte indeling, een uitgelezen kans om voor een zeer aantrekkelijk bedrag een volledig ingericht woonschip te verwerven.
Meer informatie
Algemene informatie
| Werf: | Scheepswerf J. F. Plaquet, B-Peronnes lez Antoing |
| Verbouwjaar: | 2001 |
| Romp vorm: | platbodem |
| Romp materiaal: | staal |
| Dek materiaal: | staal |
| Opbouw materiaal: | staal hardhouten bovenzijde van de stuurhut |
| Bouwwijze: | geklonken nieuw staal is gelast berghout achterroef paviljoen stalen buikdenning 3 waterdicht(e) schot(ten) |
| Besturing: | mechanisch stuurwiel |
| Ramen: | kunststof raamprofielen 1 kunststof buiten deur dubbel glas patrijspoorten 2 hardhouten buiten deuren hardhouten raamprofielen |
| Ballast (ca.): | aanwezig tegels 30 ton |
| Doorvaart hoogte (ca.): | 3,80 m 3,30 m met afgebroken stuurhut |
| Eigenaar: | Belgische eigenaar |
| Registratie: | Belgisch geregistreerd |
| Kleur / Conservering: | zwarte romp grijze opbouw achterstallig onderhoud zie foto's laatste onderwaterschip behandeling 04-2021 |
| Certificaten: | Unie Binnenschipcertificaat (UBC) zone 3 zone 4 zone 2 Nederland geldig tot: 08-2026 |
| Geschikt voor / als: | binnenwateren geschikt voor bewoning recreatie vaartuig |
| Algemene informatie: | Aangeboden in de conditie waarin ze zich nu bevindt Ouderdomsclausule van toepassing. |
| Aanvullende informatie: | ruim bovendek voorpiek Zeer geschikt om de Europese kanalen en rivieren te bevaren. Zeer geschikt om in Frankrijk de kanalen en rivieren te bevaren. |
Technische informatie
| Motorvermogen: | 220 pk 161 kW |
| Motor merk: | Mercedes |
| Toerental: | 2200 RPM |
| Motortype: | OM 402 |
| Cilinderaantal: | V-8 |
| Bouwjaar motor: | onbekend |
| Draaiuren (ca.): | 16780 op de urenteller |
| Brandstof: | diesel |
| Brandstoftank (ca.): | 1200 liter 400 liter stalen tank(s) waterzak |
| Voortstuwing: | 3 blads schroef vetgesmeerde schroefas |
| Koppeling: | Masson NF3 hydraulisch reductie 4:1 |
| Verwarming: | Sime centrale verwarming op diesel |
| Boegschroef: | De Gerlien-van Tiem boegschroef via dieselmotor 360 graden draaibaar DAF 1160 170 pk |
| Stroomvoorziening: | 12 / 24 / 230 / 400 Volt 230 Volt walstroom aansluiting |
| Accu´s: | 1x 65 Ah start accu(s) generator 2x 120 Ah start accu(s) 4x 140 Ah service accu(s) 2x 120 Ah start accu(s) boegschroef |
| Acculader: | Victron MultiPlus combi omvormer/lader 24/3000/70 Helvi Progress 17 acculader |
| Laadstroomverdeler (scheidingsdiode): | aanwezig |
| Generator: | XS fluisterset Yanmar diesel 15 kW 230/400 Volt 1500 RPM 8200 op de urenteller (ca.) |
| Omvormer: | Victron MultiPlus combi omvormer/lader 24/3000/70 |
| Drinkwatertank (ca.): | 10000 liter stalen tank(s) |
| Waterdruksysteem: | elektrische waterpomp |
| Diesel waterseparator: | aanwezig |
| Lens/bilgepomp: | algemene dienstpomp via hulpmotor Hatz tevens dekwaspomp |
| Aanvullende informatie: | lucht compressor reserve schroef |
Accommodatie
| Betimmering: | achterroef: origineel zie foto's ruim: multiplex wit geschilderd hardhouten vloer(en) zie foto's |
| Isolatie: | aanwezig |
| Hutten: | 4 hutten |
| Slaapplaats / Kooi: | Eigenaars hut: 1x 2-pers Gasten hut(ten): 1x 2-pers Achter: 1x 2-pers 2x 1-pers |
| Plattegrond (niet op schaal): | zie bijlage |
| Badkamer: | eigenaarshut: En Suite bad met douche thermostaat kraan wasbak met warm & koud stromend water betegelde badkamer in 1 ruimte tezamen met het toilet & gastenhut(ten): douchecabine thermostaat kraan wasbak met warm & koud stromend water betegelde badkamer & Achter: wasbak met warm & koud stromend water |
| Toilet: | eigenaarshut: elektrisch toilet in badkamer (niet / not / nicht / ne pas 100%) dag toiletruimte spoeltoilet (Sanibrieur) Achter: handpomptoilet |
| Kombuis / keuken: | U-vorm kombuis |
| Kooktoestel: | 4-pits kooktoestel keramisch afzuigkap roestvast staal |
| Oven: | combi magnetron/oven |
| Koelkast: | aanwezig 230 Volt |
| Werkblad: | roestvast stalen werkblad houten werkblad |
| Wasbak: | roestvast stalen wasbak |
| Waterkraan: | mengkraan met warm & koud stromend water |
| Afwasmachine: | aanwezig |
| Stahoogte (ca.): | kombuis / keuken (ca.) 2,27 m salon (ca.) 2,27 m gang / corridor (ca.) 2,08 m gastenhut (ca.) 2,10 m toilet (ca.) 2,06 m badkamer (ca.) 2,14 m eigenaarshut (ca.) 2,20 m badkamer / toilet (ca.) 2,13 m stuurhut (ca.) 1,76 m achterroef (ca.) 1,77 m achter (ca.) 1,82 / 1,91 m |
| Aanvullende informatie: | wasmachine wasdroger |
Navigatieapparatuur
| Navigatie apparatuur: | kompas 2x Sailor 144 marifoon navigatieverlichting geen / no / kein / non Automatisch Identificatie Systeem (AIS) zoeklicht |
Tuigage en zeilen
| Mast: | lantaarn mast aluminium |
| Strijkbaar: | ja handmatig |
Uitrusting
| Ankergerei: | handankerlier 2x klipanker ankerketting in kluisgat Achter: klipanker |
| Bimini: | aanwezig |
| Bijboot: | aanwezig |
| Davits: | aanwezig |
| Veiligheid: | brandblussers brandblusdeken reddingsboeien reddingsvesten volgens de certificering-eisen |
| Aanvullende informatie: | hydraulische kraan aluminium loopplank |




