Motortjalk 21.40, met CBB
Visie Doeve Makelaars
Goed onderhouden en degelijk opgebouwde IJsseltjalk, welke sinds circa 1975 in gebruik is als recreatievaartuig en zich reeds langdurig binnen dezelfde familie bevindt. In de periode 2000–2003 is het schip ingrijpend gerenoveerd en ingericht als Varend Woonschip. Daarbij is het interieur, met uitzondering van het vooronder, volledig vernieuwd. Tevens zijn onder andere dubbel glas, spudpalen, een krachtige boegschroefinstallatie en een vernieuwde elektrische installatie aangebracht. Bij de verbouwing is nadrukkelijk rekening gehouden met een langdurig verblijf aan boord. Dit komt tot uiting in een ruim opgezette kombuis en een comfortabele salon met voldoende zitgelegenheid. Verder beschikt het schip over een badkamer met douche en toilet, twee afzonderlijke hutten en een bedstede. Tussen de woonruimte en het vooronder is een technische ruimte, waarin onder andere de boegschroefinstallatie en een Kabola verwarmingsinstallatie zijn opgesteld. In het vooronder zijn twee extra slaapplaatsen. De ruime kuip is een ideale plek om met vrienden en kennissen bijeen te komen. Bij minder gunstige weersomstandigheden kan eenvoudig worden uitgeweken naar het comfortabele interieur. Dankzij de beperkte doorvaarthoogte van circa 2,80 meter beschikt het schip over een groot vaargebied, hetgeen het schip bijzonder geschikt maakt als reisschip voor de binnenwateren.
Meer informatie
Algemene informatie
| Werf: | Scheepswerf Weduwe Johannes van Duijvendijk, NL-Krimpen aan den IJssel |
| Werf verbouw: | Scheepswerf Van Vliet, NL-Hendrik-Ido Ambacht in eigen beheer afgebouwd met behulp van professionals |
| Verbouwjaar: | 2000-2003 |
| Romp vorm: | platbodem |
| Romp materiaal: | ijzer/staal |
| Dek materiaal: | ijzer/staal |
| Opbouw materiaal: | staal |
| Bouwwijze: | geklonken nieuw staal is gelast berghout rondom boeiing / verschansing zadeldak kalffsdekken open kuip zelflozende kuip dichte bolderkasten 3 waterdicht(e) schot(ten) |
| Besturing: | mechanisch stuurwiel stalen roer aangehangen roer |
| Ramen: | aluminium raamprofielen dubbel glas hardhouten buiten deuren |
| Waterverplaatsing (ca.): | 45 ton |
| Ballast (ca.): | gestort beton 500 kg genoemde gewicht is een inschatting |
| Doorvaart hoogte (ca.): | 2,80 m alles plat |
| Eigenaar: | Nederlandse eigenaar |
| Registratie: | Nederlands geregistreerd B-Geregistreerd Kosten voor het over-/ en eventueel uitschrijven zijn voor rekening van de koper. |
| Kleur / Conservering: | zwarte romp bordeaux rode boeiing witte opbouw 2 componenten systeem & 1 componenten aflak in goede staat van onderhoud zie foto's laatste onderwaterschip behandeling 04-2022 |
| Certificaten: | Certificaat van Onderzoek (CvO) / Communautair Binnenvaartcertificaat voor Binnenschepen (CBB) zone 2 Nederland EU zone 3 & 4 Waal, Lek & NL Rijn geldig tot: 12-2029 |
| Geschikt voor / als: | geschikt voor bewoning recreatie vaartuig geschikt voor ruime wateren binnenwateren |
| Algemene informatie: | Ouderdomsclausule van toepassing. goede vaareigenschappen |
| Aanvullende informatie: | Diverse roestgevoelige plaatsen uitgevoerd in roestvast staal. klassiek motorjacht Opgegeven lengte is over de stevens. voorpiek met kettingbak strakke romp Zeer geschikt om de Europese kanalen en rivieren te bevaren. Zeer geschikt om in Frankrijk de kanalen en rivieren te bevaren. |
Technische informatie
| Motorvermogen: | 105 pk 77 kW |
| Motor merk: | DAF |
| Toerental: | 2200 RPM |
| Motortype: | 575 |
| Cilinderaantal: | 6 |
| Bouwjaar motor: | 1966 |
| Revisie motor: | 1986 |
| Draaiuren (ca.): | 16248 op de urenteller |
| Brandstof: | diesel |
| Brandstoftank (ca.): | 1x 450 liter 2x 800 liter 1x 180 liter stalen tank(s) |
| Koelingsysteem: | gesloten beunkoeler |
| Voortstuwing: | 3 blads schroef vetgesmeerde schroefas |
| Koppeling: | Renk WDV 14 reductie 2,4:1 |
| Verwarming: | Kabola B12 tap centrale verwarming combi ketel op diesel |
| Boegschroef: | Kalkman elektrische boegschroef 400 Volt 15 pk proportioneel |
| Stroomvoorziening: | 24 / 230 / 400 Volt 230 Volt walstroom aansluiting |
| Accu´s: | 2x 230 Ah accu 1x 80 Ah start accu(s) generator |
| Acculader: | Victron Skylla acculader 24/50 CTEK MXT14 acculader 24/14 CTEK acculader 12/6 |
| Aardlek schakelaar: | aanwezig |
| Generator: | Onis Visa FOX LS18SS fluisterset (2003) 18 kVA 230/400 Volt, 1500 RPM 1975 draaiuren (ca.) |
| Omvormer: | Victron Phoenix omvormer 24/3000 |
| Drinkwatertank (ca.): | 3000 liter |
| Waterdruksysteem: | hydrofoor |
| Warm watersysteem: | via centrale verwarming & close in boiler (230 Volt) |
| Vuilwatertank (ca.): | niet aanwezig, voldoende ruimte om in te bouwen |
| Diesel waterseparator: | aanwezig |
| Dekwaspomp: | aanwezig |
| Gas systeem: | geen gas aan boord |
Accommodatie
| Betimmering: | diverse materialen zijn gebruikt kraaldelen plafonds in goede staat van onderhoud zie foto's geschikt om aan boord te wonen |
| Isolatie: | aanwezig |
| Hutten: | 2 hutten |
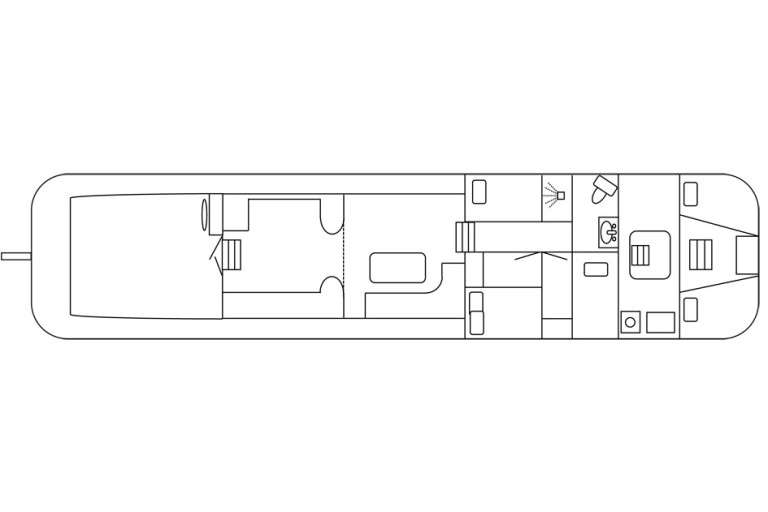
| Slaapplaats / Kooi: | Voor: 1x 1 pers (1,16 x 2,00 m) Stuurboord hut: 1x 2 pers (1,25 x 2,00 m) Bakboord: 1x 1 pers (1,10 x 2,00 m) Vooronder: 2x 1-pers |
| Plattegrond (niet op schaal): | zie bijlage |
| Badkamer: | douche warm & koud stromend water wasbak met mengkraan en warm & koud stromend water in 1 ruimte tezamen met het toilet deels betegeld |
| Toilet: | boven water toilet |
| Kombuis / keuken: | langsscheeps |
| Kooktoestel: | 4-pits kooktoestel keramisch |
| Koelkast: | aanwezig 230 Volt |
| Werkblad: | formica werkblad |
| Wasbak: | roestvast stalen wasbak |
| Waterkraan: | warm & koud stromend water |
| Stahoogte (ca.): | kombuis / keuken (ca.) 2,10 m salon (ca.) 2,15 m / 1,95 m hutten (ca.) 2,20 m badkamer / toilet (ca.) 2,20 m / 1,84 m vooronder (ca.) 1,63 m |
| Aanvullende informatie: | Het schip wordt geleverd zonder de privé bezittingen zoals meubels, kleding, illustraties en gereedschap. |
Navigatieapparatuur
| Navigatie apparatuur: | Sailor RT144 marifoon L3 Automatisch Identificatie Systeem (AIS) hoorn navigatieverlichting |
Tuigage en zeilen
| Mast: | houten mast lantaarn mast |
| Strijkbaar: | ja handmatig |
Uitrusting
| Ankergerei: | handankerlier stokanker ankerketting Voor: spudpaal 3,55 m onder het vlak Achter: spudpaal 3,00 m onder het vlak opgegeven lengte(s) is/zijn circa |
| Bimini: | bimini zonnetent boven kuip |
| Zwemtrap: | aanwezig roestvast staal |
| Veiligheid: | reddingsboeien reddingsvesten brandblussers volgens de certificering-eisen |
| Aanvullende informatie: | Het schip is volledig gestript (alleen de romp is nog oud) en aansluitend nieuw opgebouwd. Voordat er ingetimmerd is, is de binnenzijde van de romp zeer goed behandeld. Keuringsrapport van het onderwaterschip is aanwezig (04-2022) zonnedek |




