Luxe Motor 26.25 met UBC
Visie Doeve Makelaars
Dit varend woonschip is door de huidige eigenaar volledig opnieuw betimmerd en ingericht. Daarbij is een indeling gerealiseerd waardoor het schip zeer geschikt is voor comfortabel permanent verblijf, maar óók uitstekend inzetbaar is voor bed & breakfast-exploitatie of reizen met gasten over de Europese binnenwateren, met name in Frankrijk, België en Nederland. De verkoper heeft dit concept jarenlang succesvol uitgevoerd en is daarbij zelfs tot aan het Canal du Midi in Zuid-Frankrijk gevaren. Het schip is onder andere uitgerust met een spudpaal, een fluister generatorset, een degelijke hoofdmotor en een elektrisch aangedreven boegschroef, wat het manoeuvreren in havens en sluizen vergemakkelijkt. Voor gasten zijn er twee hutten beschikbaar, ieder met een eigen en-suite badkamer. In de achterroef bevindt zich de eigenaarshut, eveneens voorzien van een en-suite badkamer. Daarnaast is er een ruime berging/store aanwezig, die desgewenst kan worden heringedeeld als extra hut. Achter de ruime stuurhut is op de achterroef een royale zitgelegenheid gecreëerd. In november 2024 is het schip opnieuw gecertificeerd, resulterend in een vernieuwd certificaat met een geldigheid tot en met november 2031.
Meer informatie
Algemene informatie
| Werf: | Scheepswerf Gebr. G. & H. Bodewes, NL-Martenshoek |
| Verbouwjaar: | 2019/2021 |
| Romp vorm: | platbodem |
| Romp materiaal: | ijzer/staal |
| Dek materiaal: | staal |
| Opbouw materiaal: | staal |
| Bouwwijze: | geklonken nieuw staal is gelast brede gangboorden berghout rondom boeiing rondom achterroef 2 waterdicht(e) schot(ten) |
| Zelfbouw: | interieur |
| Besturing: | hydraulisch stuurwiel |
| Ramen: | aluminium raamprofielen dubbel glas hardhouten deur |
| Waterverplaatsing (ca.): | maximum toelaatbare waterverplaatsing 74,463 m³ waterverplaatsing in ledige toestand 52,266 m³ verplaatsing 22,197 m³ |
| Ballast (ca.): | betonblokken 4 ton |
| Doorvaart hoogte (ca.): | 3,20 m alles plat |
| Eigenaar: | Belgische eigenaar |
| Registratie: | Belgisch geregistreerd Kosten voor het over-/ en eventueel uitschrijven zijn voor rekening van de koper. |
| Kleur / Conservering: | grijze romp witte boeiing grijze boeiing witte opbouw in goede staat van onderhoud laatste onderwaterschip behandeling 11-2024 |
| Certificaten: | Unie Binnenschipcertificaat (UBC) zone 2 Nederland zone 3 zone 4 Waal, Lek & NL Rijn geldig tot: 11-2031 |
| Geschikt voor / als: | binnenwateren geschikt voor bewoning recreatie vaartuig hotel schip |
| Algemene informatie: | Levering in overleg. goede vaareigenschappen |
| Aanvullende informatie: | Rompvorm is geschikt om mee droog te vallen. stuurhuis voorpiek Zeer geschikt om de Europese kanalen en rivieren te bevaren. Zeer geschikt om in Frankrijk de kanalen en rivieren te bevaren. |
Technische informatie
| Motorvermogen: | 95 pk 70 kW |
| Motor merk: | DAF |
| Toerental: | 1750 RPM |
| Motortype: | 615 |
| Cilinderaantal: | 6 |
| Bouwjaar motor: | 1976 |
| Draaiuren (ca.): | onbekend |
| Brandstof: | diesel |
| Brandstoftank (ca.): | 1x 700 liter 1x 6500 liter stalen tank(s) |
| Koelingsysteem: | gesloten koelpijpen |
| Voortstuwing: | 3 blads schroef vetgesmeerde schroefas |
| Koppeling: | Self Changing Gears MRF 350MK3A hydraulisch |
| Snelheid (ca.): | 14,5 kilometer/uur |
| Verwarming: | Webasto hetelucht verwarming op diesel & via airco unit |
| Air conditioning: | aanwezig reversed circle |
| Boegschroef: | DUCO elektrische boegschroef 16 pk 24 Volt |
| Stroomvoorziening: | 24 / 230 Volt 230 Volt walstroom aansluiting |
| Accu´s: | 2x 230 Ah boegschroef accu(s) 2x 180 Ah start accu(s) 1x 105 Ah start accu(s) generator tractie accu set (12x 2 Volt) |
| Acculader: | Victron Blue Smart acculader 24/8 Victron Skylla-TG acculader 24/100 |
| Generator: | Kohler 13EFOZ fluisterset 13 kVA 230 Volt 1500 RPM 2800 draaiuren (ca.) |
| Omvormer: | 2x Victron Phoenix omvormer 24/3000 |
| Zonnepanelen: | 6x zonnepaneel Victron BlueSolar MPPT laadregelaar 150/60-MC4 Victron BlueSolar MPPT laadregelaar 100/15 |
| Drinkwatertank (ca.): | 1x 9000 liter roestvast stalen tank(s) |
| Waterdruksysteem: | hydrofoor |
| Warm watersysteem: | 2x boiler (230 Volt) & via motor koelsysteem |
| Vuilwatertank (ca.): | niet aanwezig, voldoende ruimte om in te bouwen |
| Lens/bilgepomp: | aanwezig |
| Gas systeem: | ja, fles(sen) in gasbun |
| Aanvullende informatie: | LED verlichting |
Accommodatie
| Betimmering: | multiplex wit geschilderd zie foto's |
| Isolatie: | geschuimde isolatie |
| Hutten: | 3 hutten |
| Slaapplaats / Kooi: | Voor: 1x 2-pers Midscheeps: 1x 2-pers Achter: 1x 2-pers Slaapbank: 1x 2-pers |
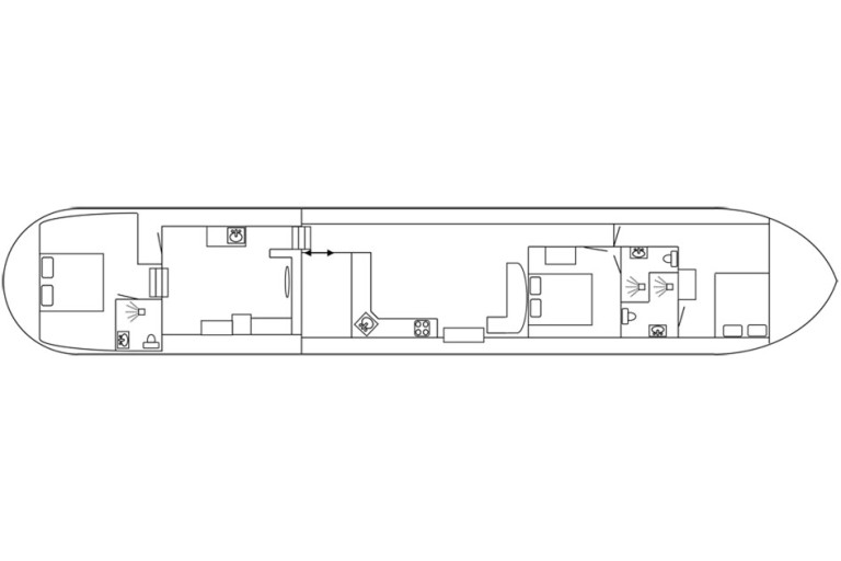
| Plattegrond (niet op schaal): | zie bijlage |
| Badkamer: | 3x En Suite douche thermostaat kraan wasbak met mengkraan en warm & koud stromend water in 1 ruimte tezamen met het toilet |
| Toilet: | 3x toilet |
| Kombuis / keuken: | L-vorm kombuis |
| Kooktoestel: | 4-pits kooktoestel op gas roestvast staal afzuigkap |
| Oven: | combi magnetron/oven |
| Koelkast: | aanwezig 230 Volt |
| Vriezer: | aanwezig 230 Volt |
| Wasbak: | roestvast stalen wasbak |
| Waterkraan: | mengkraan met warm & koud stromend water |
| Afwasmachine: | aanwezig |
| Entertainment: | zelfzoekende satelliet antenne radio/CD speler |
| Stahoogte (ca.): | stuurhut (ca.) 1,97 m kombuis / keuken (ca.) 1,98 m salon (ca.) 2,20 m middelste hut (ca.) 2,08 m badkamer / toilet (ca.) 2,08 m gang / corridor (ca.) 2,06 m voorste hut (ca.) 2,08 m badkamer / toilet (ca.) 2,07 m eigenaarshut (ca.) 1,99 m badkamer / toilet (ca.) 2,01 m |
| Aanvullende informatie: | Het schip wordt geleverd zonder de privé bezittingen zoals meubels, kleding, illustraties en gereedschap. geschikt voor charter geschikt voor wonen centraal stofzuigsysteem wasmachine wasdroger |
Navigatieapparatuur
| Navigatie apparatuur: | Em-Trak A100 Automatisch Identificatie Systeem (AIS) ICOM IC-M323G marifoon met DSC Clipper echolood / dieptemeter ruitenwisser hoorn navigatieverlichting klok barometer |
Tuigage en zeilen
| Mast: | lantaarn mast aluminium |
| Strijkbaar: | ja handmatig |
Uitrusting
| Ankergerei: | handankerlier Pool anker ankerdraad in kluisgat spudpaal (elektrisch) 2,75 m onder het vlak |
| Bimini: | bimini zonnetent |
| Zwemtrap: | aanwezig aluminium |
| Reling / Preekstoel: | zeereling op boeiing / verschansing reling rondom achterdek |
| Veiligheid: | reddingsboeien brandblussers reddingsvesten volgens de certificering-eisen |
| Aanvullende informatie: | dekverlichting zonnedek aluminium loopplank stuurstoel Keuringsrapport van het onderwaterschip is aanwezig (11-2024) fietsenrek |




